John Payne says ..
***Guide Price £450,000- £475,000*** A beautifully presented, two-bedroom house, located on a popular residential street offering superb transportation links and is being sold with no onward chain. Internally the property has been improved by the current owners a...
Property Oracle says ..
Therefore, we give this property 7 / 10. *Disclaimer: This is our option and does constitute a recommendation or financial advice. Do your own research. *
- Price
- 8
- Condition
- 8
- Location
- 7
- Land
- 7
- Bedrooms
- 2
- Bathrooms
- 1
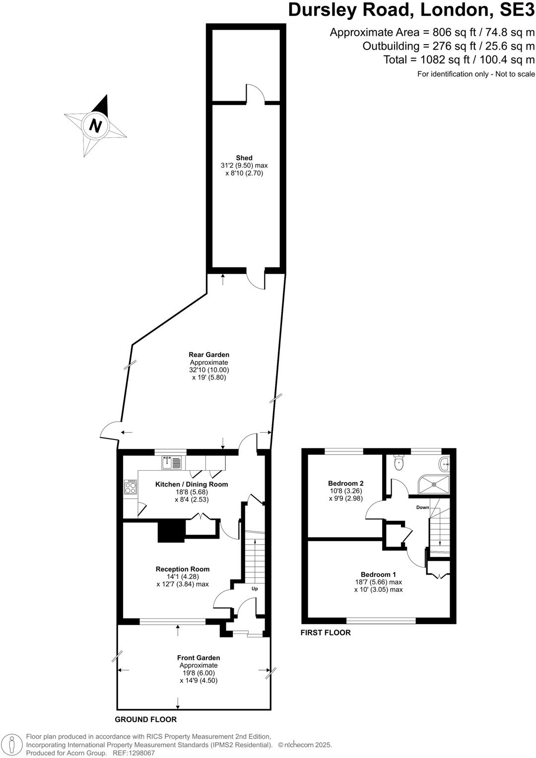
- Sqft (est)
- 1,082.00
The heatmap indicates the level of crime in the area. The color of the heatmap indicates the crime severity and recency.
Metrics Year-on-Year
- Average area value
- 569,167.00 £Increased by 19.48 %
- Est sale value
- 658,938.00 £Increased by 8.17 %
- Average area rental value
- 1,814.00 £/moIncreased by 1.06 %
- Est letting value
- 1,082.00 £/moDecreased by 50.00 %
- Est rental Yield
- 3.82 %Decreased by 15.49 %
- Crime Rate
- 5.00 %Unchanged by 0.00 %
from 476,380.00 £
from 609,166.00 £
from 1,795.00 £/mo
from 2,164.00 £/mo
from 4.52 %
from 5.00 %
Agent Activity
John Payne created the listing.
Nearby Schools
| Name | Type | Ofsted | Distance |
|---|---|---|---|
| Kidbrooke Park Primary School | Community School | Good | 0.34 KM |
| Storkway And Shooter'S Hill Children'S Centre | Children's Centre | 0.65 KM | |
| The Halley Academy | Academy Sponsor Led | 0.68 KM | |
| Cherry Orchard Primary School | Community School | Good | 0.86 KM |
| Charlton Manor Primary School | Community School | Good | 0.94 KM |
Images
Nearby Streets
| Name | Average Price | Average Sqft | Distance |
|---|---|---|---|
| Chichester Close | £ 0 | 0 | 0.00 KM |
| Old Dover Road | £ 0 | 0 | 0.00 KM |
| Rochester Way | £ 1,000,000 | 0 | 0.00 KM |
| Kidbrooke Park Road | £ 216,458 | 0 | 0.00 KM |
| Henley Cross | £ 0 | 0 | 0.00 KM |
Nearby Transport
| Name | NLC | TLC | Distance |
|---|---|---|---|
| Kidbrooke | 5108 | KDB | 1.15 KM |
| Charlton | 5144 | CTN | 2.01 KM |
| Eltham | 5103 | ELW | 2.44 KM |
| Westcombe Park | 5151 | WCB | 2.49 KM |
| Blackheath | 5095 | BKH | 2.92 KM |
Nearby Listings
| Address | Price | Type | Score | Distance |
|---|---|---|---|---|
| Dursley Road, London | £ 450,000 | BUY | 7 / 10 | 0.00 KM |
| Holburne Road, London SE3 | £ 500,000 | BUY | 8 / 10 | 0.22 KM |
| Holburne Road, Blackheath, London, SE3 | £ 625,000 | BUY | 7 / 10 | 0.23 KM |
| Hargood Road, Blackheath, SE3 | £ 525,000 | BUY | 7 / 10 | 0.24 KM |
| Hargood Road, Blaackheath | £ 470,000 | BUY | 7 / 10 | 0.24 KM |
Nearby Properties
| Address | Price | Distance |
|---|---|---|
| 18 Whetstone Road | £ 163,000 | 0.04 KM |
| 46 Whetstone Road | £ 360,000 | 0.04 KM |
| 38 Whetstone Road | £ 215,000 | 0.04 KM |
| 30 Whetstone Road | £ 375,000 | 0.04 KM |
| 16 Whetstone Road | £ 189,995 | 0.04 KM |