West Nab View, Meltham, Holmfirth, HD9
By WM. Sykes & Son
£ 799,950
Reviews
4 out of 5 stars
WM. Sykes & Son says ..
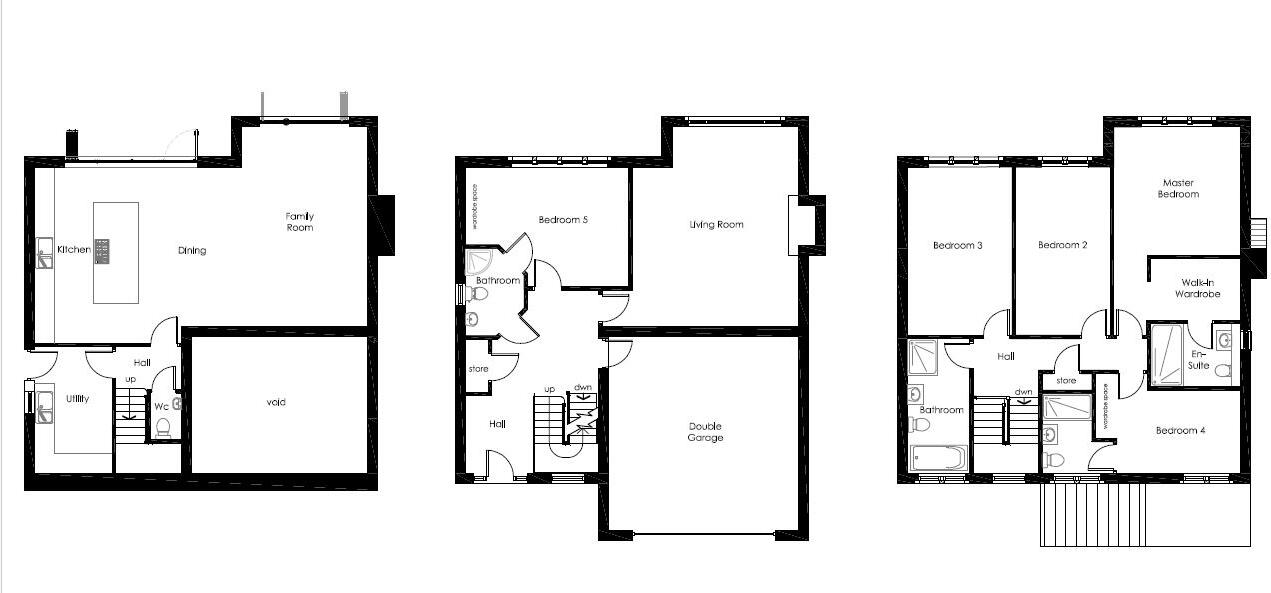
SHOW HOME AVAILABLE TO VIEW: Saturday 29 March 10.30am to 12.30pm We are delighted to announce the release of the final phase on this exclusive new development by Vogue Homes. This comprises of 5 substantial detached houses along the lower edge of the site with some of the plots enjoying ri...
Property Oracle says ..
This property is a new build detached house located in Meltham, Holmfirth. The location benefits from being within proximity to local schools and transport links. The property itself is modern in design and appears to be finished to a high standard, with a good sized garden. While the list price is above the average for the area, the larger size and modern features of this property could justify the higher cost compared to other properties in the area.
Therefore, we give this property 8 / 10. *Disclaimer: This is our option and does constitute a recommendation or financial advice. Do your own research. *
- Price
- 7
- Condition
- 10
- Location
- 8
- Land
- 8
- Bedrooms
- 5
- Bathrooms
- 4
- Sqft (est)
- 2,530.00
The heatmap indicates the level of crime in the area. The color of the heatmap indicates the crime severity and recency.
Metrics Year-on-Year
- Average area value
- 398,889.00 £Increased by 13.84 %
- Est sale value
- 364,320.00 £Decreased by 46.86 %
- Average area rental value
- 2,250.00 £/moIncreased by 153.09 %
- Est letting value
- 0.00 £/mo
- Est rental Yield
- 6.77 %Increased by 122.70 %
- Crime Rate
- 6.00 %Unchanged by 0.00 %
Agent Activity
WM. Sykes & Son created the listing.
Nearby Schools
| Name | Type | Ofsted | Distance |
|---|---|---|---|
| Holme Valley North Children'S Centre | Children's Centre Linked Site | 0.47 KM | |
| Meltham Moor Primary School | Academy Converter | 0.49 KM | |
| Helme Church Of England Academy | Academy Sponsor Led | 1.94 KM | |
| Meltham Cofe (Vc) Primary School | Voluntary Controlled School | Good | 2.03 KM |
| Linthwaite Clough J I & Early Years Unit | Community School | Good | 3.50 KM |
Images
Nearby Streets
| Name | Average Price | Average Sqft | Distance |
|---|---|---|---|
| Peak View | £ 500,000 | 0 | 0.00 KM |
| Hassocks Road | £ 0 | 0 | 0.00 KM |
| Copley Avenue | £ 0 | 0 | 0.00 KM |
| Berry Road | £ 215,000 | 0 | 0.00 KM |
| Moorhead Close | £ 175,000 | 0 | 0.00 KM |
Nearby Transport
| Name | NLC | TLC | Distance |
|---|---|---|---|
| Slaithwaite | 8450 | SWT | 3.99 KM |
| Marsden (Yorks) | 8445 | MSN | 7.46 KM |
| Lockwood | 8443 | LCK | 8.44 KM |
| Berry Brow | 8431 | BBW | 8.44 KM |
| Honley | 8436 | HOY | 9.36 KM |
Nearby Listings
| Address | Price | Type | Score | Distance |
|---|---|---|---|---|
| West Nab View, Meltham, Holmfirth, HD9 | £ 799,950 | BUY | 8 / 10 | 0.00 KM |
| West Nab View, Meltham, Holmfirth, HD9 | £ 415,000 | BUY | 8 / 10 | 0.00 KM |
| West Nab View, Meltham, Holmfirth | £ 290,000 | BUY | 7 / 10 | 0.03 KM |
| West Nab View, Meltham, Holmfirth, West Yorkshire, HD9 | £ 290,000 | BUY | 7 / 10 | 0.03 KM |
| West Nab View, Meltham, Holmfirth | £ 300,000 | BUY | 7 / 10 | 0.04 KM |
Nearby Properties
| Address | Price | Distance |
|---|---|---|
| 9 Upper Mills View | £ 247,500 | 0.17 KM |
| 4 Upper Mills View | £ 187,500 | 0.17 KM |
| 2 Upper Mills View | £ 190,000 | 0.17 KM |
| 7 Upper Mills View | £ 263,500 | 0.17 KM |
| 5 Upper Mills View | £ 262,500 | 0.17 KM |