Wilcock says ..
This attractive end-terrace house, set on a generous corner plot and nestled in a quite courtyard, offers an exciting opportunity for buyers seeking flexible living spaces with plenty of potential. Featuring a spacious garden, a versatile workshop/garden room, and an occasional room for added con...
Property Oracle says ..
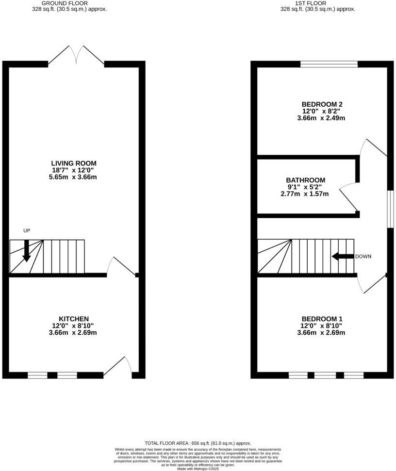
This end of terrace property is located in Dewsbury, West Yorkshire, and is listed at £179,000. The property has two bedrooms and one bathroom, and covers 707.19 sqft. The images show a recently modernised property which is presented in excellent condition. The kitchen and bathrooms have been updated, and there is a modern fireplace in the living area. There is also a good size garden with patio area. The property benefits from being close to local amenities and transport links. The average house price in the area is £187,217, and the average price per sqft is £204. While the property is smaller than average (707 sqft vs 914 sqft average), its modern condition and inclusion of a garden likely contribute to its value. The asking price seems reasonable in the context of the local market, considering its condition and features. The proximity to schools and transport links adds to its appeal.
Therefore, we give this property 7 / 10. *Disclaimer: This is our option and does constitute a recommendation or financial advice. Do your own research. *
- Price
- 7
- Condition
- 9
- Location
- 8
- Land
- 7
- Bedrooms
- 2
- Bathrooms
- 1
- Sqft (est)
- 707.19
The heatmap indicates the level of crime in the area. The color of the heatmap indicates the crime severity and recency.
Metrics Year-on-Year
- Average area value
- 128,333.00 £Decreased by 40.46 %
- Est sale value
- 125,172.63 £Decreased by 16.51 %
- Average area rental value
- 842.00 £/moIncreased by 0.60 %
- Est letting value
- 707.19 £/mo
- Est rental Yield
- 7.87 %Increased by 68.88 %
- Crime Rate
- 5.00 %Unchanged by 0.00 %
Agent Activity
Wilcock marked this listing as sold.
Wilcock created the listing.
Nearby Schools
| Name | Type | Ofsted | Distance |
|---|---|---|---|
| Ethos College | Academy Alternative Provision Converter | 0.42 KM | |
| Staincliffe Church Of England Voluntary Controlled Junior School | Voluntary Controlled School | Good | 0.76 KM |
| Manorfield Infant And Nursery School | Community School | Good | 0.93 KM |
| Dewsbury Moor & Scout Hill Children'S Centre | Children's Centre | 0.95 KM | |
| Westmoor Primary School | Community School | Good | 1.00 KM |
Images
Nearby Streets
| Name | Average Price | Average Sqft | Distance |
|---|---|---|---|
| Sherwood Close | £ 0 | 0 | 0.00 KM |
| Carlinghow Court | £ 0 | 0 | 0.00 KM |
| Bronte Close | £ 0 | 0 | 0.00 KM |
| William Street | £ 0 | 0 | 0.00 KM |
| Mavis Road | £ 199,995 | 0 | 0.00 KM |
Nearby Transport
| Name | NLC | TLC | Distance |
|---|---|---|---|
| Dewsbury | 8326 | DEW | 2.90 KM |
| Ravensthorpe | 8519 | RVN | 3.02 KM |
| Batley | 8484 | BTL | 3.86 KM |
| Mirfield | 8518 | MIR | 5.24 KM |
| Morley | 8504 | MLY | 9.01 KM |
Nearby Listings
| Address | Price | Type | Score | Distance |
|---|---|---|---|---|
| Moor End Lane, Dewsbury, WF13 4PD | £ 179,000 | BUY | 7 / 10 | 0.00 KM |
| Moor End Lane, Dewsbury, WF13 | £ 179,950 | BUY | 8 / 10 | 0.03 KM |
| Moor End Lane, Dewsbury | £ 160,000 | BUY | 6 / 10 | 0.03 KM |
| Moor End Lane, Dewsbury | £ 145,000 | BUY | 7 / 10 | 0.06 KM |
| Moor End Lane, Dewsbury | £ 150,000 | BUY | Unknown | 0.06 KM |
Nearby Properties
| Address | Price | Distance |
|---|---|---|
| 121 Moor End Lane | £ 103,000 | 0.06 KM |
| 119 Moor End Lane | £ 138,000 | 0.06 KM |
| 73 Moor End Lane | £ 185,000 | 0.06 KM |
| 115 Moor End Lane | £ 100,000 | 0.06 KM |
| 117 Moor End Lane | £ 125,000 | 0.06 KM |