Northallerton, North Yorkshire, DL7
By Sell My Group
£ 188,000
Reviews
3 out of 5 stars
Sell My Group says ..
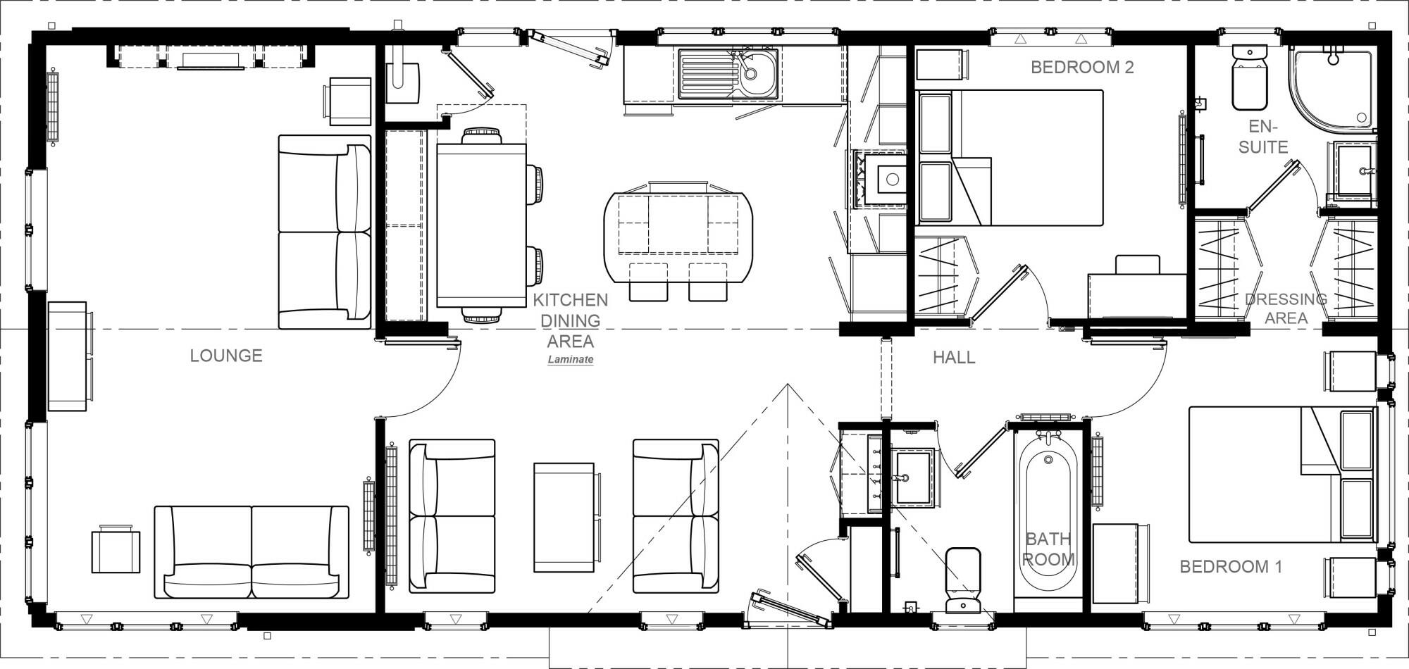
BRAND NEW Park Home (40'x20') | New residential development | Fully furnished home | Parking for two cars | Modern design built to high specification | Exclusive for the over 45s | Pet friendly | Rural location on the edge of the Yorkshire Dales | 9 miles from Northallerton | Part exchange available
Property Oracle says ..
This is a new, two-bedroom, two-bathroom park home located in Gatenby, near Northallerton, North Yorkshire. The property boasts a modern design and appears to be in excellent condition based on the provided images. The interior is finished to a high standard, with modern fixtures and fittings throughout. The home features an open-plan living area, a well-equipped kitchen, and two bedrooms. It also benefits from driveway parking and a small grass area immediately adjacent. The property is situated in a rural setting, yet remains relatively close to the town of Northallerton and its transport links, along with several schools. While the lack of precise plot size information is notable, and the immediate vicinity seems to lack immediate local shops and amenities, the overall proximity to larger towns and excellent condition of the property make it a reasonably priced option. The relatively low price compared to other nearby properties and the current market climate for this sort of park home, might also make it attractive to some buyers. Buyers should however conduct further due diligence relating to the park home ownership and associated fees.
Therefore, we give this property 6 / 10. *Disclaimer: This is our option and does constitute a recommendation or financial advice. Do your own research. *
- Price
- 7
- Condition
- 9
- Location
- 7
- Land
- 4
- Bedrooms
- 2
- Bathrooms
- 2
- Sqft (est)
- 780.00
The heatmap indicates the level of crime in the area. The color of the heatmap indicates the crime severity and recency.
Metrics Year-on-Year
- Average area value
- 338,571.00 £Decreased by 2.42 %
- Est sale value
- 254,280.00 £Increased by 113.07 %
- Average area rental value
- 1,048.00 £/moIncreased by 23.73 %
- Est letting value
- 780.00 £/mo
- Est rental Yield
- 3.71 %Increased by 26.62 %
- Crime Rate
- 0.00 %
Agent Activity
Sell My Group created the listing.
Nearby Schools
| Name | Type | Ofsted | Distance |
|---|---|---|---|
| Leeming Raf Community Primary School | Community School | Good | 1.58 KM |
| Burneston Church Of England Voluntary Aided Primary School | Voluntary Aided School | Requires improvement | 4.14 KM |
| The Dales School | Community Special School | Good | 4.23 KM |
| Ainderby Steeple Church Of England Primary School | Academy Converter | 4.29 KM | |
| Leeming And Londonderry Community Primary School | Community School | Good | 5.39 KM |
Images
Nearby Transport
| Name | NLC | TLC | Distance |
|---|---|---|---|
| Northallerton | 7996 | NTR | 8.58 KM |
Nearby Listings
| Address | Price | Type | Score | Distance |
|---|---|---|---|---|
| Northallerton, North Yorkshire, DL7 | £ 164,950 | BUY | 9 / 10 | 0.00 KM |
| Northallerton, North Yorkshire, DL7 | £ 189,500 | BUY | 7 / 10 | 0.00 KM |
| Northallerton, North Yorkshire, DL7 | £ 188,000 | BUY | 6 / 10 | 0.00 KM |
| Gatenby, Northallerton, DL7 9NG | £ 270,000 | BUY | 6 / 10 | 0.03 KM |
| Gatenby, Northallerton, DL7 9NG | £ 265,000 | BUY | 6 / 10 | 0.03 KM |