Millfields Road, Lower Clapton, London, E5
By Foxtons
£ 1,250,000
Reviews
3 out of 5 stars
Foxtons says ..
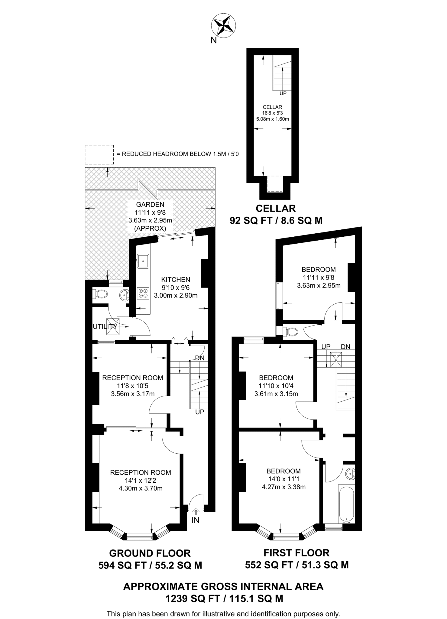
A charming 3 bedroom terrace house arranged over 2 floors boasting period features and wood floors throughout, a lovely garden and a cellar.
Property Oracle says ..
Therefore, we give this property 6 / 10. *Disclaimer: This is our option and does constitute a recommendation or financial advice. Do your own research. *
- Price
- 5
- Condition
- 6
- Location
- 8
- Land
- 7
- Bedrooms
- 3
- Bathrooms
- 1
- Sqft (est)
- 987.12
The heatmap indicates the level of crime in the area. The color of the heatmap indicates the crime severity and recency.
Metrics Year-on-Year
- Average area value
- 493,056.00 £Decreased by 16.30 %
- Est sale value
- 723,558.96 £Increased by 15.80 %
- Average area rental value
- 2,526.00 £/moIncreased by 9.40 %
- Est letting value
- 2,961.36 £/moIncreased by 50.00 %
- Est rental Yield
- 6.15 %Increased by 30.85 %
- Crime Rate
- 4.00 %Unchanged by 0.00 %
from 589,060.00 £
from 624,846.96 £
from 2,309.00 £/mo
from 1,974.24 £/mo
from 4.70 %
from 4.00 %
Agent Activity
Foxtons created the listing.
Nearby Schools
| Name | Type | Ofsted | Distance |
|---|---|---|---|
| Clapton Girls' Academy | Academy Converter | Outstanding | 0.12 KM |
| Millfields Community School | Community School | Good | 0.16 KM |
| Millfields Children'S Centre | Children's Centre | 0.23 KM | |
| Rushmore Primary School | Community School | Good | 0.61 KM |
| Baden-Powell School | Community School | Good | 0.62 KM |
Images
Nearby Streets
| Name | Average Price | Average Sqft | Distance |
|---|---|---|---|
| Laura Place | £ 0 | 0 | 0.00 KM |
| Maitland Place | £ 0 | 0 | 0.00 KM |
| Tilia Road | £ 425,000 | 0 | 0.00 KM |
| Clarence Road | £ 0 | 0 | 0.00 KM |
| Chatsworth Road | £ 0 | 0 | 0.00 KM |
Nearby Transport
| Name | NLC | TLC | Distance |
|---|---|---|---|
| Clapton | 6926 | CPT | 0.83 KM |
| Hackney Central | 6977 | HKC | 1.04 KM |
| Hackney Downs | 6867 | HAC | 1.21 KM |
| Homerton | 6979 | HMN | 1.48 KM |
| London Fields | 6966 | LOF | 1.73 KM |
Nearby Listings
| Address | Price | Type | Score | Distance |
|---|---|---|---|---|
| Millfields Road, Lower Clapton, London, E5 | £ 1,250,000 | BUY | 6 / 10 | 0.00 KM |
| Millfields Road, London, E5 | £ 1,100,000 | BUY | 6 / 10 | 0.05 KM |
| Millfields Road, Clapton | £ 1,100,000 | BUY | 6 / 10 | 0.05 KM |
| Millfields Road, Clapton | £ 1,100,000 | BUY | 6 / 10 | 0.07 KM |
| Mildenhall Road, London, E5 | £ 450,000 | BUY | 7 / 10 | 0.07 KM |
Nearby Properties
| Address | Price | Distance |
|---|---|---|
| 30 Millfields Road | £ 300,000 | 0.03 KM |
| 18 Millfields Road | £ 975,000 | 0.03 KM |
| 36 Millfields Road | £ 245,000 | 0.04 KM |
| 26a Millfields Road | £ 35,000 | 0.04 KM |
| 38 Millfields Road | £ 725,000 | 0.04 KM |