Gascoigne Halman says ..
Whitley Reed Barn is an attractive, spacious and well-proportioned family home. It blends elegant design with the latest eco-friendly features to offer countryside living that matches modern lifestyle needs. This lovely three/four bedroom house features a magnificent orangery-style extension whi...
Property Oracle says ..
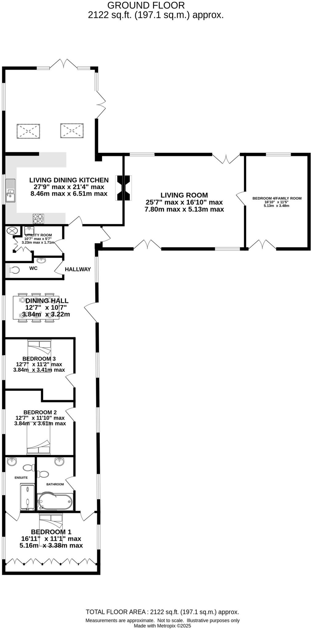
Whitley Reed Barn is a semi-detached property located in the desirable area of Marbury, Cheshire. The property offers four bedrooms and two bathrooms, with a total square footage of 2,122. The property is conveniently located close to local amenities, schools and transportation links. The property is in good condition, with modern fixtures and fittings throughout. The property also benefits from a large garden with a well-maintained lawn, mature trees, and a paved patio area. The property is listed at £800,000, which is competitive for the area, considering the property’s size, condition, and land. Overall, Whitley Reed Barn is a desirable property that would make a great family home.
Therefore, we give this property 7 / 10. *Disclaimer: This is our option and does constitute a recommendation or financial advice. Do your own research. *
- Price
- 7
- Condition
- 8
- Location
- 7
- Land
- 9
- Bedrooms
- 4
- Bathrooms
- 2
- Sqft (est)
- 2,122.00
The heatmap indicates the level of crime in the area. The color of the heatmap indicates the crime severity and recency.
Metrics Year-on-Year
- Average area value
- 258,571.00 £Decreased by 18.16 %
- Est sale value
- 696,016.00 £Increased by 11.95 %
- Average area rental value
- 1,230.00 £/moIncreased by 21.30 %
- Est letting value
- 2,122.00 £/mo
- Est rental Yield
- 5.71 %Increased by 48.31 %
- Crime Rate
- 195.00 %Unchanged by 0.00 %
Agent Activity
Gascoigne Halman created the listing.
Nearby Schools
| Name | Type | Ofsted | Distance |
|---|---|---|---|
| Appleton Thorn Primary School | Community School | Outstanding | 1.97 KM |
| Antrobus St Mark'S Cofe Primary School | Voluntary Aided School | Good | 2.17 KM |
| Cransley School | Other Independent School | 3.79 KM | |
| Grappenhall Heys Community Primary School | Community School | Outstanding | 3.98 KM |
| Stretton St Matthew'S Cofe Primary School | Voluntary Aided School | Outstanding | 4.06 KM |
Images
Nearby Streets
| Name | Average Price | Average Sqft | Distance |
|---|---|---|---|
| Nook Lane | £ 1,250,000 | 0 | 0.00 KM |
Nearby Transport
| Name | NLC | TLC | Distance |
|---|---|---|---|
| Padgate | 2387 | PDG | 8.61 KM |
| Northwich | 2326 | NWI | 8.84 KM |
| Greenbank | 2325 | GBK | 8.91 KM |
| Birchwood | 2304 | BWD | 9.08 KM |
| Warrington Central | 2390 | WAC | 9.32 KM |
Nearby Listings
| Address | Price | Type | Score | Distance |
|---|---|---|---|---|
| Antrobus, Northwich | £ 800,000 | BUY | 7 / 10 | 0.00 KM |
| Arley Road, Appleton, Warrington, WA4 | £ 1,250,000 | BUY | 6 / 10 | 1.18 KM |
| 3500 sq ft home, Barbers Lane, Antrobus | £ 1,450,000 | BUY | 7 / 10 | 1.27 KM |
| Sandy Lane, Antrobus, Northwich, Cheshire, CW9 | £ 600,000 | BUY | 7 / 10 | 1.66 KM |
| Old Hall Farm, Burley Lane, Appleton, Warrington | £ 950,000 | BUY | Unknown | 1.80 KM |
Nearby Properties
| Address | Price | Distance |
|---|---|---|
| 7 Reed Lane | £ 670,000 | 0.99 KM |
| Peel Hall | £ 710,000 | 0.99 KM |
| Burley Fields | £ 828,000 | 1.00 KM |
| Burley Heyes Farm Cottage | £ 94,500 | 1.19 KM |
| 2 Barbers Lane | £ 250,000 | 1.21 KM |