240 Gadsby Street, Nuneaton, CV11 4PE
By Bond Wolfe
£ 55,000
Reviews
2 out of 5 stars
Bond Wolfe says ..
For Sale By Public Auction 23 October 2025 A vacant freehold mid terraced property
Property Oracle says ..
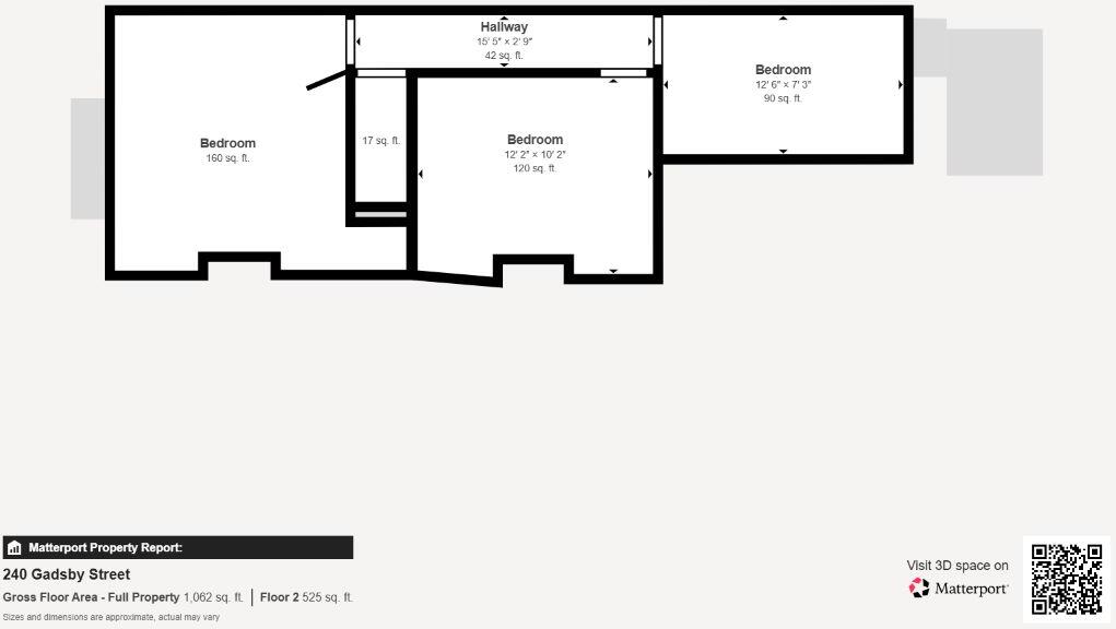
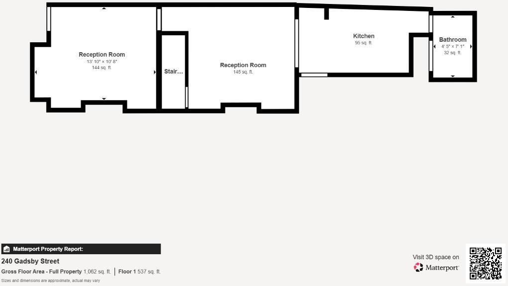
This is a three-bedroom terraced house located on Gadsby Street in Nuneaton. The property requires extensive renovation throughout. The house is located within a reasonable distance of local schools and transportation links. The asking price is £55,000, which is significantly below the average for the area, reflecting the property’s condition. This property presents a significant renovation opportunity for investors or those looking to create a home to their own taste.
Therefore, we give this property 5 / 10. *Disclaimer: This is our option and does constitute a recommendation or financial advice. Do your own research. *
- Price
- 9
- Condition
- 2
- Location
- 6
- Land
- 3
- Bedrooms
- 3
- Bathrooms
- 0
- Sqft (est)
- 412.00
The heatmap indicates the level of crime in the area. The color of the heatmap indicates the crime severity and recency.
Metrics Year-on-Year
- Average area value
- 211,800.00 £Decreased by 16.36 %
- Est sale value
- 129,780.00 £Increased by 56.72 %
- Average area rental value
- 1,035.00 £/moIncreased by 13.36 %
- Est letting value
- 412.00 £/mo
- Est rental Yield
- 5.86 %Increased by 35.33 %
- Crime Rate
- 3.00 %Unchanged by 0.00 %
Agent Activity
Bond Wolfe created the listing.
Nearby Schools
| Name | Type | Ofsted | Distance |
|---|---|---|---|
| Alp Nuneaton | Other Independent Special School | 0.78 KM | |
| George Eliot Academy | Academy Sponsor Led | Good | 1.08 KM |
| Oak Wood Secondary School | Academy Special Converter | Good | 1.21 KM |
| Oak Wood Primary School | Academy Special Converter | Good | 1.21 KM |
| King Edward Vi College | Academy 16-19 Converter | Good | 1.30 KM |
Images
Nearby Streets
| Name | Average Price | Average Sqft | Distance |
|---|---|---|---|
| The Square | £ 0 | 0 | 0.00 KM |
| George Street | £ 0 | 0 | 0.00 KM |
| Raven Way | £ 0 | 0 | 0.00 KM |
| Eastboro Way | £ 0 | 0 | 0.00 KM |
| Armstrong Road | £ 0 | 0 | 0.00 KM |
Nearby Transport
| Name | NLC | TLC | Distance |
|---|---|---|---|
| Nuneaton | 1077 | NUN | 1.78 KM |
| Bermuda Park | 6543 | BEP | 2.76 KM |
| Bedworth | 1165 | BEH | 4.41 KM |
| Coventry Arena | 7416 | CAA | 8.90 KM |
| Hinckley (Leics) | 1870 | HNK | 9.09 KM |
Nearby Listings
| Address | Price | Type | Score | Distance |
|---|---|---|---|---|
| 240 Gadsby Street, Nuneaton, CV11 4PE | £ 55,000 | BUY | 5 / 10 | 0.00 KM |
| Gadsby Street, Nuneaton, CV11 | £ 125,000 | BUY | 4 / 10 | 0.00 KM |
| Gadsby Street, Attleborough, Nuneaton | £ 150,000 | BUY | Unknown | 0.04 KM |
| Gadsby Street, Nuneaton, CV11 | £ 160,000 | BUY | 6 / 10 | 0.04 KM |
| Gadsby Street, Nuneaton | £ 180,000 | BUY | Unknown | 0.06 KM |
Nearby Properties
| Address | Price | Distance |
|---|---|---|
| 177 Gadsby Street | £ 25,000 | 0.02 KM |
| 197 Gadsby Street | £ 59,995 | 0.02 KM |
| 244 Gadsby Street | £ 137,950 | 0.02 KM |
| 189 Gadsby Street | £ 160,000 | 0.02 KM |
| 171 Gadsby Street | £ 123,500 | 0.02 KM |