Breakey & Co says ..
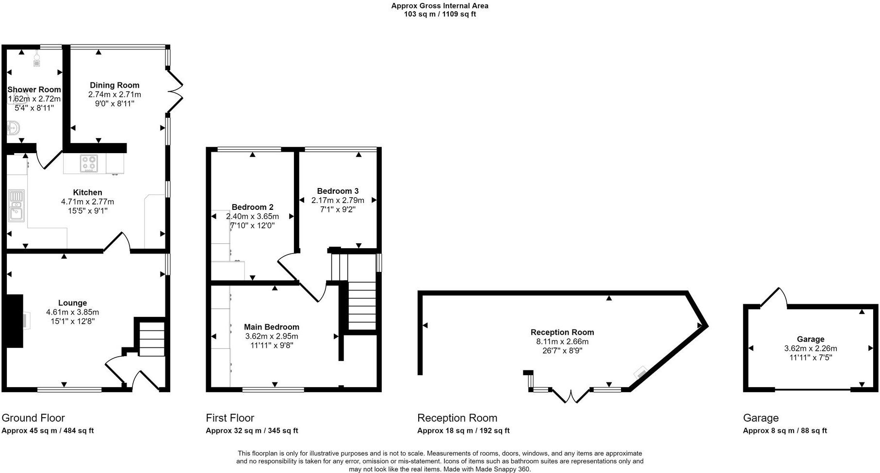
Fantastic 3-bed semi-detached home on a corner plot in Beech Hill. Modern comfort, character features, & great location. Spacious reception, stylish kitchen, wet room, fitted wardrobes, home office, garden with summer house, hot tub, garage, & driveway for 3 vehicles. Near schools, shops, Wigan I...
Property Oracle says ..
This property is a well-presented 3-bedroom semi-detached house located in a desirable area of Wigan. It benefits from a good-sized plot with a garden and outbuilding, modern fitted kitchen and bathroom, and built-in storage. The location offers convenient access to well-regarded schools and train stations. While a precise price per sqft comparison is difficult due to limited data on comparable properties, the list price may represent good value considering the property’s condition and features.
Therefore, we give this property 7 / 10. *Disclaimer: This is our option and does constitute a recommendation or financial advice. Do your own research. *
- Price
- 7
- Condition
- 8
- Location
- 7
- Land
- 7
- Bedrooms
- 3
- Bathrooms
- 1
- Sqft (est)
- 1,049.91
- Lot (est)
- 1,108.68
The heatmap indicates the level of crime in the area. The color of the heatmap indicates the crime severity and recency.
Metrics Year-on-Year
- Average area value
- 177,800.00 £Increased by 0.95 %
- Est sale value
- 222,580.92 £Increased by 23.98 %
- Average area rental value
- 902.00 £/moIncreased by 19.47 %
- Est letting value
- 1,049.91 £/mo
- Est rental Yield
- 6.09 %Increased by 18.48 %
- Crime Rate
- 0.00 %
Agent Activity
Breakey & Co created the listing.
Nearby Schools
| Name | Type | Ofsted | Distance |
|---|---|---|---|
| St John Fisher Catholic High School | Voluntary Aided School | Good | 0.30 KM |
| Sacred Heart Catholic Primary School | Voluntary Aided School | Good | 0.43 KM |
| Beech Hill & Sacred Heart Children'S Centre | Children's Centre Linked Site | 0.51 KM | |
| Beech Hill Community Primary School | Community School | Good | 0.59 KM |
| Wigan St Andrew'S Cofe Junior And Infant School | Voluntary Aided School | Good | 0.79 KM |
Images
Nearby Streets
| Name | Average Price | Average Sqft | Distance |
|---|---|---|---|
| Waltham Avenue | £ 0 | 0 | 0.00 KM |
| Tulip Drive | £ 0 | 0 | 0.00 KM |
| Beech Grove | £ 0 | 0 | 0.00 KM |
| Carnet Close | £ 0 | 0 | 0.00 KM |
| Saint Andrew's Drive | £ 235,000 | 0 | 0.00 KM |
Nearby Transport
| Name | NLC | TLC | Distance |
|---|---|---|---|
| Wigan Wallgate | 2406 | WGW | 2.86 KM |
| Wigan North Western | 2363 | WGN | 2.92 KM |
| Pemberton | 2403 | PEM | 3.59 KM |
| Gathurst | 2397 | GST | 4.37 KM |
| Ince (Manchester) | 2236 | INC | 5.28 KM |
Nearby Listings
| Address | Price | Type | Score | Distance |
|---|---|---|---|---|
| Cranberry Avenue, Wigan, WN6 | £ 170,000 | BUY | 7 / 10 | 0.00 KM |
| Thicknesse Avenue, Wigan, WN6 | £ 140,000 | BUY | 4 / 10 | 0.10 KM |
| Waltham Avenue, Springfield, Wigan, WN6 7RU | £ 260,000 | BUY | 6 / 10 | 0.15 KM |
| Baytree Road, Wigan | £ 200,000 | BUY | 7 / 10 | 0.18 KM |
| Baytree Road, Wigan, WN6 7RN | £ 210,000 | BUY | 7 / 10 | 0.18 KM |
Nearby Properties
| Address | Price | Distance |
|---|---|---|
| 81 Beech Hill Avenue | £ 131,000 | 0.08 KM |
| 65 Beech Hill Avenue | £ 104,000 | 0.08 KM |
| 91 Beech Hill Avenue | £ 41,000 | 0.08 KM |
| 83 Beech Hill Avenue | £ 40,000 | 0.08 KM |
| 47 Thicknesse Avenue | £ 55,000 | 0.10 KM |