Oxford Row, Bath
ZE

Oxford Row, Bath

By Zest

£ 385,000

Reviews

3 out of 5 stars

Zest says ..

A stunning Grade II listed building offering a perfect blend of historic charm and modern living, ideally located in the heart of Bath city centre. This beautifully presented property is ideal for a professional couple or two sharers looking for a stylish and comfortable home with easy access to ...

Property Oracle says ..

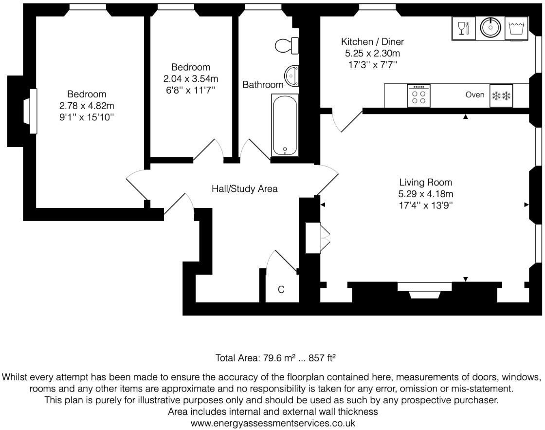
This is a two-bedroom apartment located in Kingsmead, Bath. The property is listed for £385,000 and has a square footage of 856.81. The apartment is situated in a desirable location with good access to schools, transportation, and local amenities. While the apartment appears to be in generally good condition, some areas could benefit from modernization. The price seems reasonable for the location and size of the property. The apartment would suit a young professional or small family looking to live in the heart of Bath.

Therefore, we give this property 6 / 10. *Disclaimer: This is our option and does constitute a recommendation or financial advice. Do your own research. *

Price
7
Condition
7
Location
8
Land
3
Bedrooms
2
Bathrooms
1
Sqft (est)
856.81

The heatmap indicates the level of crime in the area. The color of the heatmap indicates the crime severity and recency.

Metrics Year-on-Year

Average area value
921,429.00 £
Increased by 70.18 %
from 541,443.00 £
Est sale value
963,911.25 £
Increased by 95.99 %
from 491,808.94 £
Average area rental value
1,672.00 £/mo
Decreased by 4.68 %
from 1,754.00 £/mo
Est letting value
1,713.62 £/mo
Increased by 100.00 %
from 856.81 £/mo
Est rental Yield
2.18 %
Decreased by 43.96 %
from 3.89 %
Crime Rate
27.00 %
Unchanged by 0.00 %
from 27.00 %

Agent Activity

  • Zest created the listing.

Nearby Schools

NameTypeOfstedDistance
Bath AcademyOther Independent School0.33 KM
Parkside Children'S CentreChildren's Centre0.64 KM
St Andrew'S Church SchoolAcademy Converter0.64 KM
Bath CollegeFurther EducationGood0.74 KM
St Stephens Church SchoolAcademy Converter1.00 KM

Images

Front.jpg Living room.jpg Kitchen 2.jpg Bedroom 1.jpg Bathroom.jpg Bedroom 2.jpg Bedroom 3.jpg Bedroom 4.jpg Fireplace.jpg Hallway.jpg Kitchen 1.jpg Living room 2.jpg Living room 3.jpg Living room 4.jpg Living room 5.jpg Aerial 1 (1).jpg Aerial 1 (2).jpg Aerial 1 (6).jpg Aerial 1 (7).jpg Aerial 1 (10).jpg External 1.jpg External 2.jpg Road.jpg

Nearby Streets

NameAverage PriceAverage SqftDistance
Hay Hill £ 000.00 KM
Paragon Steps £ 650,00000.00 KM
Ainslie's Belvedere £ 000.00 KM
Wood Street £ 000.00 KM
Wood Street £ 775,00000.00 KM

Nearby Transport

NameNLCTLCDistance
Bath Spa3271BTH1.08 KM
Oldfield Park3219OLF2.24 KM
Freshford3344FFD8.31 KM

Nearby Listings

AddressPriceTypeScoreDistance
Oxford Row, Bath £ 385,000BUY6 / 100.00 KM
Oxford Row, Bath, Somerset, BA1 £ 380,000BUY6 / 100.00 KM
Bennett Street, Bath £ 375,000BUY6 / 100.04 KM
Oxford Row, Bath, Somerset, BA1 £ 875,000BUYUnknown0.05 KM
Belmont, Somerset, Bath, BA1, United Kingdom £ 2,350,000BUY7 / 100.05 KM

Nearby Properties

AddressPriceDistance
6 Oxford Row £ 120,0000.01 KM
9 Belmont £ 1,555,0000.05 KM
4 Belmont £ 170,0000.05 KM
3 Belmont £ 560,0000.05 KM
14 Belmont £ 915,0000.05 KM