The Mere, The Fairways, Ashton-Under-Lyne
By eXp UK
£ 399,950
Reviews
3 out of 5 stars
eXp UK says ..
Exceptional Four-Bedroom Linked Detached Home on the Sought-After Fairways Estate – Perfect for a Growing Family!
Property Oracle says ..
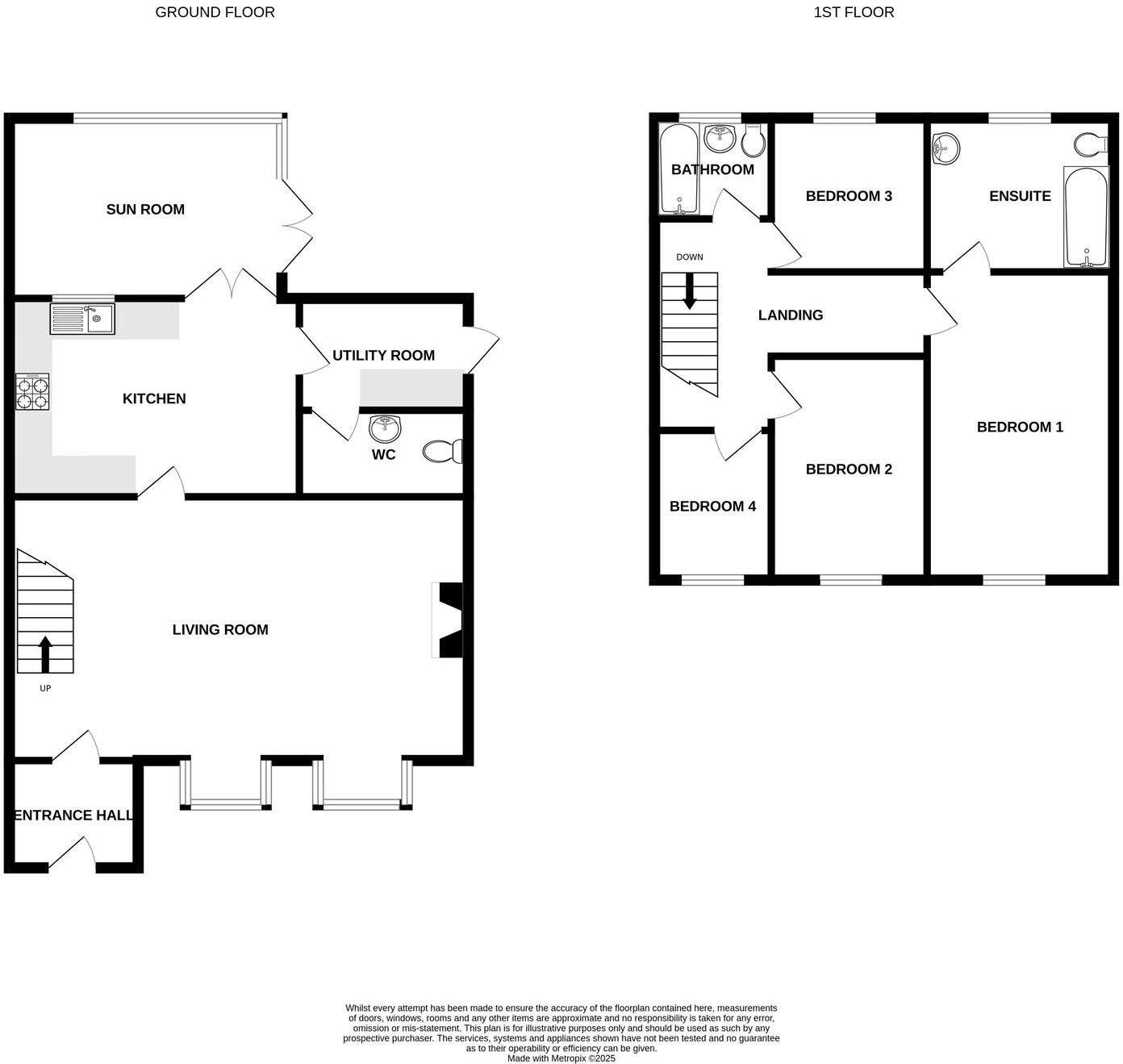
This property is a 4-bedroom, 2-bathroom link detached house located in Ashton-Under-Lyne, Greater Manchester. The list price is £399,950, and the property has 1,060 sqft of living space. The average price for properties in the area is significantly higher at £607,770, with an average price per sqft of £6.00. While the property itself appears to be in good condition and well-maintained, based on the images provided, the lack of plot size information makes it difficult to fully assess the land aspect. The location benefits from proximity to several schools with outstanding Ofsted ratings, and also benefits from being near several train stations. More information on the plot size would be needed to provide a complete assessment of the value for money.
Therefore, we give this property 6 / 10. *Disclaimer: This is our option and does constitute a recommendation or financial advice. Do your own research. *
- Price
- 7
- Condition
- 9
- Location
- 8
- Land
- 3
- Bedrooms
- 4
- Bathrooms
- 2
- Sqft (est)
- 1,060.00
The heatmap indicates the level of crime in the area. The color of the heatmap indicates the crime severity and recency.
Metrics Year-on-Year
- Average area value
- 309,320.00 £Increased by 26.01 %
- Est sale value
- 383,720.00 £Increased by 176.34 %
- Average area rental value
- 1,328.00 £/moIncreased by 17.31 %
- Est letting value
- 1,060.00 £/mo
- Est rental Yield
- 5.15 %Decreased by 6.87 %
- Crime Rate
- 0.00 %
Agent Activity
eXp UK created the listing.
Nearby Schools
| Name | Type | Ofsted | Distance |
|---|---|---|---|
| Rose Hill Children'S Centre | Children's Centre Linked Site | 0.51 KM | |
| Rosehill Methodist Primary Academy | Academy Converter | 0.54 KM | |
| St Christopher'S Rc Primary School | Voluntary Aided School | Outstanding | 0.59 KM |
| Inspire Academy | Academy Sponsor Led | Good | 0.78 KM |
| St Damian'S Rc Science College | Voluntary Aided School | Outstanding | 0.89 KM |
Images
Nearby Streets
| Name | Average Price | Average Sqft | Distance |
|---|---|---|---|
| Hurst Grove | £ 0 | 0 | 0.00 KM |
| Booth Lane | £ 0 | 0 | 0.00 KM |
| Queens Road | £ 0 | 0 | 0.00 KM |
| Rowley Street | £ 0 | 0 | 0.00 KM |
| Kensington Avenue | £ 0 | 0 | 0.00 KM |
Nearby Transport
| Name | NLC | TLC | Distance |
|---|---|---|---|
| Stalybridge | 2983 | SYB | 2.32 KM |
| Ashton-Under-Lyne | 2790 | AHN | 2.92 KM |
| Mossley (Manchester) | 2903 | MSL | 3.52 KM |
| Hyde North | 2959 | HYT | 4.61 KM |
| Flowery Field | 2786 | FLF | 4.78 KM |
Nearby Listings
| Address | Price | Type | Score | Distance |
|---|---|---|---|---|
| The Mere, The Fairways, Ashton-Under-Lyne | £ 399,950 | BUY | 6 / 10 | 0.00 KM |
| The Mere, Ashton-under-Lyne, Greater Manchester, OL6 | £ 350,000 | BUY | 7 / 10 | 0.04 KM |
| Abbeydale Close, Ashton-under-lyne, OL6 | £ 325,000 | BUY | 8 / 10 | 0.12 KM |
| Kings Road, Ashton-under-Lyne, Greater Manchester, OL6 | £ 140,000 | BUY | 6 / 10 | 0.14 KM |
| The Mere, Ashton-under-Lyne, Greater Manchester, OL6 | £ 350,000 | BUY | 7 / 10 | 0.16 KM |
Nearby Properties
| Address | Price | Distance |
|---|---|---|
| 11 Lytham Close | £ 145,000 | 0.07 KM |
| 20 Abbeydale Close | £ 325,000 | 0.11 KM |
| 10 Abbeydale Close | £ 205,000 | 0.11 KM |
| 7 Abbeydale Close | £ 275,000 | 0.11 KM |
| 3 Abbeydale Close | £ 230,000 | 0.11 KM |