Halden Avenue, Hellesdon, Norwich, Norfolk, NR6
By Winkworth
£ 260,000
Reviews
3 out of 5 stars
Winkworth says ..
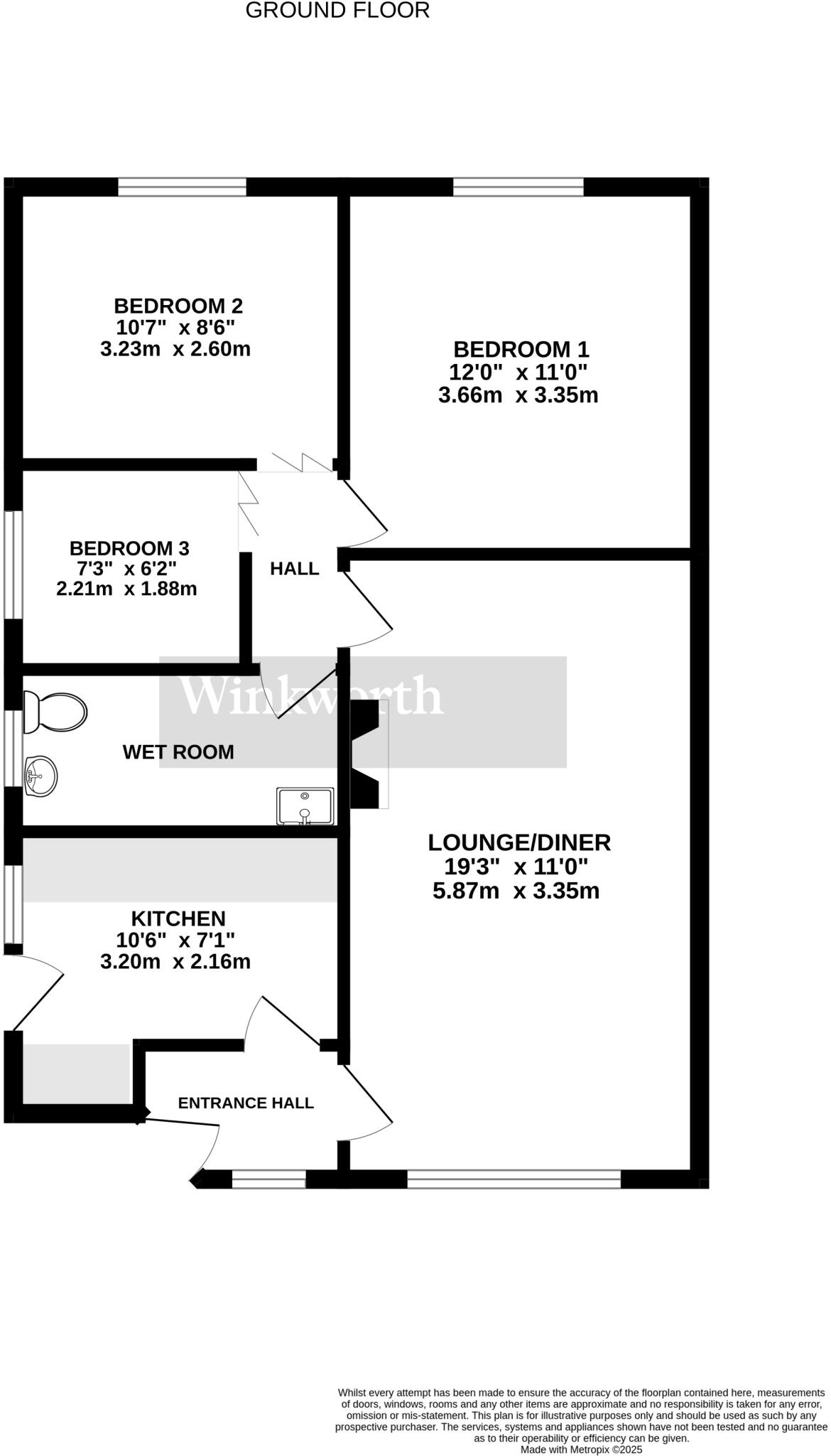
Located in the ever-popular suburb of Hellesdon, this beautifully presented three-bedroom semi-detached bungalow offers spacious and versatile accommodation, perfect for first time buyers or those looking to downsize and seeking single-storey living in a well-connected area. The proper...
Property Oracle says ..
This is a 3-bedroom bungalow in Hellesdon, Norwich. The property appears to be in reasonable condition and has a modern kitchen and bathroom. The property has a garden with a shed. The property is located in a residential area with access to local schools and amenities. The property is listed for £260,000, which seems reasonable given the location, condition, and size of the property.
Therefore, we give this property 7 / 10. *Disclaimer: This is our option and does constitute a recommendation or financial advice. Do your own research. *
- Price
- 8
- Condition
- 7
- Location
- 7
- Land
- 6
- Bedrooms
- 3
- Bathrooms
- 1
- Sqft (est)
- 553.05
The heatmap indicates the level of crime in the area. The color of the heatmap indicates the crime severity and recency.
Metrics Year-on-Year
- Average area value
- 417,969.00 £Increased by 36.61 %
- Est sale value
- 206,840.70 £Increased by 1.91 %
- Average area rental value
- 1,251.00 £/moIncreased by 48.05 %
- Est letting value
- 553.05 £/moUnchanged by 0.00 %
- Est rental Yield
- 3.59 %Increased by 8.46 %
- Crime Rate
- 5.00 %Unchanged by 0.00 %
Agent Activity
Winkworth created the listing.
Nearby Schools
| Name | Type | Ofsted | Distance |
|---|---|---|---|
| Arden Grove Infant And Nursery School | Academy Converter | Outstanding | 0.72 KM |
| Firside Junior School | Academy Converter | Good | 0.78 KM |
| Kinsale Infant School | Community School | Good | 0.84 KM |
| Kinsale Junior School | Academy Converter | 0.84 KM | |
| Hellesdon High School | Academy Converter | Good | 1.07 KM |
Images
Nearby Streets
| Name | Average Price | Average Sqft | Distance |
|---|---|---|---|
| Holt Road | £ 0 | 0 | 0.00 KM |
| Shrub Lane | £ 290,000 | 0 | 0.00 KM |
| Oak Tree Lane | £ 0 | 0 | 0.00 KM |
| Saint Andrews Road | £ 335,000 | 0 | 0.00 KM |
| Elder Close | £ 0 | 0 | 0.00 KM |
Nearby Transport
| Name | NLC | TLC | Distance |
|---|---|---|---|
| Norwich | 7309 | NRW | 6.64 KM |
Nearby Listings
| Address | Price | Type | Score | Distance |
|---|---|---|---|---|
| Halden Avenue, Hellesdon, Norwich, Norfolk, NR6 | £ 260,000 | BUY | 7 / 10 | 0.00 KM |
| Halden Avenue, Hellesdon | £ 265,000 | BUY | 6 / 10 | 0.00 KM |
| Saracen Road, Hellesdon, Norwich, Norfolk, NR6 | £ 230,000 | BUY | 6 / 10 | 0.09 KM |
| Saracen Road, Hellesdon, Norwich | £ 270,000 | BUY | 6 / 10 | 0.10 KM |
| Saracen Road, Norwich | £ 200,000 | BUY | 6 / 10 | 0.10 KM |
Nearby Properties
| Address | Price | Distance |
|---|---|---|
| 13a Gowing Road | £ 124,950 | 0.07 KM |
| 20 Gowing Road | £ 207,000 | 0.07 KM |
| 16 Gowing Road | £ 255,000 | 0.07 KM |
| 22 Halden Avenue | £ 248,000 | 0.08 KM |
| 5 Halden Avenue | £ 195,000 | 0.08 KM |