Tudor & Co says ..
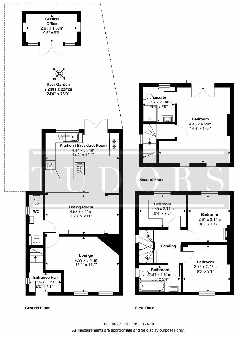
TUDORS are pleased to offer for sale this stunning four bedroom semi-detached home which has been extended and improved and offers excellent accommodation across over all three floors with the benefit of a rear extension and a loft conversion with luxury en-suite shower room. The vendor has si...
Property Oracle says ..
Therefore, we give this property 7 / 10. *Disclaimer: This is our option and does constitute a recommendation or financial advice. Do your own research. *
- Price
- 5
- Condition
- 9
- Location
- 8
- Land
- 7
- Bedrooms
- 4
- Bathrooms
- 3
- Sqft (est)
- 1,097.00
The heatmap indicates the level of crime in the area. The color of the heatmap indicates the crime severity and recency.
Metrics Year-on-Year
- Average area value
- 673,557.00 £Increased by 18.30 %
- Est sale value
- 737,184.00 £Increased by 23.99 %
- Average area rental value
- 1,645.00 £/moDecreased by 14.28 %
- Est letting value
- 1,097.00 £/moUnchanged by 0.00 %
- Est rental Yield
- 2.93 %Decreased by 27.48 %
- Crime Rate
- 20.00 %Unchanged by 0.00 %
from 569,340.00 £
from 594,574.00 £
from 1,919.00 £/mo
from 1,097.00 £/mo
from 4.04 %
from 20.00 %
Agent Activity
Tudor & Co created the listing.
Nearby Schools
| Name | Type | Ofsted | Distance |
|---|---|---|---|
| Chandlers Field Primary School | Foundation School | Good | 0.19 KM |
| Three Rivers Sure Start Children'S Centre | Children's Centre | 0.38 KM | |
| St Alban'S Catholic Primary School | Academy Converter | Good | 0.70 KM |
| Hurst Park Primary School | Community School | Good | 0.91 KM |
| Fox Grove School | Free Schools Special | 1.04 KM |
Images
Nearby Streets
| Name | Average Price | Average Sqft | Distance |
|---|---|---|---|
| Windsor Avenue | £ 0 | 0 | 0.00 KM |
| The Fairway | £ 536,667 | 0 | 0.00 KM |
| Lavender Court | £ 0 | 0 | 0.00 KM |
| Lower Sunbury Road | £ 70,000 | 0 | 0.00 KM |
| Parabola Court | £ 0 | 0 | 0.00 KM |
Nearby Transport
| Name | NLC | TLC | Distance |
|---|---|---|---|
| Hampton | 5560 | HMP | 1.81 KM |
| Esher | 5558 | ESH | 2.82 KM |
| Hampton Court | 5561 | HMC | 2.89 KM |
| Hersham | 5590 | HER | 3.49 KM |
| Thames Ditton | 5610 | THD | 3.49 KM |
Nearby Listings
| Address | Price | Type | Score | Distance |
|---|---|---|---|---|
| Priory Lane, West Molesey, KT8 | £ 799,950 | BUY | 7 / 10 | 0.00 KM |
| Helen Close, West Molesey | £ 825,000 | BUY | 6 / 10 | 0.07 KM |
| Priory Lane, West Molesey | £ 700,000 | BUY | 7 / 10 | 0.09 KM |
| Priory Lane, West Molesey | £ 799,950 | BUY | 7 / 10 | 0.11 KM |
| Beauchamp Road, West Molesey | £ 500,000 | BUY | 5 / 10 | 0.13 KM |
Nearby Properties
| Address | Price | Distance |
|---|---|---|
| 14 Priory Lane | £ 570,000 | 0.00 KM |
| 46 Priory Lane | £ 587,000 | 0.00 KM |
| 32 Priory Lane | £ 310,000 | 0.00 KM |
| 34 Priory Lane | £ 255,000 | 0.00 KM |
| 42 Priory Lane | £ 725,000 | 0.00 KM |