Adriatic Apartments, 20 Western Gateway, Royal Docks, London, E16
By Keatons
£ 495,000
Reviews
3 out of 5 stars
Keatons says ..
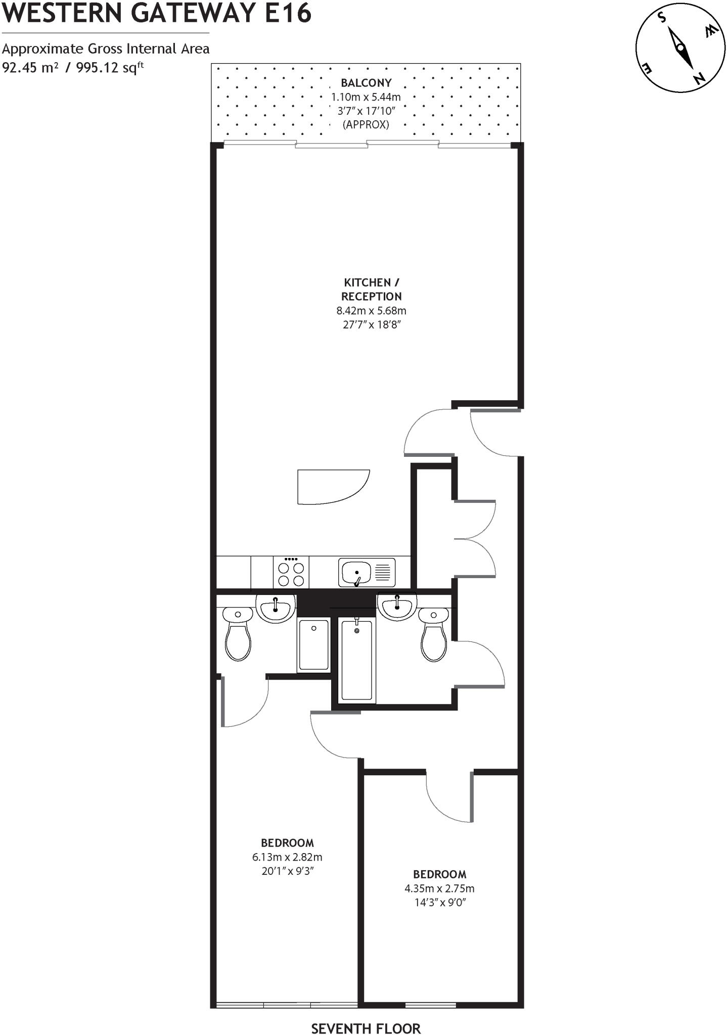
Offering nearly 1,000 sq. ft. of living space and views over Royal Victoria Docks, is this chain free two bedroom apartment. The property has a large open plan kitchen/lounge with a kitchen island and direct access to a balcony spanning the width of the property, two generous bedrooms and two bat...
Property Oracle says ..
This is a modern flat in a well-connected area of London. The property benefits from good transport links and proximity to schools. The flat itself appears to be in good condition, offering comfortable living space. The lack of garden is a drawback, but the balcony offers some outdoor space. The price is reasonable for the area, making it an attractive option for buyers looking for a convenient urban lifestyle.
Therefore, we give this property 6 / 10. *Disclaimer: This is our option and does constitute a recommendation or financial advice. Do your own research. *
- Price
- 6
- Condition
- 8
- Location
- 7
- Land
- 3
- Bedrooms
- 2
- Bathrooms
- 2
The heatmap indicates the level of crime in the area. The color of the heatmap indicates the crime severity and recency.
Metrics Year-on-Year
- Average area value
- 388,267.00 £Decreased by 11.51 %
- Average area rental value
- 2,387.00 £/moIncreased by 9.80 %
- Est rental Yield
- 7.38 %Increased by 24.03 %
- Crime Rate
- 4.00 %Unchanged by 0.00 %
Agent Activity
Keatons created the listing.
Nearby Schools
| Name | Type | Ofsted | Distance |
|---|---|---|---|
| Hallsville Primary School | Academy Converter | 0.51 KM | |
| St Luke'S Primary School | Voluntary Aided School | Good | 0.76 KM |
| Keir Hardie Primary School | Community School | Good | 0.94 KM |
| Britannia Village Primary School | Academy Converter | 0.94 KM | |
| Oasis Academy Silvertown | Free Schools | Good | 0.94 KM |
Images
Nearby Streets
| Name | Average Price | Average Sqft | Distance |
|---|---|---|---|
| Seagull Lane | £ 429,286 | 0 | 0.00 KM |
| Mason Close | £ 0 | 0 | 0.00 KM |
| Victoria Dock Road | £ 0 | 0 | 0.00 KM |
| Kamal Chunchie Way | £ 0 | 0 | 0.00 KM |
| Chaseway Lodge | £ 295,000 | 0 | 0.00 KM |
Nearby Transport
| Name | NLC | TLC | Distance |
|---|---|---|---|
| West Ham | 7474 | WEH | 2.66 KM |
| Westcombe Park | 5151 | WCB | 2.69 KM |
| Charlton | 5144 | CTN | 2.79 KM |
| Maze Hill | 5149 | MZH | 3.33 KM |
| Maryland | 6970 | MYL | 4.42 KM |
Nearby Listings
| Address | Price | Type | Score | Distance |
|---|---|---|---|---|
| Adriatic Apartments, 20 Western Gateway, Royal Docks, London, E16 | £ 495,000 | BUY | 6 / 10 | 0.00 KM |
| Western Gateway, London, E16 | £ 700,000 | BUY | 5 / 10 | 0.00 KM |
| Western Gateway, London | £ 399,950 | BUY | 6 / 10 | 0.00 KM |
| Adriatic Apartments, Royal Victoria, E16 | £ 357,000 | BUY | Unknown | 0.00 KM |
| Western Gateway, London | £ 300,000 | BUY | 6 / 10 | 0.00 KM |
Nearby Properties
| Address | Price | Distance |
|---|---|---|
| 17 Pollard Close | £ 467,000 | 0.16 KM |
| 6 Pollard Close | £ 84,000 | 0.16 KM |
| 1 Pollard Close | £ 470,000 | 0.16 KM |
| 18 Pollard Close | £ 283,000 | 0.16 KM |
| 9 Pollard Close | £ 333,500 | 0.16 KM |