Bradleys says ..
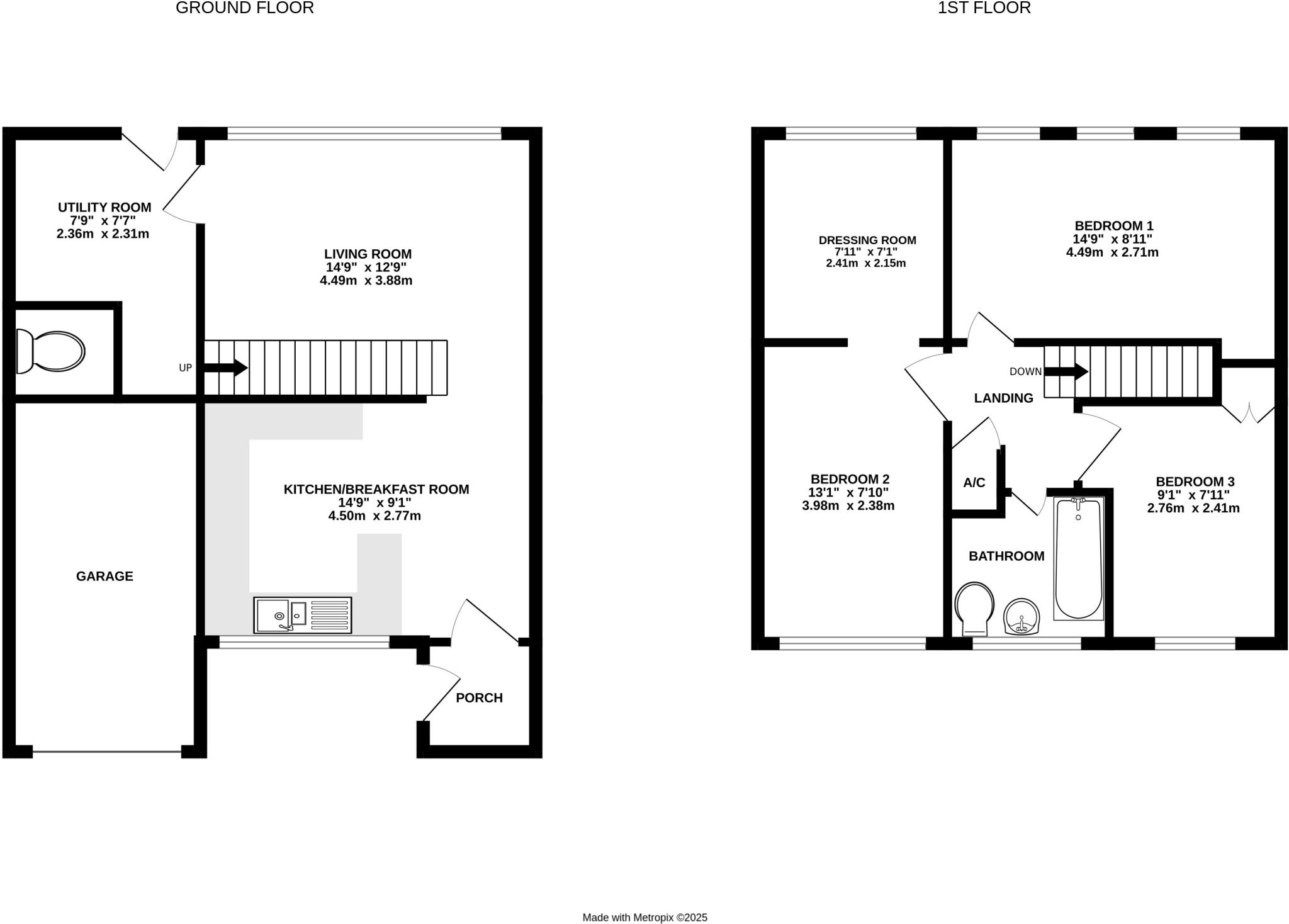
MID-LINK 3 BEDROOM HOUSE WITH GARAGE, PARKING AND GARDEN This mid-terraced home offers a fantastic opportunity to make it your own. With a little updating, you can enhance its potential! The spacious layout includes a bright kitchen/breakfast room, a sitting room, & three well-sized...
Property Oracle says ..
This three-bedroom property located on Langstone Drive in Exmouth, Devon, offers a potential entry point to the desirable Exmouth housing market. The property’s age is evident from the provided photographs; the interior features dated kitchen and bathroom fixtures, and the overall aesthetic suggests a need for some modernisation. While the photos show the house to be generally clean and habitable, potential buyers should expect to factor in refurbishment costs into their overall budget.
The property benefits from being close to several schools rated ‘Good’ by Ofsted, a significant advantage for families. The accessibility of the nearby Exmouth train station will be an attractive point for commuters. Although not explicitly stated, the presence of a small garden offers some outdoor space.
Compared to nearby listings, the price appears competitive within the range of houses in the region. However, a direct comparison with similar sized properties in comparable conditions within the immediate vicinity would yield a more precise evaluation. The lack of complete square footage data for neighbouring properties hinders a complete analysis.
In summary, this property presents an opportunity to acquire a three-bedroom house in Exmouth within a reasonable price bracket, but requires consideration of essential modernisation costs. The desirability of Exmouth offsets the drawbacks of dated interiors and moderate-sized garden to a degree. A thorough survey would be necessary prior to purchase to ascertain the true extent of any necessary repairs or upgrades.
Therefore, we give this property 5 / 10. *Disclaimer: This is our option and does constitute a recommendation or financial advice. Do your own research. *
- Price
- 7
- Condition
- 5
- Location
- 7
- Land
- 3
- Bedrooms
- 3
- Bathrooms
- 1
- Sqft (est)
- 1,158.95
The heatmap indicates the level of crime in the area. The color of the heatmap indicates the crime severity and recency.
Metrics Year-on-Year
- Average area value
- 412,759.00 £Increased by 3.22 %
- Est sale value
- 462,421.05 £Increased by 2.31 %
- Average area rental value
- 1,432.00 £/moDecreased by 13.89 %
- Est letting value
- 1,158.95 £/moUnchanged by 0.00 %
- Est rental Yield
- 4.16 %Decreased by 16.63 %
- Crime Rate
- 7.00 %Unchanged by 0.00 %
Agent Activity
Bradleys created the listing.
Nearby Schools
| Name | Type | Ofsted | Distance |
|---|---|---|---|
| Withycombe Raleigh Church Of England Primary School | Voluntary Controlled School | Good | 0.47 KM |
| Brixington Primary Academy | Academy Sponsor Led | Requires improvement | 0.58 KM |
| Marpool Primary School | Foundation School | Good | 0.60 KM |
| Exmouth & District Children'S Centre | Children's Centre | 0.62 KM | |
| Bassetts Farm Primary School | Foundation School | Good | 1.23 KM |
Images
Nearby Streets
| Name | Average Price | Average Sqft | Distance |
|---|---|---|---|
| Broad Park Road | £ 350,000 | 0 | 0.00 KM |
| Brook Meadow | £ 0 | 0 | 0.00 KM |
| Linden Close | £ 289,950 | 0 | 0.00 KM |
| St John's Road | £ 270,000 | 0 | 0.00 KM |
| School Lane | £ 0 | 0 | 0.00 KM |
Nearby Transport
| Name | NLC | TLC | Distance |
|---|---|---|---|
| Exmouth | 5756 | EXM | 2.43 KM |
| Lympstone Village | 5761 | LYM | 4.14 KM |
| Starcross | 3413 | SCS | 5.69 KM |
| Lympstone Commando | 5762 | LYC | 5.84 KM |
| Dawlish Warren | 3409 | DWW | 6.48 KM |
Nearby Listings
| Address | Price | Type | Score | Distance |
|---|---|---|---|---|
| Langstone Drive, Exmouth, Devon | £ 280,000 | BUY | 5 / 10 | 0.00 KM |
| Langstone Drive, Exmouth, Devon, EX8 | £ 275,000 | BUY | 6 / 10 | 0.04 KM |
| Langstone Drive, Exmouth, EX8 4HT | £ 300,000 | BUY | 7 / 10 | 0.06 KM |
| Langstone Drive, Exmouth | £ 380,000 | BUY | 8 / 10 | 0.07 KM |
| Langstone Drive, Exmouth, EX8 4JA | £ 225,000 | BUY | 6 / 10 | 0.12 KM |
Nearby Properties
| Address | Price | Distance |
|---|---|---|
| 2 Langstone Drive | £ 249,950 | 0.04 KM |
| 4 Langstone Drive | £ 225,000 | 0.04 KM |
| 18 Langstone Drive | £ 230,000 | 0.04 KM |
| 10 Parson Close | £ 160,000 | 0.04 KM |
| 1 Parson Close | £ 185,000 | 0.04 KM |