Nineveh Barn, Levant Road, Pendeen, Penzance, TR19
By Jackson Stops
£ 300,000
Reviews
3 out of 5 stars
Jackson Stops says ..
A RARE OPPORTUNITY TO CREATE A BESPOKE CONTEMPORARY BARN CONVERSION IN A HIGHLY SOUGHT AFTER COASTAL LOCATION IN WEST CORNWALL.
Property Oracle says ..
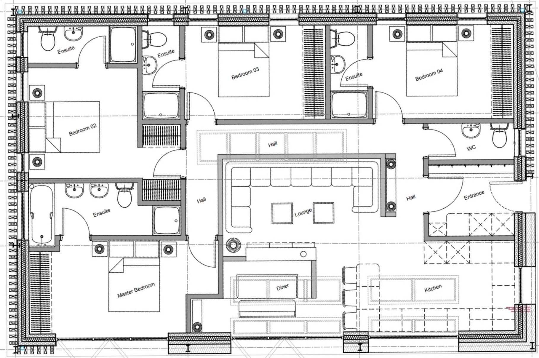
Nineveh Barn is a modern barn conversion located in Land’s End, Cornwall. The property features 4 bedrooms and 4 bathrooms, with a total square footage of 1,283.55 sqft. The barn is situated on a sizable plot of land and appears to be in excellent condition, with contemporary interior design and well-maintained exteriors. The location is rural, offering scenic views but potentially limited access to amenities. The listing price of £300,000 seems reasonable compared to the average price per square foot in the area and nearby property listings.
Therefore, we give this property 7 / 10. *Disclaimer: This is our option and does constitute a recommendation or financial advice. Do your own research. *
- Price
- 8
- Condition
- 9
- Location
- 6
- Land
- 7
- Bedrooms
- 4
- Bathrooms
- 4
- Sqft (est)
- 1,283.55
The heatmap indicates the level of crime in the area. The color of the heatmap indicates the crime severity and recency.
Metrics Year-on-Year
- Average area value
- 380,500.00 £Decreased by 7.95 %
- Est sale value
- 391,482.75 £Increased by 0.66 %
- Average area rental value
- 1,550.00 £/moIncreased by 31.91 %
- Est letting value
- 1,283.55 £/mo
- Est rental Yield
- 4.89 %Increased by 43.40 %
- Crime Rate
- 0.00 %
Agent Activity
Jackson Stops created the listing.
Nearby Schools
| Name | Type | Ofsted | Distance |
|---|---|---|---|
| Pendeen School | Academy Sponsor Led | Good | 1.94 KM |
| St Just Primary School | Academy Converter | Good | 2.23 KM |
| St Just Children'S Centre | Children's Centre Linked Site | 2.25 KM | |
| Cape Cornwall School | Academy Sponsor Led | 2.28 KM | |
| Sennen Community Primary Academy | Academy Converter | 7.57 KM |
Images
Nearby Streets
| Name | Average Price | Average Sqft | Distance |
|---|---|---|---|
| Botallack Lane | £ 320,000 | 0 | 0.00 KM |
| Devil's Lane | £ 995,000 | 0 | 0.00 KM |
| Jubilee Place | £ 500,000 | 0 | 0.00 KM |
| Old Foundry | £ 0 | 0 | 0.00 KM |
| Moorland Close | £ 221,667 | 0 | 0.00 KM |
Nearby Listings
| Address | Price | Type | Score | Distance |
|---|---|---|---|---|
| Nineveh Barn, Levant Road, Pendeen, Penzance, TR19 | £ 300,000 | BUY | 7 / 10 | 0.00 KM |
| Levant Road, Trewellard TR19 | £ 360,000 | BUY | Unknown | 0.63 KM |
| Levant Road, Trewellard TR19 | £ 575,000 | BUY | Unknown | 0.63 KM |
| Badgers Barn, Trewellard TR19 | £ 375,000 | BUY | Unknown | 0.63 KM |
| Levant Road, Trewellard, Pendeen, Penzance, TR19 | £ 325,000 | BUY | 6 / 10 | 0.65 KM |
Nearby Properties
| Address | Price | Distance |
|---|---|---|
| De Loro Cottage | £ 240,000 | 0.45 KM |
| De Lord Cottage | £ 77,000 | 0.45 KM |
| Heathcliffe | £ 185,000 | 0.62 KM |
| The Old Farmhouse | £ 160,000 | 0.62 KM |
| 20 Levant Road | £ 395,000 | 0.62 KM |