NE
Market Place, Heanor, DE75
By Newton Fallowell
£ 650
Newton Fallowell says ..
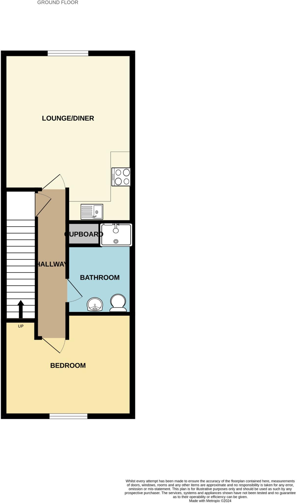
Wow! Take a look at this brand new, superbly finished, spacious modern flat. This second floor floor accommodation offers an open plan living kitchen with one double bedroom and three-piece shower room, with new carpets and flooring throughout. The flat is centrally located, overlooking the mar...
- Bedrooms
- 1
- Bathrooms
- 1
The heatmap indicates the level of crime in the area. The color of the heatmap indicates the crime severity and recency.
Metrics Year-on-Year
- Average area value
- 178,750.00 £Decreased by 27.19 %
- Average area rental value
- 583.00 £/moDecreased by 41.05 %
- Est rental Yield
- 3.91 %Decreased by 19.05 %
- Crime Rate
- 64.00 %Unchanged by 0.00 %
from 245,507.00 £
from 989.00 £/mo
from 4.83 %
from 64.00 %
Agent Activity
Newton Fallowell created the listing.
Nearby Schools
| Name | Type | Ofsted | Distance |
|---|---|---|---|
| Jasmine House School | Other Independent Special School | Outstanding | 0.25 KM |
| Mundy Cofe Junior School | Voluntary Controlled School | Good | 0.52 KM |
| Coppice Primary School | Community School | Good | 0.71 KM |
| Heanor Children'S Centre | Children's Centre | 0.76 KM | |
| Corfield Cofe Infant School | Voluntary Controlled School | Good | 0.93 KM |
Images
Nearby Streets
| Name | Average Price | Average Sqft | Distance |
|---|---|---|---|
| Red Lion Square | £ 0 | 0 | 0.00 KM |
| Derby Road | £ 0 | 0 | 0.00 KM |
| A608 | £ 0 | 0 | 0.00 KM |
| Cemetery Way | £ 0 | 0 | 0.00 KM |
| Spring Lane | £ 0 | 0 | 0.00 KM |
Nearby Transport
| Name | NLC | TLC | Distance |
|---|---|---|---|
| Langley Mill | 1761 | LGM | 2.53 KM |
| Ilkeston | 7783 | ILN | 7.50 KM |
| Alfreton | 1805 | ALF | 9.86 KM |
Nearby Listings
| Address | Price | Type | Score | Distance |
|---|---|---|---|---|
| Market Place, Heanor, DE75 | £ 650 | RENT | Unknown | 0.00 KM |
| Market House, Heanor | £ 650 | RENT | Unknown | 0.00 KM |
| Market Place, Heanor, DE75 | £ 650 | RENT | Unknown | 0.00 KM |
| Market Place, Heanor, DE75 | £ 650 | RENT | Unknown | 0.00 KM |
| Market Place, Heanor, DE75 | £ 650 | RENT | Unknown | 0.00 KM |
Nearby Properties
| Address | Price | Distance |
|---|---|---|
| 26 Mundy Street | £ 84,000 | 0.11 KM |
| 20 Mundy Street | £ 112,000 | 0.11 KM |
| 11 Mundy Street | £ 76,000 | 0.11 KM |
| 12 Mundy Street | £ 63,000 | 0.11 KM |
| 9a Mundy Street | £ 215,000 | 0.11 KM |