Bradleys says ..
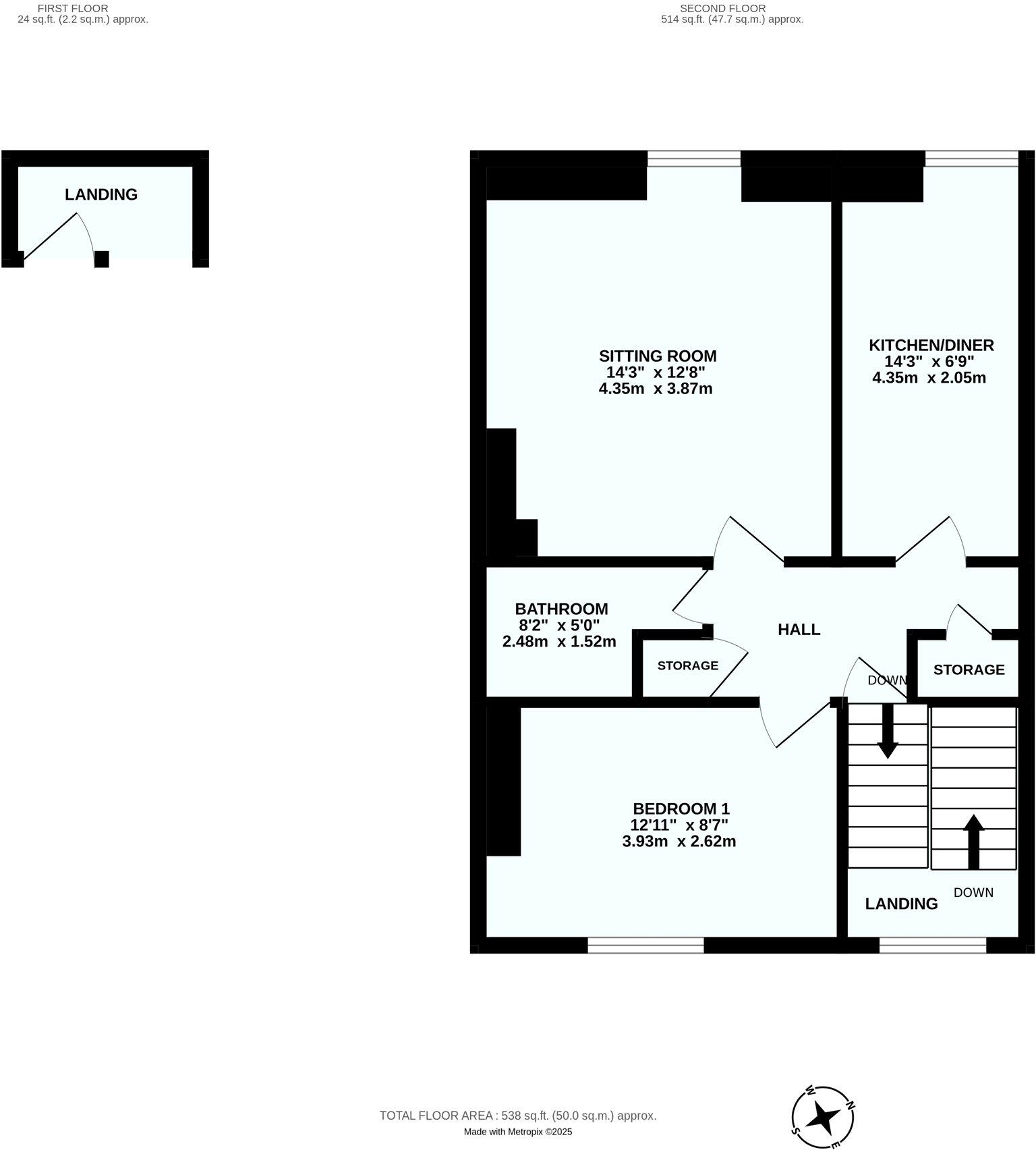
****CHAIN FREE APARTMENT**** Sold chain free, this well-presented one-bedroom apartment is offered with a share of the freehold and includes a dedicated off-street parking space. Ideally situated close to the University of Plymouth, as well as a great selection of shops, restaurants, an...
Property Oracle says ..
Therefore, we give this property 6 / 10. *Disclaimer: This is our option and does constitute a recommendation or financial advice. Do your own research. *
- Price
- 8
- Condition
- 8
- Location
- 7
- Land
- 3
- Bedrooms
- 1
- Bathrooms
- 1
The heatmap indicates the level of crime in the area. The color of the heatmap indicates the crime severity and recency.
Metrics Year-on-Year
- Average area value
- 253,125.00 £Increased by 15.55 %
- Average area rental value
- 741.00 £/moIncreased by 14.88 %
- Est rental Yield
- 3.51 %Decreased by 0.57 %
- Crime Rate
- 8.00 %Unchanged by 0.00 %
from 219,067.00 £
from 645.00 £/mo
from 3.53 %
from 8.00 %
Agent Activity
Bradleys marked this listing as sold.
Bradleys created the listing.
Nearby Schools
| Name | Type | Ofsted | Distance |
|---|---|---|---|
| Plymouth High School For Girls | Academy Converter | 0.32 KM | |
| Mount Street Primary School | Academy Sponsor Led | 0.54 KM | |
| Plymouth College | Other Independent School | 0.70 KM | |
| University Of Plymouth | Higher Education Institutions | 0.76 KM | |
| Hyde Park Infants' School | Academy Converter | 0.76 KM |
Images
Nearby Streets
| Name | Average Price | Average Sqft | Distance |
|---|---|---|---|
| Braidwood Terrace Lane | £ 120,000 | 0 | 0.00 KM |
| Greenbank Road | £ 127,750 | 0 | 0.00 KM |
| Alexandra Villas Lane | £ 0 | 0 | 0.00 KM |
| Greenbank Road | £ 271,250 | 0 | 0.00 KM |
| Seaton Avenue | £ 0 | 0 | 0.00 KM |
Nearby Transport
| Name | NLC | TLC | Distance |
|---|---|---|---|
| Plymouth | 3580 | PLY | 1.12 KM |
| Devonport | 3579 | DPT | 4.12 KM |
| Dockyard (Devonport) | 3588 | DOC | 4.70 KM |
| Keyham | 3571 | KEY | 5.22 KM |
| St Budeaux Ferry Road | 3590 | SBF | 6.37 KM |
Nearby Listings
| Address | Price | Type | Score | Distance |
|---|---|---|---|---|
| North Hill, Plymouth, Devon | £ 110,000 | BUY | 6 / 10 | 0.00 KM |
| North Hill, Plymouth, Devon, PL4 | £ 325,000 | BUY | Unknown | 0.02 KM |
| Plymouth, Devon, PL4 | £ 325,000 | BUY | 5 / 10 | 0.03 KM |
| Greenbank Road, Greenbank, Plymouth | £ 100,000 | BUY | 5 / 10 | 0.07 KM |
| Hill Park Crescent, Plymouth | £ 130,000 | BUY | 5 / 10 | 0.07 KM |
Nearby Properties
| Address | Price | Distance |
|---|---|---|
| 140 North Hill | £ 305,000 | 0.03 KM |
| 136 North Hill | £ 339,000 | 0.03 KM |
| 7 Alexandra Place | £ 231,000 | 0.08 KM |
| 5 Alexandra Place | £ 164,500 | 0.08 KM |
| 6 Alexandra Place | £ 285,000 | 0.08 KM |