Helmores says ..
A spacious village home with open plan living spaces, 3 bedrooms and a garage, off the main road and offering superb value for money – no chain.
Property Oracle says ..
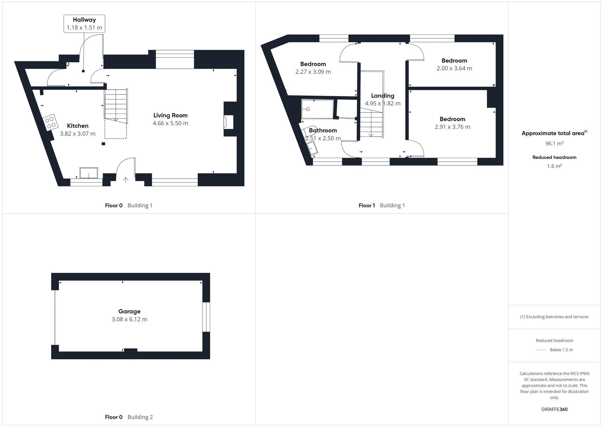
This is an end-of-terrace property located in the village of Witheridge. The property features three bedrooms and one bathroom. While the square footage is not provided, the images suggest a reasonably sized living space. The interior has some traditional features, such as exposed beams and a stone fireplace. The bathroom has been modernised. The kitchen could benefit from some updating. The property benefits from off-street parking. The local primary school is nearby, making it suitable for families. The asking price of £175,000 seems very competitive for the area, making it an attractive opportunity despite the need for some cosmetic improvements.
Therefore, we give this property 6 / 10. *Disclaimer: This is our option and does constitute a recommendation or financial advice. Do your own research. *
- Price
- 9
- Condition
- 7
- Location
- 7
- Land
- 4
- Bedrooms
- 3
- Bathrooms
- 1
The heatmap indicates the level of crime in the area. The color of the heatmap indicates the crime severity and recency.
Metrics Year-on-Year
- Average area value
- 661,000.00 £Increased by 29.29 %
- Average area rental value
- 2,410.00 £/moIncreased by 120.90 %
- Est rental Yield
- 4.38 %Increased by 71.09 %
- Crime Rate
- 117.00 %Unchanged by 0.00 %
Agent Activity
Helmores created the listing.
Nearby Schools
| Name | Type | Ofsted | Distance |
|---|---|---|---|
| Witheridge Church Of England Primary Academy | Academy Converter | Good | 0.47 KM |
| East Worlington Primary School | Academy Converter | Good | 4.68 KM |
| Rackenford Church Of England Primary School | Voluntary Aided School | Good | 8.09 KM |
| Morchard Bishop Church Of England Primary School | Academy Converter | 8.46 KM |
Images
Nearby Streets
| Name | Average Price | Average Sqft | Distance |
|---|---|---|---|
| Ansteys Court | £ 0 | 0 | 0.00 KM |
| B3137 | £ 0 | 0 | 0.00 KM |
Nearby Listings
| Address | Price | Type | Score | Distance |
|---|---|---|---|---|
| The Square, Witheridge, EX16 | £ 175,000 | BUY | 6 / 10 | 0.00 KM |
| North Street, Witheridge, Tiverton, Devon, EX16 | £ 295,000 | BUY | 6 / 10 | 0.06 KM |
| Witheridge | £ 325,000 | BUY | 6 / 10 | 0.08 KM |
| Witheridge | £ 275,000 | BUY | 5 / 10 | 0.10 KM |
| The Square, Witheridge, Tiverton, EX16 8AE | £ 200,000 | BUY | 5 / 10 | 0.11 KM |
Nearby Properties
| Address | Price | Distance |
|---|---|---|
| 15 The Square | £ 270,000 | 0.12 KM |
| 4 The Square | £ 267,000 | 0.12 KM |
| 3 Stable Mews | £ 142,000 | 0.12 KM |
| 7 The Square | £ 230,000 | 0.12 KM |
| 19 The Square | £ 340,000 | 0.12 KM |