Beach Walk, Broadstairs, Kent, CT10
By Miles & Barr
£ 425,000
Reviews
3 out of 5 stars
Miles & Barr says ..
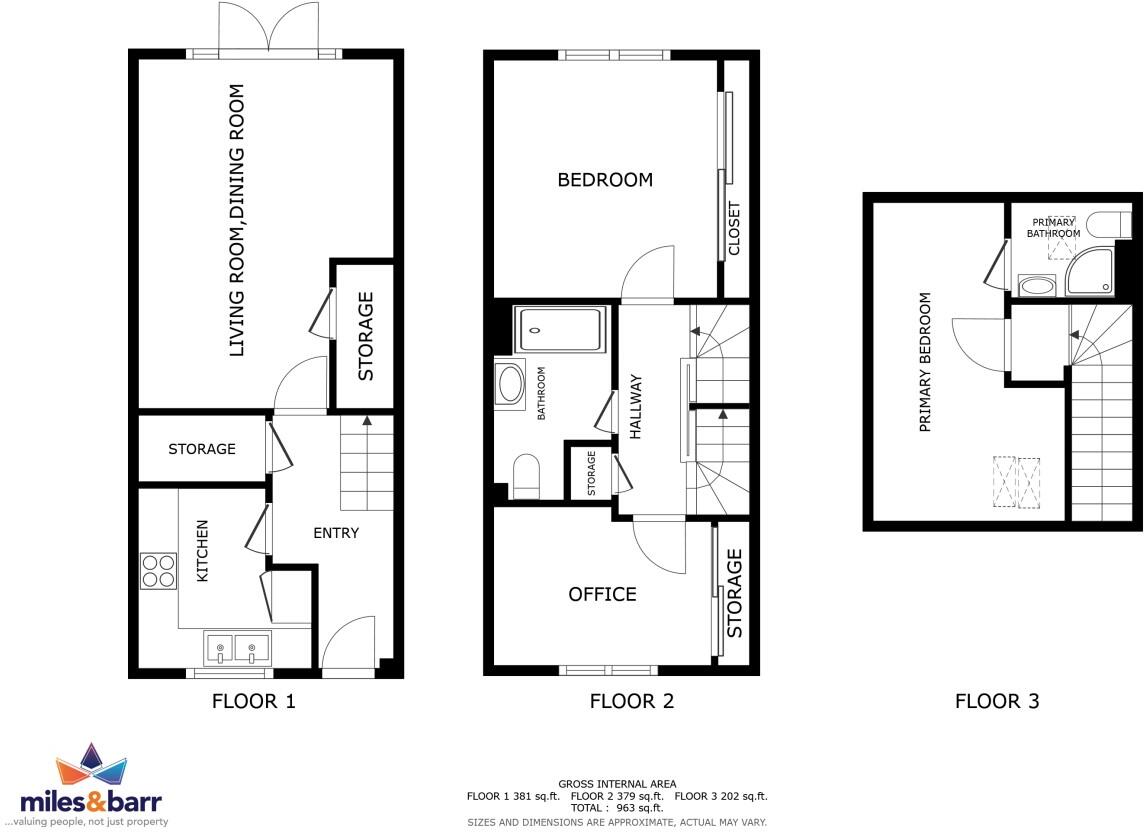
THREE BEDROOM TERRACE IN CENTRAL BROADSTAIRS!! Miles and Barr are delighted to bring to market this immaculately presented three bedroom terrace home situated in the heart of Broadstairs. Located on Beach Walk, this property is just moments from the High Street and within a short walk...
Property Oracle says ..
This is a well-presented terraced property on Beach Walk in Broadstairs. The house features three bedrooms and two bathrooms, making it suitable for families or couples. The interior is modern and appears to be in excellent condition, with a contemporary kitchen and bathrooms. The property benefits from a garden with a shed and patio area, providing outdoor space. Its location is a strong selling point, being close to the train station, schools, and the beach. While the price is reasonable for the area, it’s not significantly below market value. Overall, this property offers a blend of modern living in a desirable coastal location.
Therefore, we give this property 7 / 10. *Disclaimer: This is our option and does constitute a recommendation or financial advice. Do your own research. *
- Price
- 7
- Condition
- 9
- Location
- 8
- Land
- 7
- Bedrooms
- 3
- Bathrooms
- 2
- Sqft (est)
- 962.00
The heatmap indicates the level of crime in the area. The color of the heatmap indicates the crime severity and recency.
Metrics Year-on-Year
- Average area value
- 400,000.00 £Decreased by 26.17 %
- Est sale value
- 354,978.00 £Decreased by 20.30 %
- Average area rental value
- 895.00 £/moDecreased by 35.00 %
- Est letting value
- 0.00 £/moDecreased by 100.00 %
- Est rental Yield
- 2.69 %Decreased by 11.80 %
- Crime Rate
- 16.00 %Unchanged by 0.00 %
Agent Activity
Miles & Barr created the listing.
Nearby Schools
| Name | Type | Ofsted | Distance |
|---|---|---|---|
| St Mildred'S Primary Infant School | Foundation School | Outstanding | 0.55 KM |
| Ekc Group | Further Education | 0.83 KM | |
| Haddon Dene School | Other Independent School | 0.87 KM | |
| Stone Bay School | Foundation Special School | Good | 0.91 KM |
| Bradstow School | Community Special School | Outstanding | 0.93 KM |
Images
Nearby Streets
| Name | Average Price | Average Sqft | Distance |
|---|---|---|---|
| Belmont Road | £ 303,181 | 0 | 0.00 KM |
| Wardour Close | £ 0 | 0 | 0.00 KM |
| Cumberland Avenue | £ 498,750 | 0 | 0.00 KM |
| Clarendon Road | £ 385,000 | 0 | 0.00 KM |
| Linden Avenue | £ 481,250 | 0 | 0.00 KM |
Nearby Transport
| Name | NLC | TLC | Distance |
|---|---|---|---|
| Broadstairs | 5006 | BSR | 0.46 KM |
| Dumpton Park | 5034 | DMP | 2.17 KM |
| Ramsgate | 5023 | RAM | 4.13 KM |
| Margate | 5018 | MAR | 7.74 KM |
Nearby Listings
| Address | Price | Type | Score | Distance |
|---|---|---|---|---|
| Beach Walk, Broadstairs, Kent, CT10 | £ 425,000 | BUY | 7 / 10 | 0.00 KM |
| Stunning Town House, Central Broadstairs | £ 525,000 | BUY | 7 / 10 | 0.04 KM |
| Beach Walk, Broadstairs, CT10 1FA | £ 480,000 | BUY | Unknown | 0.04 KM |
| Vere Road, Broadstairs | £ 375,000 | BUY | 8 / 10 | 0.15 KM |
| Belmont Road, Broadstairs, CT10 | £ 650,000 | BUY | 7 / 10 | 0.15 KM |
Nearby Properties
| Address | Price | Distance |
|---|---|---|
| 8 Beach Walk | £ 395,000 | 0.04 KM |
| 1 Beach Walk | £ 358,000 | 0.04 KM |
| 10 Beach Walk | £ 480,000 | 0.04 KM |
| 3 Beach Walk | £ 415,000 | 0.04 KM |
| 11 Beach Walk | £ 428,000 | 0.04 KM |