Greenfields Avenue, Bromborough
By Brennan Ayre O'Neill
£ 424,995
Reviews
3 out of 5 stars
Brennan Ayre O'Neill says ..
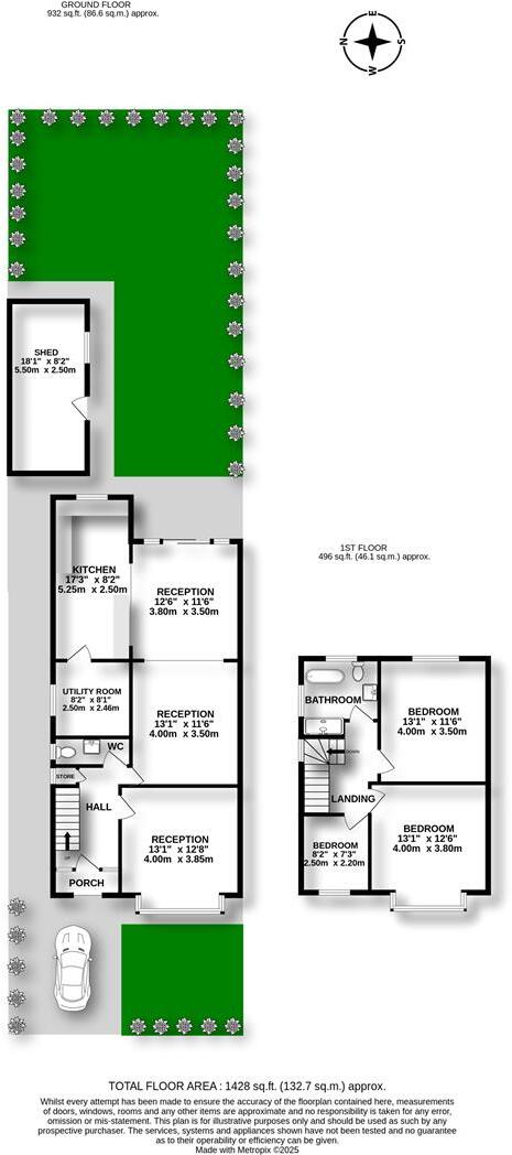
**NO CHAIN** Looking for a family home which is ideally located for local amenities? Look no further, this property has been transformed, having undergone a vast scheme of works including a stunning extension to the rear. Offering spacious accommodation with a number of extras including vaulted c...
Property Oracle says ..
This property is a 3-bedroom, 1-bathroom detached house located on Greenfields Avenue in Bromborough, Wirral. The house has recently undergone a significant extension and renovation, resulting in a modern, open-plan kitchen/diner and living area. The extension includes bi-fold doors leading to a patio and garden. The property also benefits from a detached garage/workshop. The location is convenient, with several primary schools within a reasonable distance and good access to the Merseyrail network. The average house price in the area is £249,309, and the average price per square foot is £258. This property is listed at £424,995, which is significantly higher than the average. However, considering the size (1281 sqft), recent renovations, and the modern style, the price may be justified, although a detailed comparison with similar recently renovated properties in the area would be necessary to confirm this. The property benefits from a good-sized garden.
Therefore, we give this property 7 / 10. *Disclaimer: This is our option and does constitute a recommendation or financial advice. Do your own research. *
- Price
- 6
- Condition
- 9
- Location
- 7
- Land
- 8
- Bedrooms
- 3
- Bathrooms
- 1
- Sqft (est)
- 1,281.00
The heatmap indicates the level of crime in the area. The color of the heatmap indicates the crime severity and recency.
Metrics Year-on-Year
- Average area value
- 264,090.00 £Increased by 9.78 %
- Est sale value
- 343,308.00 £Increased by 12.61 %
- Average area rental value
- 795.00 £/moDecreased by 30.93 %
- Est letting value
- 0.00 £/moDecreased by 100.00 %
- Est rental Yield
- 3.61 %Decreased by 37.11 %
- Crime Rate
- 4.00 %Unchanged by 0.00 %
Agent Activity
Brennan Ayre O'Neill created the listing.
Nearby Schools
| Name | Type | Ofsted | Distance |
|---|---|---|---|
| Raeburn Primary School | Community School | Good | 0.54 KM |
| Brookhurst Primary School | Community School | Good | 0.59 KM |
| Bromborough Children'S Centre | Children's Centre | 1.03 KM | |
| Mendell Primary School | Community School | Requires improvement | 1.04 KM |
| Christ The King Catholic Primary School | Voluntary Aided School | Good | 1.45 KM |
Images
Nearby Streets
| Name | Average Price | Average Sqft | Distance |
|---|---|---|---|
| Rose Croft | £ 0 | 0 | 0.00 KM |
| Briscoe Grove | £ 425,000 | 0 | 0.00 KM |
| Freestone Drive | £ 260,000 | 0 | 0.00 KM |
| Greenacre Drive | £ 400,000 | 0 | 0.00 KM |
| Beechwood Road | £ 0 | 0 | 0.00 KM |
Nearby Transport
| Name | NLC | TLC | Distance |
|---|---|---|---|
| Bromborough | 2190 | BOM | 0.16 KM |
| Bromborough Rake | 2191 | BMR | 0.86 KM |
| Eastham Rake | 2128 | ERA | 1.80 KM |
| Spital | 2199 | SPI | 2.08 KM |
| Hooton | 2193 | HOO | 3.04 KM |
Nearby Listings
| Address | Price | Type | Score | Distance |
|---|---|---|---|---|
| Greenfields Avenue, Bromborough | £ 424,995 | BUY | 7 / 10 | 0.00 KM |
| Greenfields Avenue, Bromborough | £ 475,000 | BUY | 7 / 10 | 0.09 KM |
| Dawpool Drive, Bromborough | £ 260,000 | BUY | 7 / 10 | 0.13 KM |
| Dawpool Drive, Bromborough | £ 315,000 | BUY | Unknown | 0.13 KM |
| Greenways Court, Bromborough | £ 100,000 | BUY | 6 / 10 | 0.16 KM |
Nearby Properties
| Address | Price | Distance |
|---|---|---|
| 19 Greenfields Avenue | £ 168,000 | 0.06 KM |
| 43 Greenfields Avenue | £ 183,500 | 0.06 KM |
| 37 Greenfields Avenue | £ 199,950 | 0.06 KM |
| 59 Greenfields Avenue | £ 165,000 | 0.06 KM |
| 57 Greenfields Avenue | £ 195,000 | 0.06 KM |