Acorn says ..
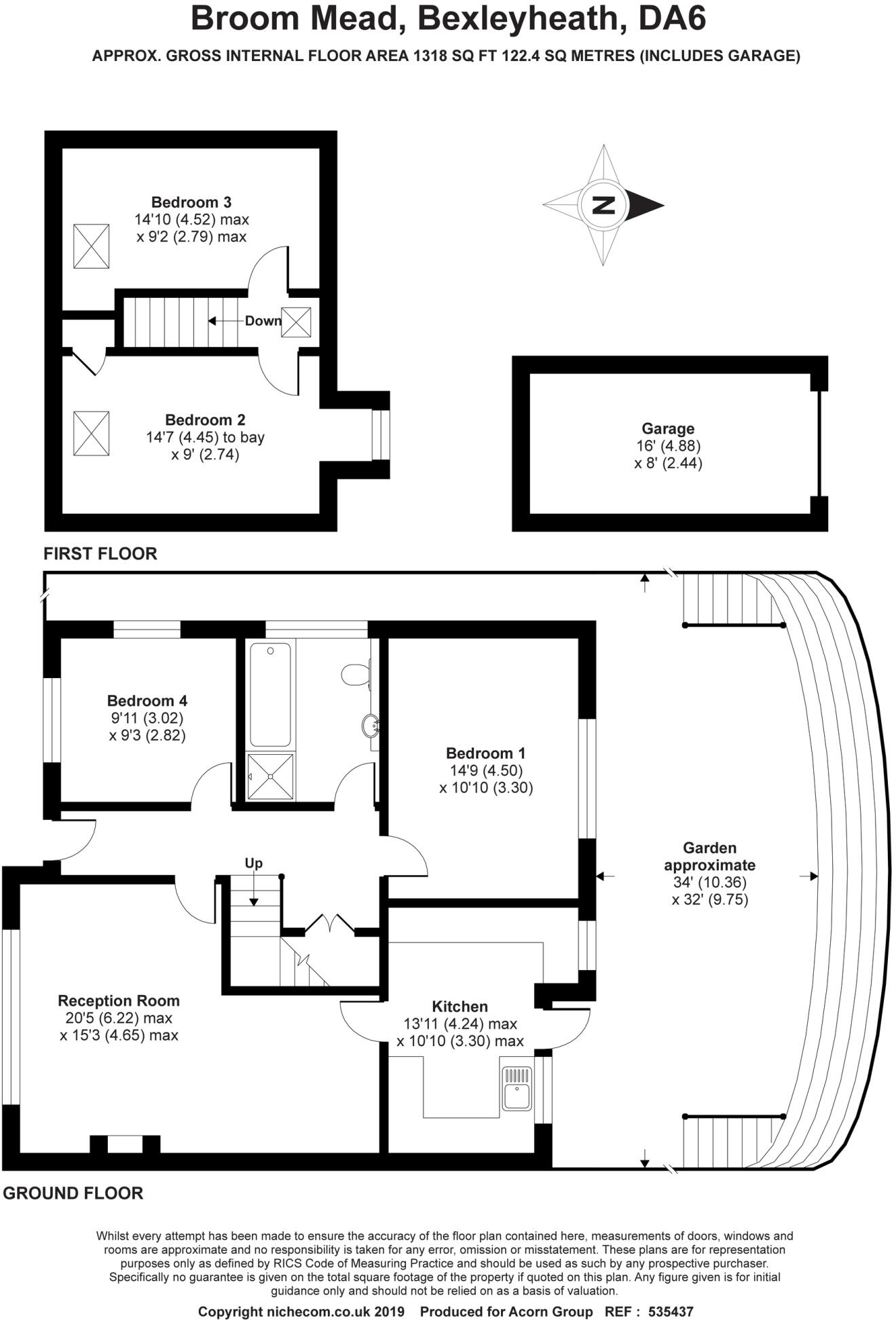
Tucked away on the ever-desirable Broom Mead, this deceptively spacious home offers over 1,318 sq ft (122.4 sqm) of beautifully arranged accommodation across two floors. Elevated from the road, the property is accessed via steps to the main entrance, giving a sense of privacy while enjoying a pea...
Property Oracle says ..
This is a 4-bedroom bungalow in Bexleyheath, Greater London. The property is in good condition and features a modern interior. It benefits from its proximity to well-regarded schools and local amenities. The property includes a garden, providing outdoor space. The asking price is above the local average, but may be justified by the property’s condition and number of bedrooms.
Therefore, we give this property 7 / 10. *Disclaimer: This is our option and does constitute a recommendation or financial advice. Do your own research. *
- Price
- 7
- Condition
- 8
- Location
- 7
- Land
- 6
- Bedrooms
- 4
- Bathrooms
- 1
The heatmap indicates the level of crime in the area. The color of the heatmap indicates the crime severity and recency.
Metrics Year-on-Year
- Average area value
- 439,150.00 £Increased by 4.63 %
- Average area rental value
- 1,750.00 £/moDecreased by 8.81 %
- Est rental Yield
- 4.78 %Decreased by 12.93 %
- Crime Rate
- 0.00 %
Agent Activity
Acorn created the listing.
Nearby Schools
| Name | Type | Ofsted | Distance |
|---|---|---|---|
| Beths Grammar School | Academy Converter | Outstanding | 0.34 KM |
| St Columba'S Catholic Boys' School | Academy Converter | Good | 0.52 KM |
| Gravel Hill Primary School | Academy Converter | 0.61 KM | |
| St Catherine'S Catholic School | Academy Converter | Good | 0.78 KM |
| Bexleyheath Academy | Academy Sponsor Led | Good | 1.11 KM |
Images
Nearby Streets
| Name | Average Price | Average Sqft | Distance |
|---|---|---|---|
| Christie House | £ 0 | 0 | 0.00 KM |
| Dashwood Close | £ 500,000 | 0 | 0.00 KM |
| Gravel Hill | £ 625,000 | 0 | 0.00 KM |
| Arnsberg Way | £ 0 | 0 | 0.00 KM |
| Love Lane | £ 0 | 0 | 0.00 KM |
Nearby Transport
| Name | NLC | TLC | Distance |
|---|---|---|---|
| Bexley | 5093 | BXY | 1.11 KM |
| Barnehurst | 5089 | BNH | 1.94 KM |
| Bexleyheath | 5094 | BXH | 2.52 KM |
| Crayford | 5100 | CRY | 3.03 KM |
| Albany Park | 5132 | AYP | 3.26 KM |
Nearby Listings
| Address | Price | Type | Score | Distance |
|---|---|---|---|---|
| Broom Mead, Bexleyheath | £ 550,000 | BUY | 7 / 10 | 0.00 KM |
| Broom Mead, Bexleyheath | £ 475,000 | BUY | 5 / 10 | 0.14 KM |
| Rochester Drive, Bexley | £ 550,000 | BUY | 7 / 10 | 0.18 KM |
| Rochester Drive, Bexley, Kent | £ 396,500 | BUY | 7 / 10 | 0.19 KM |
| Rochester Drive, Bexley, Kent | £ 600,000 | BUY | 6 / 10 | 0.19 KM |
Nearby Properties
| Address | Price | Distance |
|---|---|---|
| 1 Newick Close | £ 375,000 | 0.09 KM |
| 3 Newick Close | £ 450,000 | 0.09 KM |
| 5 Newick Close | £ 245,000 | 0.09 KM |
| 2 Cranleigh Close | £ 740,000 | 0.10 KM |
| 1 Cranleigh Close | £ 555,000 | 0.10 KM |