Empire Estates says ..
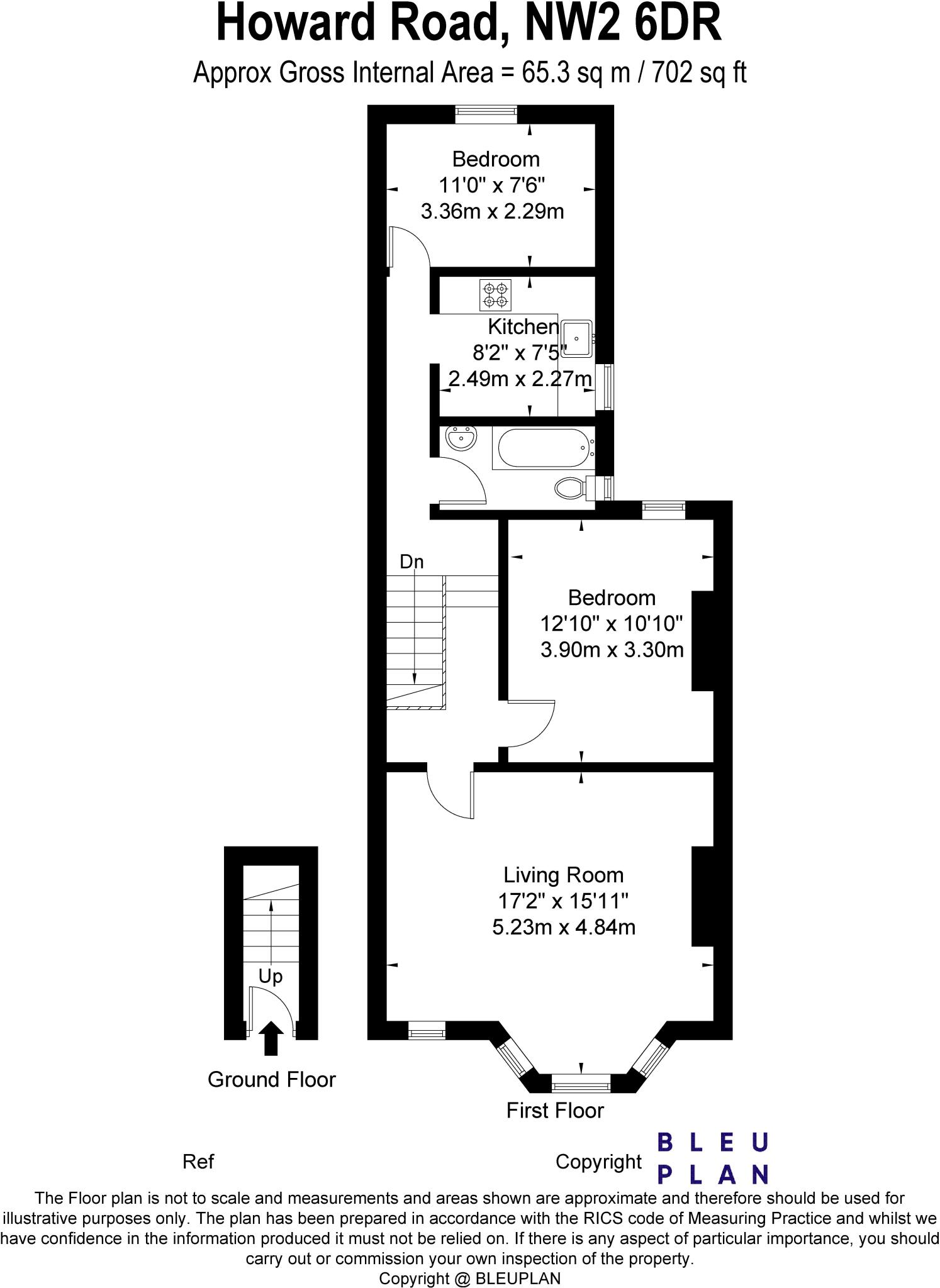
Empire Estates are pleased to bring to the market a generously sized first floor flat, benefiting from two double bedrooms, a large reception and a separate kitchen, a three-piece family bathroom and potential for conversion into the loft STPP. Perfect for a first time buy or an as investment. H...
Property Oracle says ..
This maisonette is located in the Mapesbury area of Brent, London. The property is conveniently located near several primary schools with good Ofsted ratings, including Anson Primary School (0.35km), St Agnes’ Catholic Primary School (0.86km), and Mora Primary School (0.94km). Transport links are also readily available, with Cricklewood train station just 0.57km away, offering Thameslink services. The property itself appears to be in reasonable condition, though further details would be needed to make a definitive assessment. The kitchen and bathroom seem recently updated, while other areas may need some minor improvements. While the property does not have a large plot size, it does benefit from its location in a desirable area of London. The list price of £439,950 seems slightly below the average price for the area (£813,722), but the average price per sqft is £714, and this property is smaller than average. More information on the property’s size would be needed to make a fully informed judgement on the price. Overall, this property offers a good balance of location, condition and price.
Therefore, we give this property 5 / 10. *Disclaimer: This is our option and does constitute a recommendation or financial advice. Do your own research. *
- Price
- 7
- Condition
- 7
- Location
- 8
- Land
- 1
- Bedrooms
- 2
- Bathrooms
- 1
- Sqft (est)
- 702.00
The heatmap indicates the level of crime in the area. The color of the heatmap indicates the crime severity and recency.
Metrics Year-on-Year
- Average area value
- 1,318,000.00 £Increased by 70.66 %
- Est sale value
- 1,035,450.00 £Increased by 119.49 %
- Average area rental value
- 1,474.00 £/moDecreased by 27.60 %
- Est letting value
- 702.00 £/moUnchanged by 0.00 %
- Est rental Yield
- 1.34 %Decreased by 57.59 %
- Crime Rate
- 17.00 %Unchanged by 0.00 %
Agent Activity
Empire Estates created the listing.
Nearby Schools
| Name | Type | Ofsted | Distance |
|---|---|---|---|
| Anson Primary School | Community School | Good | 0.35 KM |
| St Agnes' Catholic Primary School | Voluntary Aided School | Outstanding | 0.86 KM |
| Mora Primary School | Community School | Good | 0.94 KM |
| Claremont Primary School | Academy Converter | Good | 1.10 KM |
| Hampstead School | Community School | Good | 1.12 KM |
Images
Nearby Streets
| Name | Average Price | Average Sqft | Distance |
|---|---|---|---|
| Sylvan Grove | £ 0 | 0 | 0.00 KM |
| Hudson Way | £ 625,000 | 0 | 0.00 KM |
| Clovelly Court | £ 0 | 0 | 0.00 KM |
| Stoll Close | £ 0 | 0 | 0.00 KM |
| Gardiner Avenue | £ 0 | 0 | 0.00 KM |
Nearby Transport
| Name | NLC | TLC | Distance |
|---|---|---|---|
| Cricklewood | 1519 | CRI | 0.57 KM |
| Brondesbury Park | 1438 | BSP | 1.85 KM |
| Brondesbury | 1437 | BSY | 2.02 KM |
| Kensal Rise | 1448 | KNR | 2.39 KM |
| Queens Park (London) | 1419 | QPW | 2.78 KM |
Nearby Listings
| Address | Price | Type | Score | Distance |
|---|---|---|---|---|
| Howard Road, London, NW2 | £ 439,950 | BUY | 5 / 10 | 0.00 KM |
| Howard Road, London, NW2 | £ 400,000 | BUY | 7 / 10 | 0.05 KM |
| Oaklands Road, London, NW2 | £ 849,950 | BUY | Unknown | 0.08 KM |
| Rockhall Road, London, NW2 | £ 995,000 | BUY | 6 / 10 | 0.09 KM |
| Howard Road, Cricklewood | £ 425,000 | BUY | 5 / 10 | 0.09 KM |
Nearby Properties
| Address | Price | Distance |
|---|---|---|
| 26a Howard Road | £ 435,000 | 0.00 KM |
| 46 Howard Road | £ 250,000 | 0.00 KM |
| 30a Howard Road | £ 293,000 | 0.00 KM |
| 6 Howard Road | £ 154,000 | 0.00 KM |
| 56 Howard Road | £ 100,000 | 0.00 KM |