Penmaen Corner, Blackwood, Caerphilly (County of), NP12
By Cariad Property
£ 229,950
Reviews
3 out of 5 stars
Cariad Property says ..
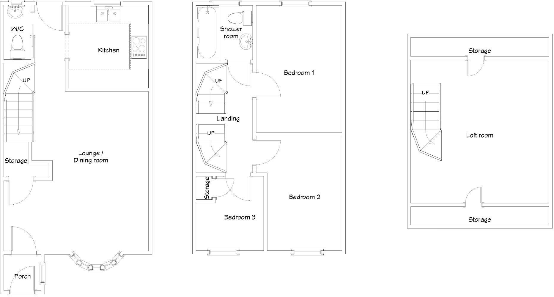
BEAUTIFUL FAMILY HOME, lovely gardens with ample driveway parking, modern design, three bedrooms, two WCs, attractive décor, spacious light and airy, sought after location.
Property Oracle says ..
This is a three-bedroom semi-detached property in Penmaen, Blackwood. The house appears to be in good condition, with modern interior decor. It features a well-maintained garden with a shed and a driveway for parking. The property is located within a reasonable distance of local schools and transportation links. The asking price of £229,950 seems fair when compared to similar properties in the area.
Therefore, we give this property 6 / 10. *Disclaimer: This is our option and does constitute a recommendation or financial advice. Do your own research. *
- Price
- 7
- Condition
- 7
- Location
- 6
- Land
- 6
- Bedrooms
- 3
- Bathrooms
- 2
The heatmap indicates the level of crime in the area. The color of the heatmap indicates the crime severity and recency.
Metrics Year-on-Year
- Average area value
- 333,429.00 £Increased by 23.91 %
- Average area rental value
- 995.00 £/moIncreased by 7.57 %
- Est rental Yield
- 3.58 %Decreased by 13.32 %
- Crime Rate
- 10.00 %Unchanged by 0.00 %
Agent Activity
Cariad Property created the listing.
Nearby Schools
| Name | Type | Ofsted | Distance |
|---|---|---|---|
| Rhiw Syr Dafyedd Primary | Welsh Establishment | 1.10 KM | |
| Libanus Primary School | Welsh Establishment | 1.87 KM | |
| Pontllanfraith Primary School | Welsh Establishment | 1.92 KM | |
| Blackwood Comprehensive School | Welsh Establishment | 2.25 KM | |
| Blackwood Primary School | Welsh Establishment | 2.29 KM |
Images
Nearby Streets
| Name | Average Price | Average Sqft | Distance |
|---|---|---|---|
| Penmaen Estate | £ 0 | 0 | 0.00 KM |
| B4251 | £ 599,950 | 0 | 0.00 KM |
| Chartist Bridge | £ 0 | 0 | 0.00 KM |
| A4048 | £ 0 | 0 | 0.00 KM |
| Cae'R Garreg | £ 0 | 0 | 0.00 KM |
Nearby Transport
| Name | NLC | TLC | Distance |
|---|---|---|---|
| Newbridge | 9919 | NBE | 4.61 KM |
| Gilfach Fargoed | 4022 | GFF | 4.87 KM |
| Pengam | 4021 | PGM | 5.16 KM |
| Hengoed | 4028 | HNG | 5.40 KM |
| Bargoed | 4011 | BGD | 5.46 KM |
Nearby Listings
| Address | Price | Type | Score | Distance |
|---|---|---|---|---|
| Penmaen Corner, Blackwood, Caerphilly (County of), NP12 | £ 229,950 | BUY | 6 / 10 | 0.00 KM |
| Oakdale Place, Oakdale, Blackwood | £ 210,000 | BUY | 6 / 10 | 0.03 KM |
| Oakdale Place, Oakdale, Blackwood | £ 270,000 | BUY | 7 / 10 | 0.03 KM |
| Oakdale Place, Oakdale, Blackwood | £ 265,000 | BUY | 7 / 10 | 0.03 KM |
| Oakdale Place, Oakdale, Blackwood | £ 270,000 | BUY | 7 / 10 | 0.03 KM |
Nearby Properties
| Address | Price | Distance |
|---|---|---|
| 3 Penmaen Corner | £ 95,000 | 0.00 KM |
| 25 Penmaen Corner | £ 153,000 | 0.00 KM |
| 27 Penmaen Corner | £ 125,000 | 0.00 KM |
| 9 Groveside Road | £ 92,000 | 0.14 KM |
| 13 Groveside Road | £ 190,000 | 0.14 KM |