3200 sq ft barn conversion in 1.5 acres
By Lord & Porter Limited
£ 1,100,000
Reviews
3 out of 5 stars
Lord & Porter Limited says ..
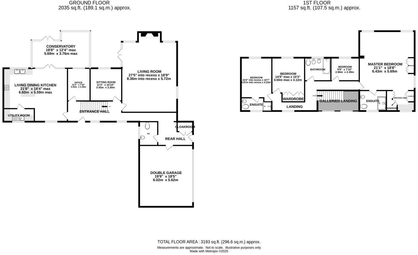
Nestled on a tranquil rural lane in the picturesque Cheshire countryside, this substantial and beautifully refurbished conversion seamlessly blends period character with contemporary luxury. Extending to approximately 3,200 square feet, the property offers space and versatility, and benefits f...
Property Oracle says ..
This is a charming barn conversion located in the desirable area of Brereton Rural, Cheshire East. The property offers a blend of traditional character and modern amenities, making it an attractive option for discerning buyers. The interior features spacious living areas, a well-equipped kitchen, and comfortable bedrooms. The property also benefits from a conservatory, which provides a bright and airy space to relax and enjoy the surrounding gardens. The property includes a large garden and additional land with stables, making it suitable for those with equestrian interests or who simply desire ample outdoor space. While the list price is higher than the average property price in the area, the property’s unique features and generous size may justify the premium. The property is located within a reasonable distance of local schools and transportation links, making it a convenient location for families and commuters.
Therefore, we give this property 7 / 10. *Disclaimer: This is our option and does constitute a recommendation or financial advice. Do your own research. *
- Price
- 6
- Condition
- 8
- Location
- 7
- Land
- 9
- Bedrooms
- 4
- Bathrooms
- 3
- Sqft (est)
- 2,324.58
The heatmap indicates the level of crime in the area. The color of the heatmap indicates the crime severity and recency.
Metrics Year-on-Year
- Average area value
- 511,711.00 £Increased by 14.39 %
- Est sale value
- 1,422,642.96 £Increased by 174.44 %
- Average area rental value
- 1,517.00 £/moIncreased by 3.27 %
- Est letting value
- 2,324.58 £/mo
- Est rental Yield
- 3.56 %Decreased by 9.64 %
- Crime Rate
- 0.00 %
Agent Activity
Lord & Porter Limited created the listing.
Nearby Schools
| Name | Type | Ofsted | Distance |
|---|---|---|---|
| Brereton Cofe Primary School | Academy Converter | 3.61 KM | |
| Terra Nova School | Other Independent School | 4.14 KM | |
| Goostrey Community Primary School | Community School | Outstanding | 4.87 KM |
| Hermitage Primary School | Academy Converter | 5.20 KM | |
| Smallwood Cofe Primary School | Academy Converter | Good | 6.02 KM |
Images
Nearby Streets
| Name | Average Price | Average Sqft | Distance |
|---|---|---|---|
| Davenport Park Lane | £ 0 | 0 | 0.00 KM |
| Bagmere Lane | £ 0 | 0 | 0.00 KM |
Nearby Transport
| Name | NLC | TLC | Distance |
|---|---|---|---|
| Goostrey | 1220 | GTR | 4.23 KM |
| Holmes Chapel | 1221 | HCH | 5.08 KM |
| Chelford (Cheshire) | 2764 | CEL | 9.32 KM |
Nearby Listings
| Address | Price | Type | Score | Distance |
|---|---|---|---|---|
| Davenport Mews, Davenport | £ 895,000 | BUY | 7 / 10 | 0.00 KM |
| 3200 sq ft barn conversion in 1.5 acres | £ 1,100,000 | BUY | 7 / 10 | 0.00 KM |
| Davenport, Congleton, CW12 | £ 1,000,000 | BUY | 7 / 10 | 0.07 KM |
| Davenport Park Lane, Off Holmes Chapel Road, Cheshire | £ 1,100,000 | BUY | 7 / 10 | 0.24 KM |
| Davenport Park Lane, Off Holmes Chapel Road, Cheshire | £ 1,100,000 | BUY | 7 / 10 | 0.24 KM |
Nearby Properties
| Address | Price | Distance |
|---|---|---|
| 2 Quinta Cottages | £ 250,000 | 0.86 KM |
| 3 Holmes Chapel Road | £ 117,000 | 0.88 KM |
| 1 Holmes Chapel Road | £ 250,000 | 0.88 KM |
| 4 Holmes Chapel Road | £ 97,000 | 0.88 KM |
| Beech Farm | £ 350,000 | 0.88 KM |