Headcorn Drive, Canterbury
By Page & Co Property Services Ltd
£ 450,000
Reviews
3 out of 5 stars
Page & Co Property Services Ltd says ..
A beautifully presented four-bedroom, detached family home situated in a family friendly neighbourhood, within walking distance to St. Stephen`s Junior School and the University of Kent. Garage and driveway, no forward chain.
Property Oracle says ..
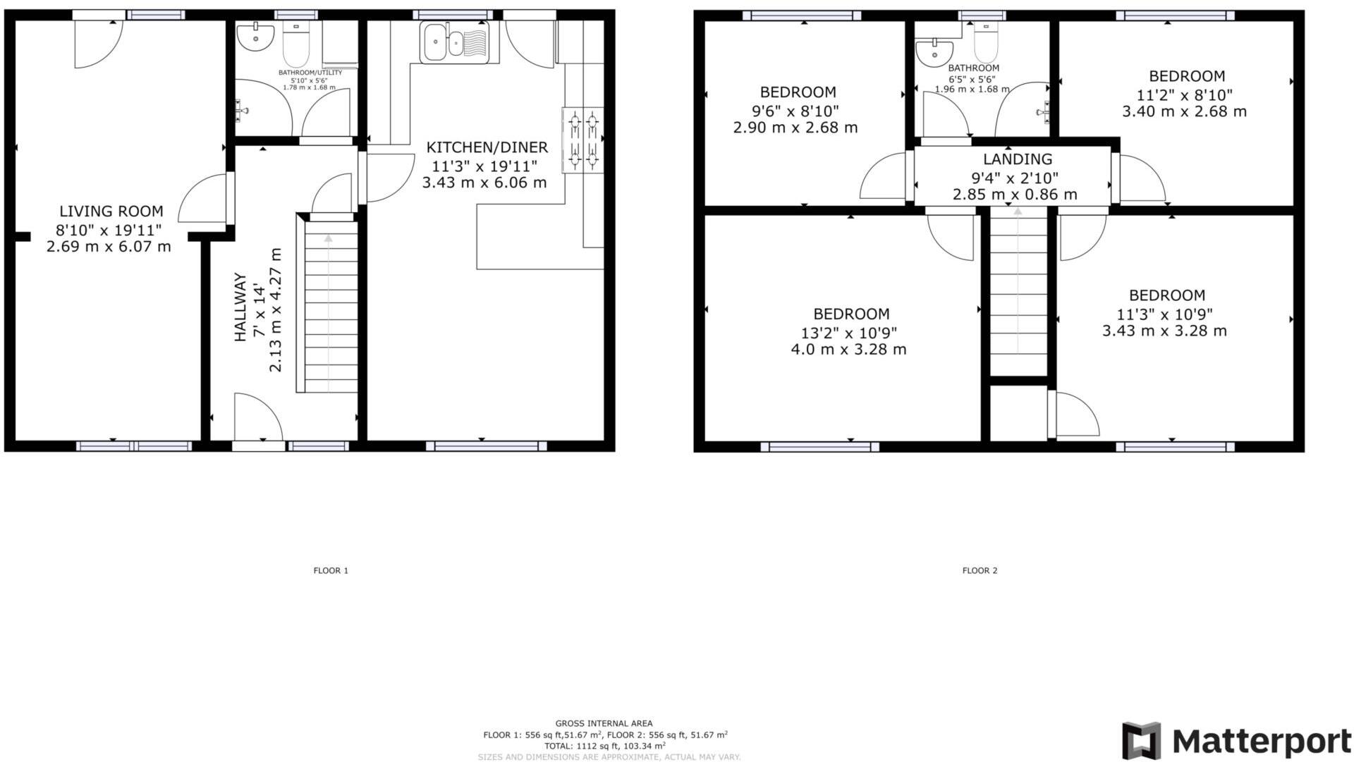
The property is a 4-bedroom, 2-bathroom detached house located in Headcorn Drive, Canterbury, Kent. The list price is £450,000, and the property has 1,112 square feet of living space. The average price for properties in the area is £366,034, with an average price per square foot of £424. The property appears to be in good condition, having undergone some modernisation. The kitchen and bathrooms have been recently updated, and the living areas are presented well. There is evidence of a garden and a garage. The location is good, with nearby schools including St Stephen’s Junior School (rated ‘Good’ by Ofsted) and several others within a reasonable distance. Canterbury West train station is also relatively close, providing convenient access to transport links. Given the property’s size, condition, location, and the presence of a garden and garage, the list price of £450,000 seems reasonable, although slightly above the average price per square foot for the area. However, the superior condition and additional features may justify this premium. More comparable properties would be needed to give a more definitive assessment of value.
Therefore, we give this property 7 / 10. *Disclaimer: This is our option and does constitute a recommendation or financial advice. Do your own research. *
- Price
- 7
- Condition
- 8
- Location
- 8
- Land
- 7
- Bedrooms
- 4
- Bathrooms
- 2
- Sqft (est)
- 1,112.00
The heatmap indicates the level of crime in the area. The color of the heatmap indicates the crime severity and recency.
Metrics Year-on-Year
- Average area value
- 253,083.00 £Decreased by 33.52 %
- Est sale value
- 658,304.00 £Increased by 97.33 %
- Average area rental value
- 1,048.00 £/moIncreased by 8.04 %
- Est letting value
- 2,224.00 £/mo
- Est rental Yield
- 4.97 %Increased by 62.42 %
- Crime Rate
- 5.00 %Unchanged by 0.00 %
Agent Activity
Page & Co Property Services Ltd marked this listing as sold.
Page & Co Property Services Ltd created the listing.
Nearby Schools
| Name | Type | Ofsted | Distance |
|---|---|---|---|
| St Stephen'S Junior School | Academy Converter | Good | 0.98 KM |
| St Stephen'S Infant School | Academy Converter | 1.05 KM | |
| Riverside Children'S Centre (Canterbury) | Children's Centre | 1.39 KM | |
| The Archbishop'S School | Foundation School | Requires improvement | 1.47 KM |
| St Johns Church Of England Primary School | Voluntary Controlled School | Good | 1.63 KM |
Images
Nearby Streets
| Name | Average Price | Average Sqft | Distance |
|---|---|---|---|
| Ayrshire Court | £ 0 | 0 | 0.00 KM |
| Kingfisher Road | £ 0 | 0 | 0.00 KM |
| Malthouse Road | £ 0 | 0 | 0.00 KM |
| Riverside | £ 121,250 | 0 | 0.00 KM |
| The Spires | £ 0 | 0 | 0.00 KM |
Nearby Transport
| Name | NLC | TLC | Distance |
|---|---|---|---|
| Canterbury West | 5007 | CBW | 1.97 KM |
| Canterbury East | 5164 | CBE | 2.88 KM |
| Sturry | 5029 | STU | 3.94 KM |
| Bekesbourne | 5198 | BKS | 6.85 KM |
| Chestfield And Swalecliffe | 5200 | CSW | 7.28 KM |
Nearby Listings
| Address | Price | Type | Score | Distance |
|---|---|---|---|---|
| Headcorn Drive, Canterbury | £ 450,000 | BUY | 7 / 10 | 0.00 KM |
| Brabourne Close, Canterbury | £ 240,000 | BUY | Unknown | 0.06 KM |
| Bawden Close, Canterbury | £ 140,000 | BUY | 6 / 10 | 0.09 KM |
| Hunton Gardens, Canterbury | £ 425,000 | BUY | 5 / 10 | 0.10 KM |
| Nethersole Close, Canterbury, Kent, CT2 | £ 275,000 | BUY | Unknown | 0.13 KM |
Nearby Properties
| Address | Price | Distance |
|---|---|---|
| 16 Brabourne Close | £ 270,000 | 0.05 KM |
| 1 Brabourne Close | £ 315,000 | 0.05 KM |
| 2 Brabourne Close | £ 220,000 | 0.05 KM |
| 11 Brabourne Close | £ 150,000 | 0.05 KM |
| 3 Brabourne Close | £ 202,000 | 0.05 KM |