Agbrigg Road, Wakefield, West Yorkshire, WF1
By Pure Investor
£ 200,000
Reviews
2 out of 5 stars
Pure Investor says ..
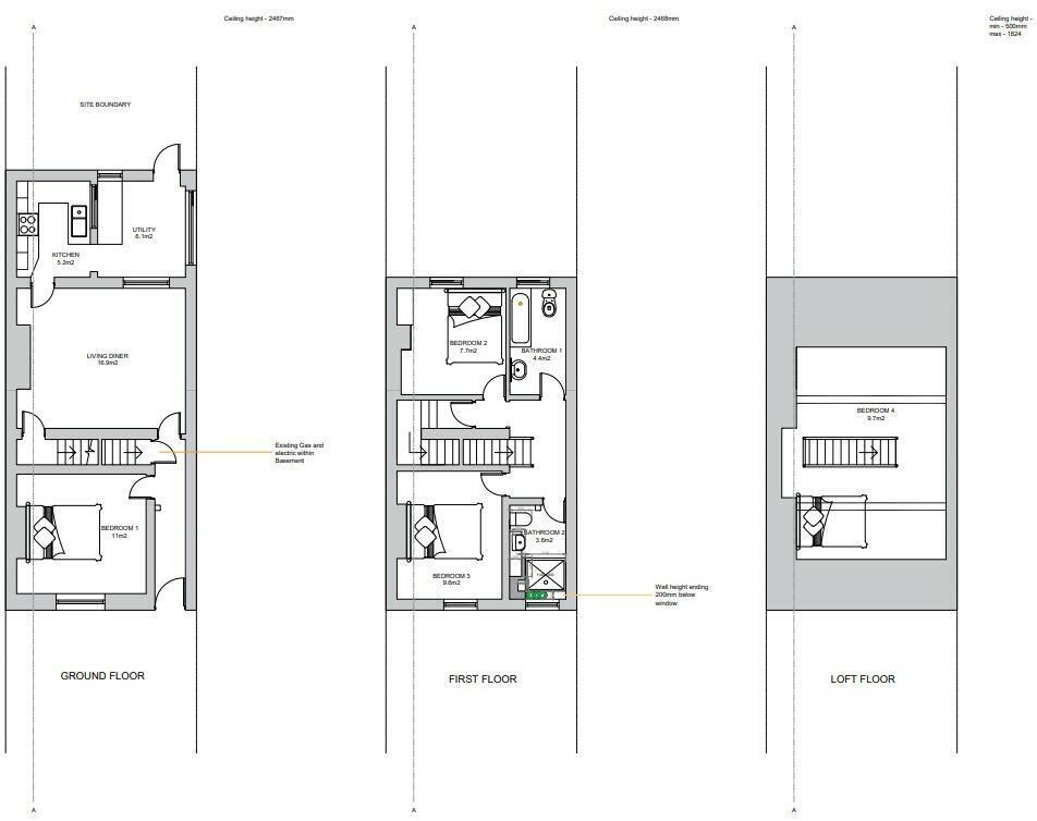
4 Bed 2 Bath HMO Property | Expected Rental Income Of £24,000 Per Annum | Gross Yield Of 12% | HMO Licence Not Required Due To The Property Being a 4 Bed
Property Oracle says ..
This property is a House of Multiple Occupation that has recently been modernised. The interior is clean and well-maintained, with a newly fitted kitchen and bathrooms. The small external area is unkempt. The location is convenient, with several well-rated schools and train stations nearby. The price may be slightly high compared to the average price per sqft in the area, but the recent modernisation work may justify this. More comparable data on similar properties is needed for a more accurate price assessment.
Therefore, we give this property 5 / 10. *Disclaimer: This is our option and does constitute a recommendation or financial advice. Do your own research. *
- Price
- 6
- Condition
- 8
- Location
- 7
- Land
- 2
- Bedrooms
- 4
- Bathrooms
- 2
- Sqft (est)
- 792.22
The heatmap indicates the level of crime in the area. The color of the heatmap indicates the crime severity and recency.
Metrics Year-on-Year
- Average area value
- 324,158.00 £Decreased by 18.47 %
- Est sale value
- 246,380.42 £Decreased by 11.65 %
- Average area rental value
- 1,159.00 £/moIncreased by 34.61 %
- Est letting value
- 792.22 £/mo
- Est rental Yield
- 4.29 %Increased by 65.00 %
- Crime Rate
- 46.00 %Unchanged by 0.00 %
Agent Activity
Pure Investor created the listing.
Nearby Schools
| Name | Type | Ofsted | Distance |
|---|---|---|---|
| Sandal Magna Community Academy | Academy Sponsor Led | Good | 0.62 KM |
| The Castle Nursery School | Local Authority Nursery School | Good | 0.84 KM |
| St Thomas � Becket Catholic Secondary School, A Voluntary Academy | Academy Converter | Good | 0.96 KM |
| The Castle Children'S Centre | Children's Centre | 1.04 KM | |
| Sandal Castle Va Community Primary School | Voluntary Aided School | Good | 1.59 KM |
Images
Nearby Streets
| Name | Average Price | Average Sqft | Distance |
|---|---|---|---|
| Birch Street | £ 0 | 0 | 0.00 KM |
| Holt Avenue | £ 290,000 | 0 | 0.00 KM |
| Harvey Street | £ 0 | 0 | 0.00 KM |
| Littlewood Ct | £ 300,000 | 0 | 0.00 KM |
| St John's View | £ 355,000 | 0 | 0.00 KM |
Nearby Transport
| Name | NLC | TLC | Distance |
|---|---|---|---|
| Sandal And Agbrigg | 8358 | SNA | 0.68 KM |
| Wakefield Kirkgate | 8584 | WKK | 1.77 KM |
| Wakefield Westgate | 8591 | WKF | 3.64 KM |
| Outwood | 8309 | OUT | 6.46 KM |
| Normanton | 8528 | NOR | 6.99 KM |
Nearby Listings
| Address | Price | Type | Score | Distance |
|---|---|---|---|---|
| Agbrigg Road, Wakefield, West Yorkshire, WF1 | £ 200,000 | BUY | 5 / 10 | 0.00 KM |
| Agbrigg Road, Agbrigg, Wakefield, WF1 | £ 142,950 | BUY | 6 / 10 | 0.00 KM |
| St. Catherine Street, Agbrigg, Wakefield, WF1 | £ 115,000 | BUY | 6 / 10 | 0.14 KM |
| Warwick Street, Agbrigg, Wakefield | £ 125,000 | BUY | 6 / 10 | 0.14 KM |
| Bowman Street, Wakefield | £ 120,000 | BUY | 6 / 10 | 0.15 KM |
Nearby Properties
| Address | Price | Distance |
|---|---|---|
| 128 Agbrigg Road | £ 37,000 | 0.00 KM |
| 148 Agbrigg Road | £ 150,000 | 0.00 KM |
| 126 Agbrigg Road | £ 55,000 | 0.00 KM |
| 146 Agbrigg Road | £ 135,000 | 0.00 KM |
| 144 Agbrigg Road | £ 115,000 | 0.00 KM |