Foden Property Ltd says ..
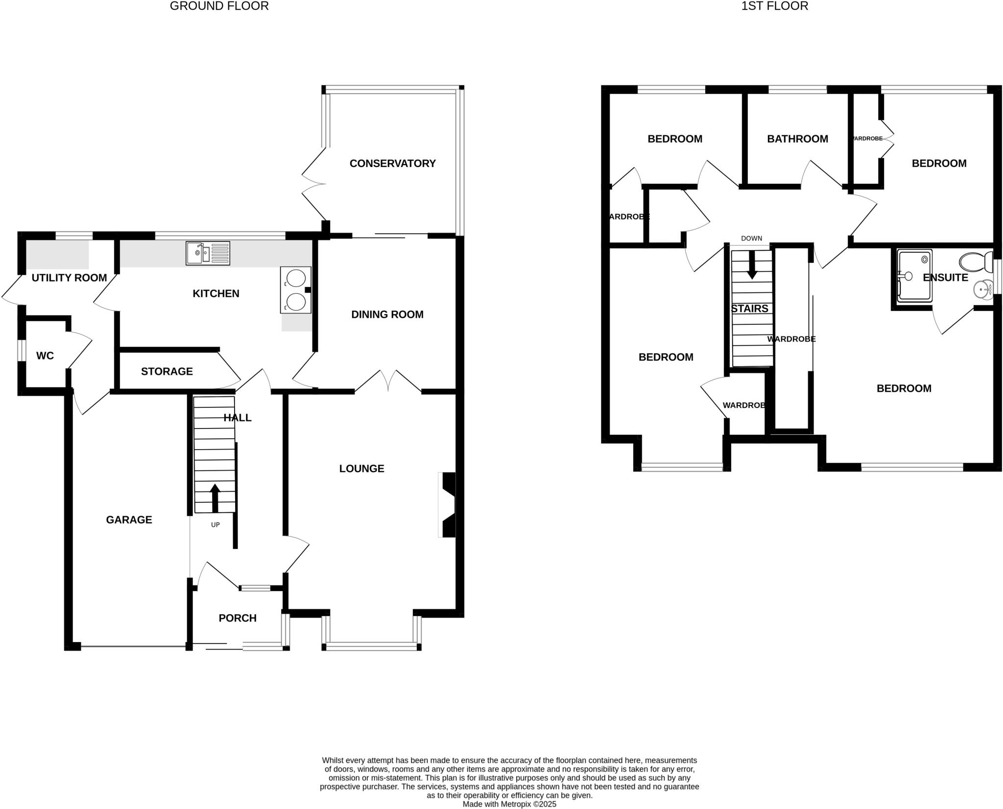
Conveniently located in MUXTON is this well maintained and cared for family home which has been owned by the Seller, since brand new in 1996. It will be offered with NO UPWARD CHAIN. In brief, the property comprises of a good sized lounge with a bay window to the front and a fireplace with a g...
Property Oracle says ..
This four-bedroom detached house located on Kingsley Drive in Muxton, Telford offers a comfortable family home. The property benefits from a convenient location, relatively close to schools with good Ofsted ratings and train stations. The interior is presented in a traditional style, which may appeal to some buyers but could benefit from modernisation. The kitchen and bathrooms, in particular, show their age and would likely require updating. The property includes a garden, although its size is not specified. The list price of £344,950 appears to be in line with the general pricing in the Muxton area, though a more detailed analysis of comparable properties with square footage data would provide a more accurate assessment of its value. While the property is habitable and well-located, potential buyers should factor in the costs of modernisation to bring the property up to current standards.
Therefore, we give this property 6 / 10. *Disclaimer: This is our option and does constitute a recommendation or financial advice. Do your own research. *
- Price
- 7
- Condition
- 6
- Location
- 7
- Land
- 4
- Bedrooms
- 4
- Bathrooms
- 2
- Sqft (est)
- 1,500.00
The heatmap indicates the level of crime in the area. The color of the heatmap indicates the crime severity and recency.
Metrics Year-on-Year
- Average area value
- 382,875.00 £Decreased by 13.12 %
- Est sale value
- 777,000.00 £Decreased by 4.43 %
- Average area rental value
- 1,824.00 £/moIncreased by 43.40 %
- Est letting value
- 3,000.00 £/moIncreased by 100.00 %
- Est rental Yield
- 5.72 %Increased by 65.32 %
- Crime Rate
- 24.00 %Unchanged by 0.00 %
Agent Activity
Foden Property Ltd created the listing.
Nearby Schools
| Name | Type | Ofsted | Distance |
|---|---|---|---|
| Donnington Wood Infant School And Nursery Centre | Community School | Requires improvement | 0.96 KM |
| Donnington Infants & Children Centre | Children's Centre | 0.96 KM | |
| St Matthew'S Church Of England Aided Primary School And Nursery Centre | Voluntary Aided School | Good | 1.37 KM |
| Donnington Wood Cofe Voluntary Controlled Junior School | Voluntary Controlled School | Good | 1.58 KM |
| Muxton Primary School | Community School | Good | 1.66 KM |
Images
Nearby Streets
| Name | Average Price | Average Sqft | Distance |
|---|---|---|---|
| Winston Drive | £ 100,000 | 0 | 0.00 KM |
| The Spinney | £ 0 | 0 | 0.00 KM |
| Richard Road | £ 0 | 0 | 0.00 KM |
| The Fields | £ 365,000 | 0 | 0.00 KM |
| Parsons Close | £ 0 | 0 | 0.00 KM |
Nearby Transport
| Name | NLC | TLC | Distance |
|---|---|---|---|
| Oakengates | 4689 | OKN | 4.10 KM |
| Telford Central | 4691 | TFC | 5.05 KM |
| Shifnal | 4619 | SFN | 9.40 KM |
| Wellington (Shropshire) | 4690 | WLN | 9.78 KM |
Nearby Listings
| Address | Price | Type | Score | Distance |
|---|---|---|---|---|
| Kingsley Drive. Muxton | £ 344,950 | BUY | 6 / 10 | 0.00 KM |
| Kingsley Drive, Muxton, Telford, Shropshire, TF2 | £ 324,450 | BUY | 7 / 10 | 0.01 KM |
| Pembridge Close, Muxton, Telford, Shropshire, TF2 | £ 340,000 | BUY | 7 / 10 | 0.06 KM |
| Pembridge Close, Muxton, Telford, TF2 | £ 320,000 | BUY | 7 / 10 | 0.08 KM |
| Chiswick Court, Muxton, Telford, Shropshire, TF2 | £ 335,000 | BUY | 7 / 10 | 0.11 KM |
Nearby Properties
| Address | Price | Distance |
|---|---|---|
| 8 Kingsley Drive | £ 99,000 | 0.00 KM |
| 4 Kingsley Drive | £ 191,000 | 0.00 KM |
| 26 Kingsley Drive | £ 208,000 | 0.00 KM |
| 6 Kingsley Drive | £ 192,950 | 0.00 KM |
| 9 Kingsley Drive | £ 197,000 | 0.00 KM |