IA
Wigan Road, Ormskirk, L39 2AP
By Ian Anthony Estates
£ 200,000
Reviews
3 out of 5 stars
Ian Anthony Estates says ..
Prime Student Investment Opportunity – Wigan Road, Ormskirk 4-Bedroom HMO | Fully Tenanted | 13%+ Yield at current asking price | Turnkey Investment This is a rare opportunity to acquire a fully compliant and income-generating 4-bedroom HMO in one of Ormskirk’s most in-de...
Property Oracle says ..
Therefore, we give this property 7 / 10. *Disclaimer: This is our option and does constitute a recommendation or financial advice. Do your own research. *
- Price
- 7
- Condition
- 6
- Location
- 8
- Land
- 7
- Bedrooms
- 4
- Bathrooms
- 1
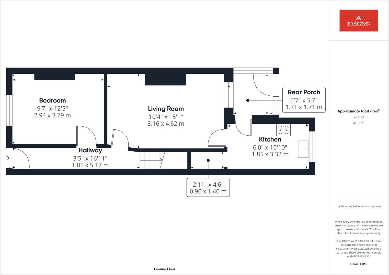
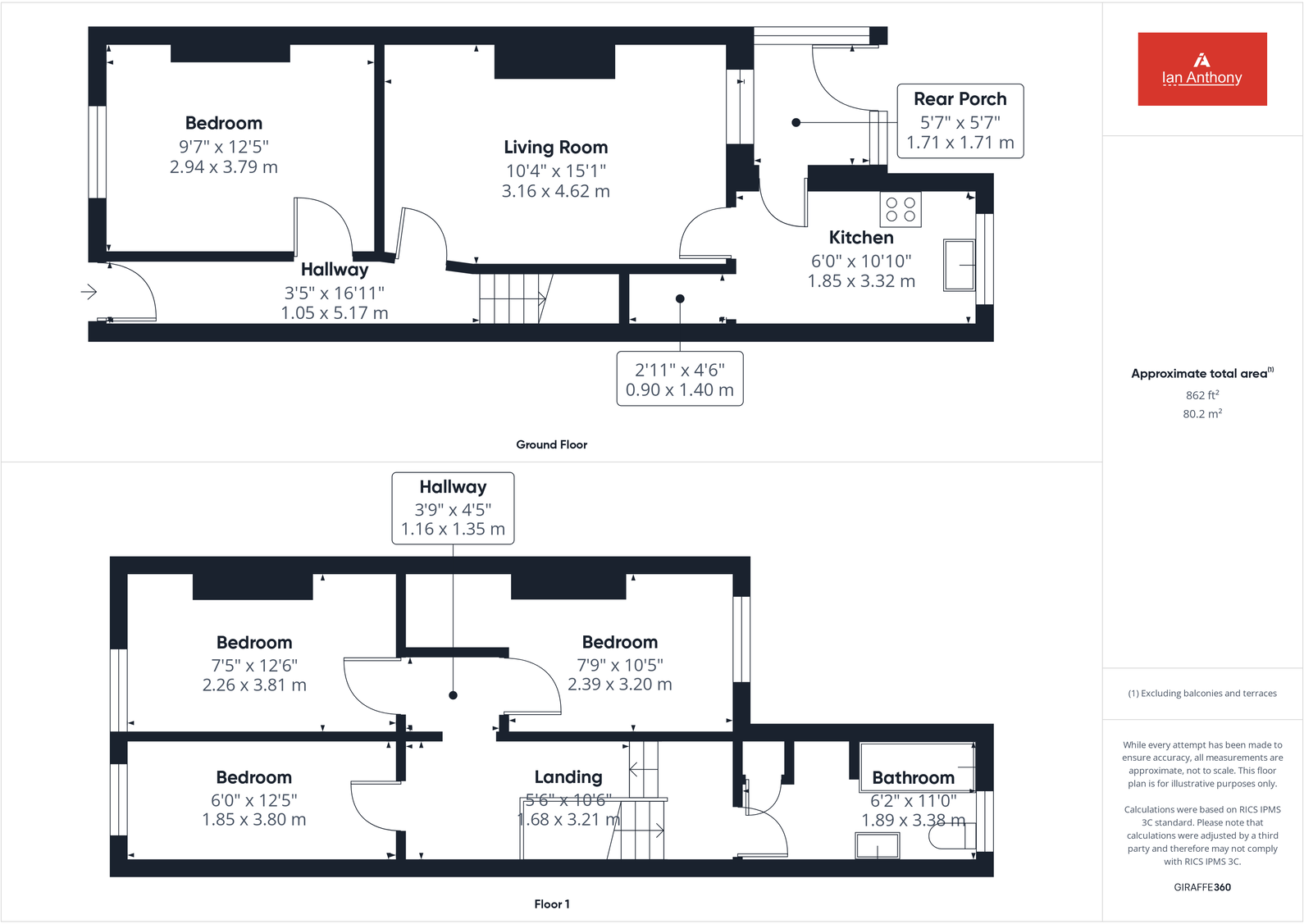
- Sqft (est)
- 429.31
The heatmap indicates the level of crime in the area. The color of the heatmap indicates the crime severity and recency.
Metrics Year-on-Year
- Average area value
- 172,617.00 £Decreased by 13.74 %
- Est sale value
- 63,967.19 £Decreased by 18.58 %
- Average area rental value
- 835.00 £/moIncreased by 18.61 %
- Est letting value
- 0.00 £/mo
- Est rental Yield
- 5.80 %Increased by 37.44 %
- Crime Rate
- 15.00 %Unchanged by 0.00 %
from 200,116.00 £
from 78,563.73 £
from 704.00 £/mo
from 0.00 £/mo
from 4.22 %
from 15.00 %
Agent Activity
Ian Anthony Estates created the listing.
Nearby Schools
| Name | Type | Ofsted | Distance |
|---|---|---|---|
| The Acorns School | Pupil Referral Unit | Good | 0.42 KM |
| Ormskirk Church Of England Primary School | Voluntary Controlled School | Good | 0.53 KM |
| Turning Point Academy | Other Independent School | Good | 0.81 KM |
| Moorgate Nursery School & Children'S Centre | Children's Centre | 0.97 KM | |
| Moorgate Nursery School | Local Authority Nursery School | Outstanding | 0.97 KM |
Images
Nearby Streets
| Name | Average Price | Average Sqft | Distance |
|---|---|---|---|
| Oak Green | £ 0 | 0 | 0.00 KM |
| Abbotsford | £ 125,000 | 0 | 0.00 KM |
| Atkinson Road | £ 0 | 0 | 0.00 KM |
| Leyland Way | £ 0 | 0 | 0.00 KM |
| Chapel Mews | £ 66,500 | 0 | 0.00 KM |
Nearby Transport
| Name | NLC | TLC | Distance |
|---|---|---|---|
| Ormskirk | 2281 | OMS | 0.39 KM |
| Aughton Park | 2215 | AUG | 2.29 KM |
| Town Green | 2283 | TWN | 3.90 KM |
| New Lane | 2358 | NLN | 5.14 KM |
| Burscough Junction | 2280 | BCJ | 5.43 KM |
Nearby Listings
| Address | Price | Type | Score | Distance |
|---|---|---|---|---|
| Wigan Road, Ormskirk, L39 2AP | £ 210,000 | BUY | 6 / 10 | 0.00 KM |
| Wigan Road, Ormskirk | £ 285,000 | BUY | 4 / 10 | 0.00 KM |
| Wigan Road, Ormskirk, L39 2AP | £ 200,000 | BUY | 7 / 10 | 0.00 KM |
| Walmsley Drive, Ormskirk | £ 375,000 | BUY | Unknown | 0.07 KM |
| Walmsley Drive, Ormskirk, Lancashire, L39 | £ 295,000 | BUY | Unknown | 0.09 KM |
Nearby Properties
| Address | Price | Distance |
|---|---|---|
| 45 Wigan Road | £ 154,000 | 0.00 KM |
| 33 Wigan Road | £ 75,000 | 0.00 KM |
| 57 Wigan Road | £ 124,000 | 0.00 KM |
| 3 Wigan Road | £ 124,995 | 0.00 KM |
| 9 Wigan Road | £ 290,000 | 0.00 KM |