Brierley Lane, Cuddy Hill
AR

Brierley Lane, Cuddy Hill

By Armitstead Barnett

£ 1,300,000

Reviews

3 out of 5 stars

Armitstead Barnett says ..

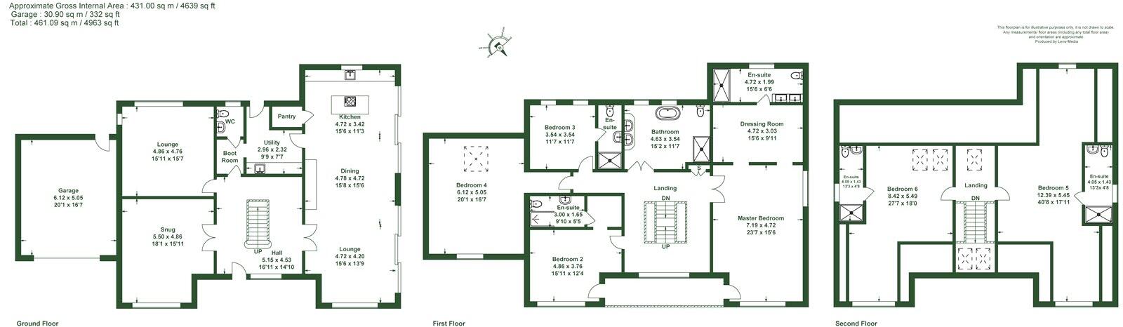
We can hear the ‘oohhs and aahhs’ from here ! This incredibly impressive contemporary home is now ready to view and offers over 4950 sq. ft or thereabouts of space to include the garage. A standout living kitchen, two further reception rooms along with a sumptuous bedroom and five f...

Property Oracle says ..

This detached property on Brierley Lane in Preston presents a modern living space with six bedrooms and six bathrooms. The house is in excellent condition, featuring contemporary design elements and high-quality finishes. The property benefits from a large garden, offering significant outdoor space. While the listing price is higher than the local average, the property’s size, condition, and features such as multiple ensuites and a utility room, contribute to its value. The location provides a rural setting with convenient access to nearby schools and transportation, making it an attractive option for families seeking a blend of countryside and urban living.

Therefore, we give this property 7 / 10. *Disclaimer: This is our option and does constitute a recommendation or financial advice. Do your own research. *

Price
6
Condition
9
Location
7
Land
8
Bedrooms
6
Bathrooms
6

The heatmap indicates the level of crime in the area. The color of the heatmap indicates the crime severity and recency.

Metrics Year-on-Year

Average area value
528,645.00 £
Increased by 35.97 %
from 388,802.00 £
Average area rental value
1,232.00 £/mo
Increased by 1.48 %
from 1,214.00 £/mo
Est rental Yield
2.80 %
Decreased by 25.33 %
from 3.75 %
Crime Rate
233.00 %
Unchanged by 0.00 %
from 233.00 %

Agent Activity

  • Armitstead Barnett created the listing.

Nearby Schools

NameTypeOfstedDistance
Myerscough CollegeFurther EducationGood2.63 KM
Catforth Primary SchoolCommunity SchoolGood2.81 KM
Woodplumpton St Anne'S Cofe Primary SchoolVoluntary Aided SchoolGood3.27 KM
St Mary And St Andrew'S Catholic Primary School, Barton NewshamVoluntary Aided SchoolGood3.62 KM
Bilsborrow John Cross Church Of England Primary SchoolVoluntary Aided SchoolGood3.81 KM

Images

Front External Kitchen Living A Gardens A Kitchen Living B Entrance Hall Lounge Snug Landing Principal Bedroom Principal Ensuite Bedroom 1 Ensuite Bedroom 2 Family Bathroom Bedroom 3 Picture No. 41 Bedroom 4 Bedroom 5 Balcony Views Aerial Image Side External

Nearby Transport

NameNLCTLCDistance
Salwick2673SLW7.41 KM

Nearby Listings

AddressPriceTypeScoreDistance
Brierley Lane, Cuddy Hill £ 1,300,000BUY7 / 100.00 KM
Eaves Lane, Woodplumpton, Preston £ 2,000,000BUY7 / 100.06 KM
Eaves Lane, Preston, PR4 £ 280,000BUY4 / 100.13 KM
Eaves Lane, Woodplumpton, Preston £ 799,995BUY7 / 100.17 KM
Cuddy Hill, Woodplumpton, Preston £ 500,000BUY6 / 100.23 KM

Nearby Properties

AddressPriceDistance
East View £ 35,0000.58 KM
Gillows Hall Barn £ 685,0001.08 KM
Gravelly Hill Farm £ 718,0001.08 KM
Holmelands £ 600,0001.08 KM
The Orchard £ 395,0001.08 KM