Hamilton Road, Sarisbury Green
Taylor Hill & Bond logo

Hamilton Road, Sarisbury Green

By Taylor Hill & Bond

£ 264,500

Reviews

3 out of 5 stars

Taylor Hill & Bond says ..

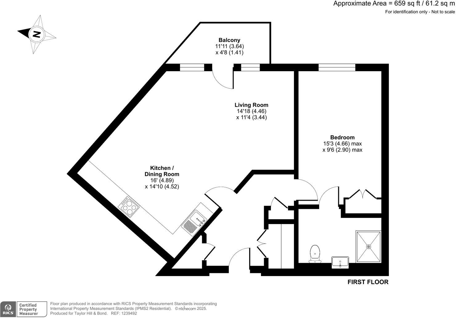
*** FIRST YEAR'S SERVICE CHARGE PAID FOR *** A stunning, spacious one bedroom apartment that benefits from access to a balcony and perfectly positioned with views over the lawned gardens towards the woodland gardens.

Property Oracle says ..

This property is a one bedroom retirement property located in Sarisbury Green, Fareham. The property benefits from a private balcony overlooking communal gardens. The apartment is modern and well maintained with an open plan living area and modern kitchen. There is also a good sized bedroom and modern bathroom. The property is within walking distance of local amenities and transport links. While the average price per sqft in the area is £270, this property is listed at a price that is significantly below average, potentially reflecting its smaller size and retirement property status. However, given its modern condition and convenient location, the price may still represent good value for money.

Therefore, we give this property 7 / 10. *Disclaimer: This is our option and does constitute a recommendation or financial advice. Do your own research. *

Price
7
Condition
9
Location
8
Land
7
Bedrooms
1
Bathrooms
1
Sqft (est)
588.00
Lot (est)
659.00

The heatmap indicates the level of crime in the area. The color of the heatmap indicates the crime severity and recency.

Metrics Year-on-Year

Average area value
318,564.00 £
Decreased by 14.91 %
from 374,400.00 £
Est sale value
271,656.00 £
Increased by 36.69 %
from 198,744.00 £
Average area rental value
5,698.00 £/mo
Increased by 371.30 %
from 1,209.00 £/mo
Est letting value
4,704.00 £/mo
Increased by 700.00 %
from 588.00 £/mo
Est rental Yield
21.46 %
Increased by 453.09 %
from 3.88 %
Crime Rate
8.00 %
Unchanged by 0.00 %
from 8.00 %

Agent Activity

  • Taylor Hill & Bond created the listing.

Nearby Schools

NameTypeOfstedDistance
Lws AcademyAcademy Special ConverterRequires improvement0.43 KM
Park Gate Primary SchoolCommunity SchoolGood1.00 KM
Brookfield Community SchoolCommunity SchoolGood1.00 KM
Sarisbury Church Of England Junior SchoolVoluntary Controlled SchoolOutstanding1.09 KM
Sovereign And Strawberry Meadow Children'S CentreChildren's Centre1.13 KM

Images

1239492 (10).jpg 1239492 (6).jpg 1239492 (19).jpg 1239492 (3).jpg 1239492 (14).jpg 1239492 (5).jpg 1239492 (15).jpg 1239492 (7).jpg 1239492 (9).jpg 1239492 (8).jpg 01280_Meadow Court_External_006.jpg 01280_Meadow Court_Internal_052.jpg 01280_Meadow Court_Internal_056.jpg 913108 (17).jpg 1239492 (11).jpg 01280_Meadow Court_Internal_051.jpg balcony view 1.jpg balcony view 6.jpg balcony view 5.jpg

Nearby Streets

NameAverage PriceAverage SqftDistance
Centre Way £ 000.00 KM
Beacon Gardens £ 000.00 KM
Lavender Grove £ 000.00 KM
M27 £ 000.00 KM
Cold East Close £ 350,00000.00 KM

Nearby Transport

NameNLCTLCDistance
Swanwick5920SNW1.29 KM
Bursledon5927BUO3.59 KM
Botley5894BOE5.52 KM
Hamble5947HME5.90 KM
Hedge End5893HDE7.28 KM

Nearby Listings

AddressPriceTypeScoreDistance
Hamilton Road, Sarisbury Green £ 264,500BUY7 / 100.00 KM
50 Meadow Court, Sarisbury Green £ 367,500BUY6 / 100.01 KM
Hamilton Road, Sarisbury Green, Southampton £ 335,000BUY8 / 100.02 KM
Meadow Court, Hamilton Road, Sarisbury Green, Southampton £ 269,995BUY6 / 100.02 KM
Hamilton Road, Sarisbury Green, Southampton, SO31 £ 400,000BUY7 / 100.03 KM

Nearby Properties

AddressPriceDistance
17 Jellicoe Drive £ 385,0000.26 KM
23 Jellicoe Drive £ 370,0000.26 KM
42 Jellicoe Drive £ 280,0000.26 KM
36 Jellicoe Drive £ 280,0000.26 KM
48 Jellicoe Drive £ 350,0000.26 KM