Iconic says ..
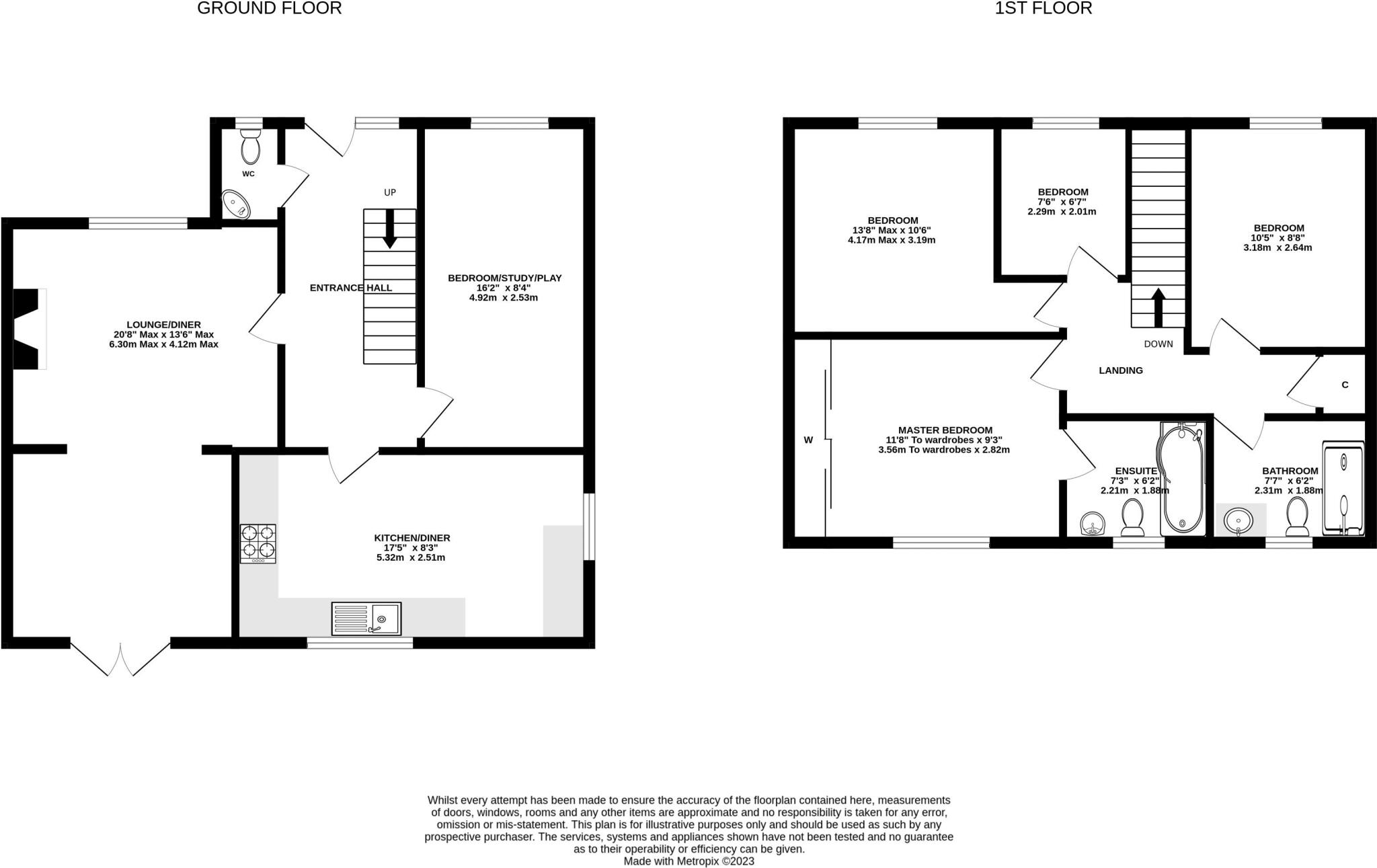
***DETACHED FAMILY HOME*** Iconic estate agents are pleased to offer for sale this well presented and deceptively spacious four bedroom detached family home in this requested and rarely available Drayton location. The detached family home is offered with NO ONWARD CHAIN and boasts accommodation w...
Property Oracle says ..
This property is a 4-bedroom, 2-bathroom detached house located in Drayton, Norwich. The property benefits from a good location with nearby schools such as Drayton Cofe Junior School (rated good by Ofsted) and Hellesdon High School (also rated good). Norwich city centre is approximately 9.47km away. The house itself appears to be in good condition, having undergone some modernisation while retaining some traditional character. The kitchen and bathrooms are modern and well-maintained. The property includes a garden and what appears to be additional land beyond the garden. Comparing the list price of £425,000 to the average price of £428,000 and average price per sqft of £317 in the area, the list price seems reasonable, especially considering the apparent good condition and additional land.
Therefore, we give this property 7 / 10. *Disclaimer: This is our option and does constitute a recommendation or financial advice. Do your own research. *
- Price
- 7
- Condition
- 8
- Location
- 7
- Land
- 7
- Bedrooms
- 4
- Bathrooms
- 2
- Sqft (est)
- 1,425.12
The heatmap indicates the level of crime in the area. The color of the heatmap indicates the crime severity and recency.
Metrics Year-on-Year
- Average area value
- 424,833.00 £Decreased by 2.66 %
- Est sale value
- 561,497.28 £Increased by 16.22 %
- Average area rental value
- 1,200.00 £/moDecreased by 42.86 %
- Est letting value
- 1,425.12 £/moUnchanged by 0.00 %
- Est rental Yield
- 3.39 %Decreased by 41.25 %
- Crime Rate
- 9.00 %Unchanged by 0.00 %
Agent Activity
Iconic marked this listing as sold.
Iconic created the listing.
Nearby Schools
| Name | Type | Ofsted | Distance |
|---|---|---|---|
| Drayton Cofe Junior School | Voluntary Controlled School | Good | 1.48 KM |
| Drayton Community Infant School | Academy Sponsor Led | 2.00 KM | |
| Drayton And Taverham Sure Start Children'S Centre | Children's Centre | 2.08 KM | |
| Arden Grove Infant And Nursery School | Academy Converter | Outstanding | 2.57 KM |
| Hellesdon High School | Academy Converter | Good | 2.79 KM |
Images
Nearby Streets
| Name | Average Price | Average Sqft | Distance |
|---|---|---|---|
| The Lodge Drive | £ 748,125 | 0 | 0.00 KM |
| Carter Road | £ 410,450 | 0 | 0.00 KM |
| Sidney Bunn Way | £ 462,500 | 0 | 0.00 KM |
| John Booty Close | £ 0 | 0 | 0.00 KM |
| George Close | £ 356,429 | 0 | 0.00 KM |
Nearby Transport
| Name | NLC | TLC | Distance |
|---|---|---|---|
| Norwich | 7309 | NRW | 9.47 KM |
Nearby Listings
| Address | Price | Type | Score | Distance |
|---|---|---|---|---|
| Drayton Lodge Park, Drayton, Norwich | £ 425,000 | BUY | 7 / 10 | 0.00 KM |
| Drayton Lodge Park, Drayton, NR8 | £ 525,000 | BUY | 7 / 10 | 0.03 KM |
| Drayton | £ 525,000 | BUY | 7 / 10 | 0.03 KM |
| The Lodge Drive, Drayton, Norwich, Norfolk, NR8 | £ 900,000 | BUY | Unknown | 0.09 KM |
| Drayton High Road, Drayton, Norwich, Norfolk | £ 650,000 | BUY | 7 / 10 | 0.10 KM |
Nearby Properties
| Address | Price | Distance |
|---|---|---|
| 15 Drayton Lodge Park | £ 312,500 | 0.01 KM |
| 3 Drayton Lodge Park | £ 330,000 | 0.01 KM |
| 5 Drayton Lodge Park | £ 500,000 | 0.01 KM |
| 7 Drayton Lodge Park | £ 335,000 | 0.01 KM |
| 17 Drayton Lodge Park | £ 450,000 | 0.01 KM |