Gascoigne Halman says ..
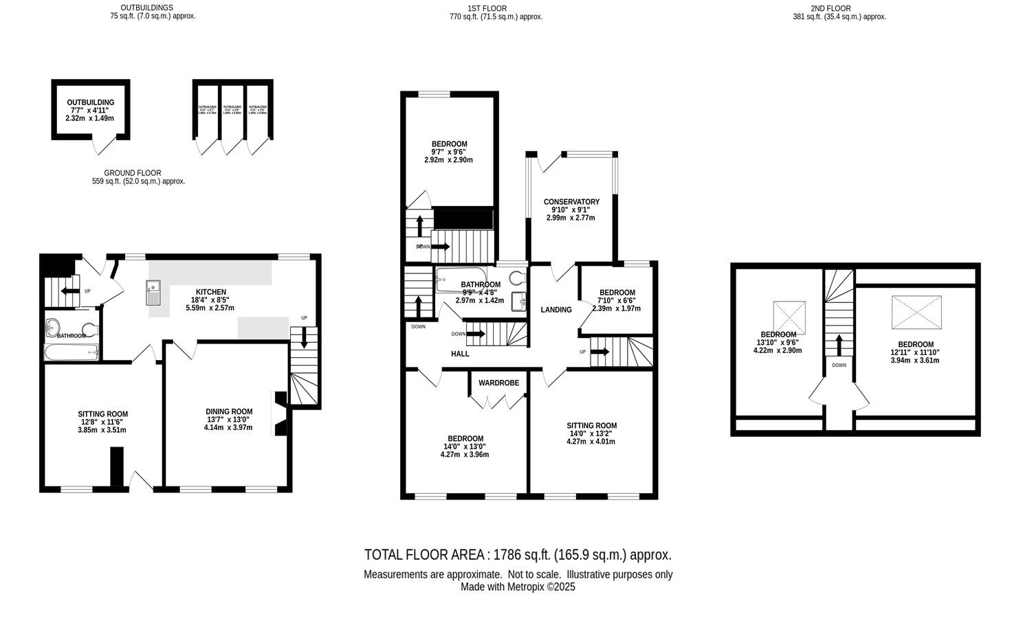
A CHARMING DOUBLE FRONTED CHARACTER COTTAGE which has SPACIOUS intriguing accommodation with flexible living. The Cottage has THREE reception rooms plus a CONSERVATORY and FIVE bedrooms. Externally the property has FOUR stone outbuildings, GARDEN to the rear and an additional piece of land/garden...
Property Oracle says ..
This property is a 5 bedroom, 2 bathroom terraced house located in Whaley Bridge, Derbyshire. The property benefits from being close to local amenities and transport links. The asking price is above the average for the area, however, this is likely due to the size of the property and the number of bedrooms. The property is in need of some modernisation but is generally in good condition. There is a garden to the rear of the property.
Therefore, we give this property 6 / 10. *Disclaimer: This is our option and does constitute a recommendation or financial advice. Do your own research. *
- Price
- 6
- Condition
- 7
- Location
- 8
- Land
- 6
- Bedrooms
- 5
- Bathrooms
- 2
- Sqft (est)
- 1,295.00
- Lot (est)
- 1,786.00
The heatmap indicates the level of crime in the area. The color of the heatmap indicates the crime severity and recency.
Metrics Year-on-Year
- Average area value
- 334,167.00 £Increased by 24.23 %
- Est sale value
- 332,815.00 £Decreased by 19.44 %
- Average area rental value
- 1,252.00 £/moIncreased by 4.33 %
- Est letting value
- 0.00 £/moDecreased by 100.00 %
- Est rental Yield
- 4.50 %Decreased by 15.89 %
- Crime Rate
- 12.00 %Unchanged by 0.00 %
Agent Activity
Gascoigne Halman created the listing.
Nearby Schools
| Name | Type | Ofsted | Distance |
|---|---|---|---|
| Whaley Bridge Primary School | Community School | Requires improvement | 0.38 KM |
| Taxal And Fernilee Cofe Primary School | Voluntary Controlled School | Good | 0.82 KM |
| Buxworth Primary School | Community School | Good | 2.13 KM |
| Furness Vale Primary And Nursery School | Community School | Good | 2.67 KM |
| Kettleshulme St James Cofe (Va) Primary School | Voluntary Aided School | Good | 4.31 KM |
Images
Nearby Streets
| Name | Average Price | Average Sqft | Distance |
|---|---|---|---|
| Dale View | £ 602,500 | 0 | 0.00 KM |
| The Paddock | £ 235,000 | 0 | 0.00 KM |
| Manor Road | £ 0 | 0 | 0.00 KM |
| Vaughan Road | £ 0 | 0 | 0.00 KM |
| Foundry Lane | £ 0 | 0 | 0.00 KM |
Nearby Transport
| Name | NLC | TLC | Distance |
|---|---|---|---|
| Whaley Bridge | 2772 | WBR | 0.64 KM |
| Furness Vale | 2952 | FNV | 2.73 KM |
| Chinley | 2823 | CLY | 4.54 KM |
| New Mills Newtown | 2769 | NMN | 4.83 KM |
| New Mills Central | 2974 | NMC | 5.13 KM |
Nearby Listings
| Address | Price | Type | Score | Distance |
|---|---|---|---|---|
| Old Road, Whaley Bridge | £ 445,000 | BUY | 6 / 10 | 0.00 KM |
| Old Road, Whaley Bridge, High Peak | £ 335,000 | BUY | 7 / 10 | 0.00 KM |
| Buxton Road, Whaley Bridge, High Peak | £ 235,000 | BUY | 6 / 10 | 0.14 KM |
| Old Road, Whaley Bridge, High Peak | £ 250,000 | BUY | 6 / 10 | 0.16 KM |
| Old Road, Whaley Bridge, High Peak, Derbyshire, SK23 | £ 525,000 | BUY | Unknown | 0.17 KM |
Nearby Properties
| Address | Price | Distance |
|---|---|---|
| 12 New Horwich Road | £ 178,000 | 0.13 KM |
| 18 New Horwich Road | £ 220,000 | 0.13 KM |
| 10 New Horwich Road | £ 130,000 | 0.13 KM |
| 23 New Horwich Road | £ 80,000 | 0.13 KM |
| 20 New Horwich Road | £ 151,850 | 0.13 KM |