Bute Crescent, Shotts, Lanarkshire, ML7
By Shilladys Estate and Letting Agents
£ 119,995
Reviews
2 out of 5 stars
Shilladys Estate and Letting Agents says ..
Shilladys Estate Agents are delighted to bring this well presented Two-Bedroom End Terrace Property located within the popular area of Dykehead, Shotts to the market.
Property Oracle says ..
This two-bedroom mid-terrace house in Shotts, Lanarkshire, is listed at £119,995. The property’s interior is presented well in the provided photographs, showing a modern, recently decorated aesthetic. The kitchen and bathroom appear updated and clean. The living areas are spacious and bright. The property benefits from a garden which includes a playhouse and patio area, although the images also show some areas requiring tidying. The location offers convenient access to Shotts train station, providing a commute option to Glasgow. However, further information about local amenities, schools, and the overall neighborhood is needed for a complete assessment. The price seems reasonable when considering other properties in the area, although a lack of precise square footage data for comparable properties makes a definitive statement difficult. Overall, this property represents a potentially sound investment, particularly for buyers seeking a move-in ready home with a garden in a reasonably convenient location. Potential buyers should conduct thorough due diligence regarding local amenities and schools before making an offer.
Therefore, we give this property 5 / 10. *Disclaimer: This is our option and does constitute a recommendation or financial advice. Do your own research. *
- Price
- 7
- Condition
- 7
- Location
- 5
- Land
- 4
- Bedrooms
- 2
- Bathrooms
- 1
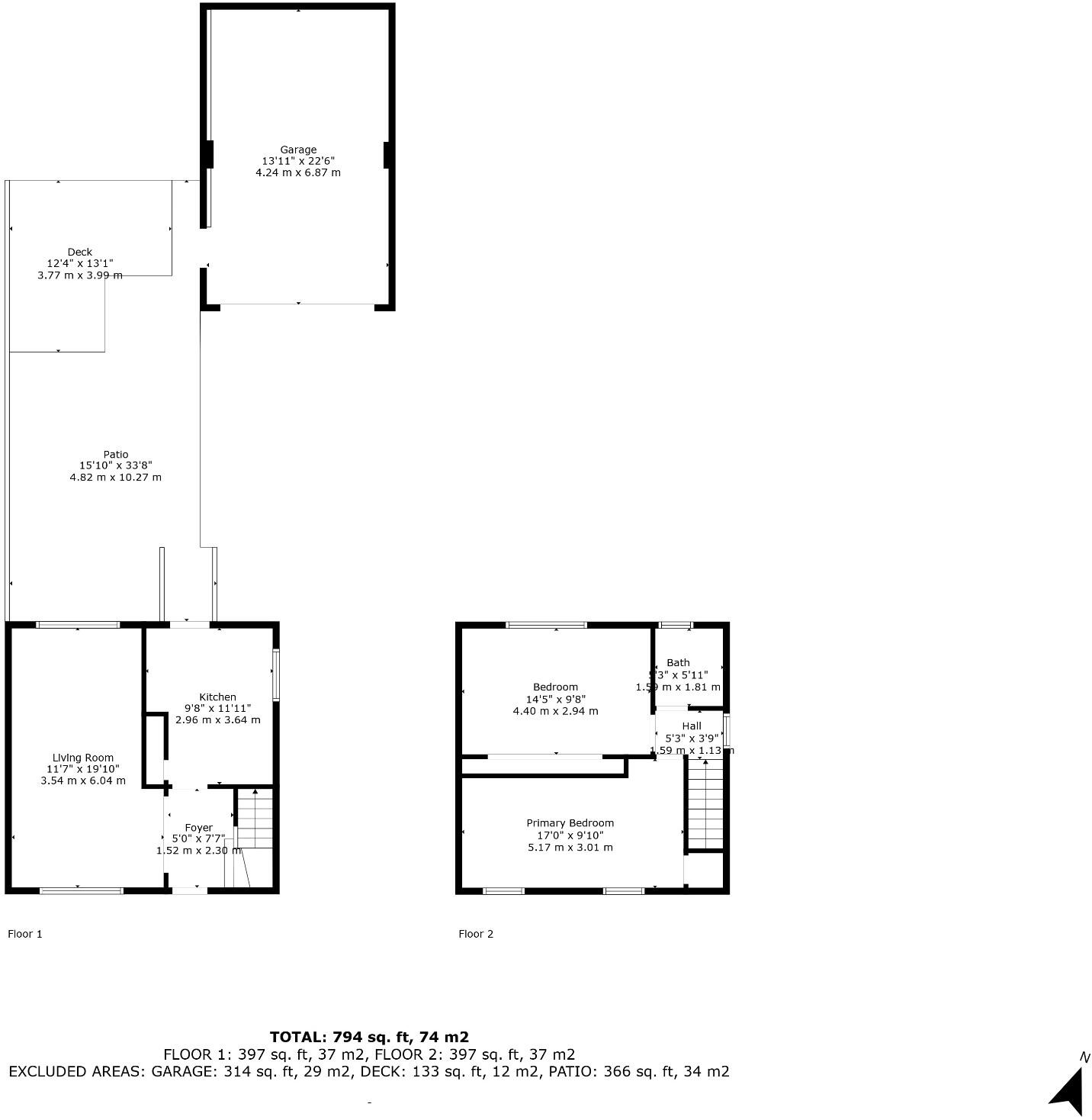
- Sqft (est)
- 794.00
The heatmap indicates the level of crime in the area. The color of the heatmap indicates the crime severity and recency.
Metrics Year-on-Year
- Average area value
- 925,000.00 £Increased by 139.51 %
- Est sale value
- 347,772.00 £Increased by 50.52 %
- Average area rental value
- 825.00 £/moDecreased by 10.71 %
- Est letting value
- 0.00 £/mo
- Est rental Yield
- 1.07 %Decreased by 62.72 %
- Crime Rate
- 0.00 %
Agent Activity
Shilladys Estate and Letting Agents created the listing.
Images
Nearby Streets
| Name | Average Price | Average Sqft | Distance |
|---|---|---|---|
| Minard Road | £ 0 | 0 | 0.00 KM |
| Cluanie Avenue | £ 0 | 0 | 0.00 KM |
| Jamieson Gardens | £ 217,500 | 0 | 0.00 KM |
| Innellan Crescent | £ 0 | 0 | 0.00 KM |
| Rannoch Place | £ 0 | 0 | 0.00 KM |
Nearby Transport
| Name | NLC | TLC | Distance |
|---|---|---|---|
| Shotts | 9739 | SHS | 1.29 KM |
| Hartwood | 9246 | HTW | 4.21 KM |
| Blackridge | 991 | BKR | 8.66 KM |
| Fauldhouse | 9245 | FLD | 9.51 KM |
Nearby Listings
| Address | Price | Type | Score | Distance |
|---|---|---|---|---|
| Bute Crescent, Shotts, Lanarkshire, ML7 | £ 119,995 | BUY | 5 / 10 | 0.00 KM |
| Bute Crescent, Shotts, ML7 | £ 178,000 | BUY | Unknown | 0.12 KM |
| Balloch Road, Shotts, ML7 | £ 135,000 | BUY | 7 / 10 | 0.19 KM |
| Dyfrig Street, Shotts | £ 155,000 | BUY | 6 / 10 | 0.48 KM |
| Burnside Crescent, Shotts, ML7 4JQ | £ 129,000 | BUY | Unknown | 0.52 KM |