Bradleys says ..
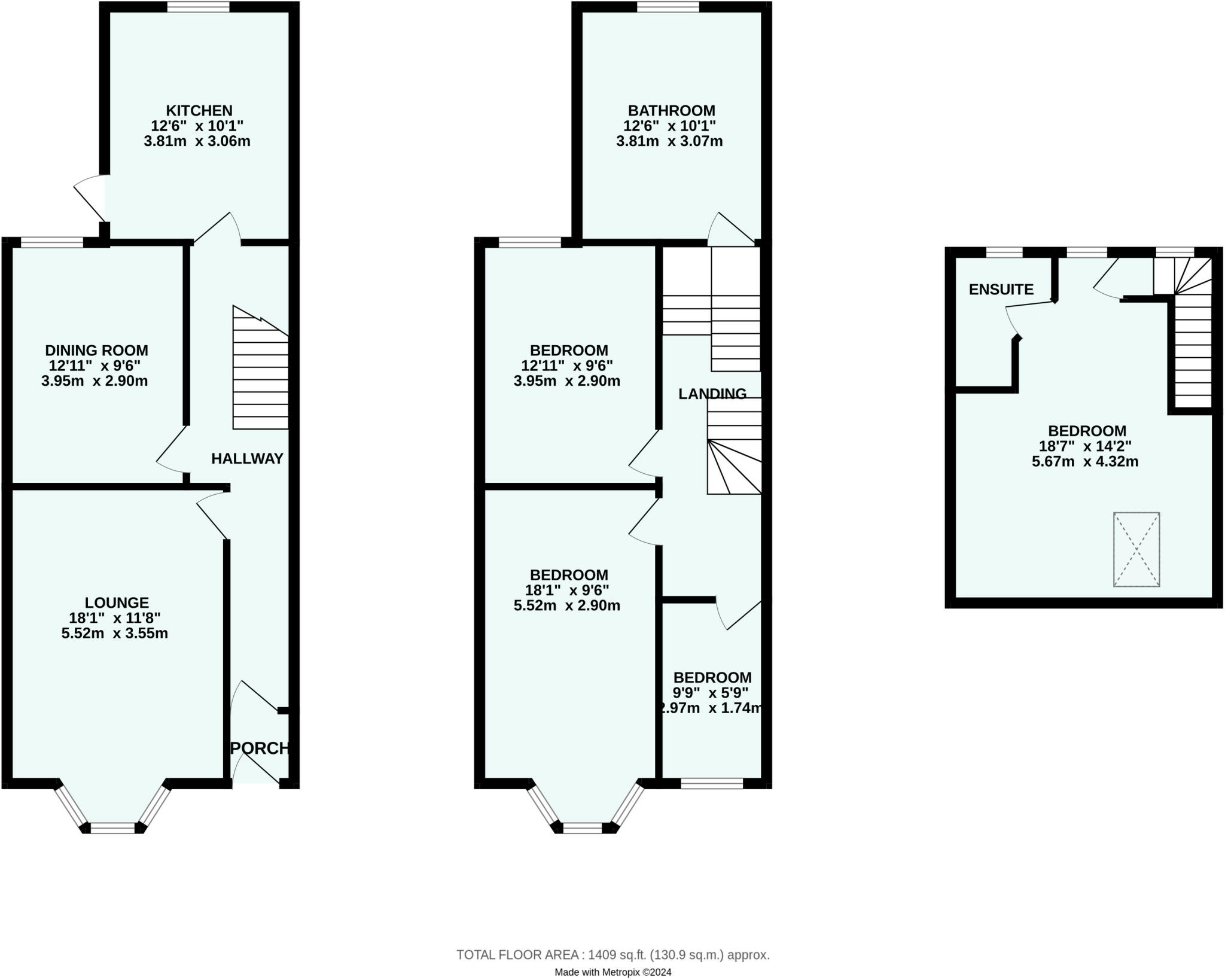
SPACIOUS FAMILY HOME IN SOUGHT AFTER LOCATION!! Introducing a spacious 4-bedroom terraced house located in the heart of Mutley Plain. Beautiful period features add character and elegance throughout, blending timeless charm with modern comfort. This home offers spacious family bathroom, ...
Property Oracle says ..
Therefore, we give this property 7 / 10. *Disclaimer: This is our option and does constitute a recommendation or financial advice. Do your own research. *
- Price
- 8
- Condition
- 8
- Location
- 7
- Land
- 6
- Bedrooms
- 4
- Bathrooms
- 2
- Sqft (est)
- 1,200.65
The heatmap indicates the level of crime in the area. The color of the heatmap indicates the crime severity and recency.
Metrics Year-on-Year
- Average area value
- 332,250.00 £Increased by 4.68 %
- Est sale value
- 396,214.50 £Increased by 22.22 %
- Average area rental value
- 769.00 £/moIncreased by 6.81 %
- Est letting value
- 0.00 £/mo
- Est rental Yield
- 2.78 %Increased by 2.21 %
- Crime Rate
- 4.00 %Unchanged by 0.00 %
from 317,391.00 £
from 324,175.50 £
from 720.00 £/mo
from 0.00 £/mo
from 2.72 %
from 4.00 %
Agent Activity
Bradleys created the listing.
Nearby Schools
| Name | Type | Ofsted | Distance |
|---|---|---|---|
| Lipson Co-Operative Academy | Academy Converter | Requires improvement | 1.00 KM |
| Lipson Vale Primary School | Community School | Good | 1.00 KM |
| Salisbury Road Primary School | Academy Converter | Requires improvement | 1.01 KM |
| Plymouth High School For Girls | Academy Converter | 1.05 KM | |
| Hyde Park Infants' School | Academy Converter | 1.08 KM |
Images
Nearby Streets
| Name | Average Price | Average Sqft | Distance |
|---|---|---|---|
| Ivydale Road Lane East | £ 0 | 0 | 0.00 KM |
| Penrose Villas | £ 0 | 0 | 0.00 KM |
| Ivydale Road Lane West | £ 0 | 0 | 0.00 KM |
| Ashford Road Lane North | £ 0 | 0 | 0.00 KM |
| Ashford Hill | £ 0 | 0 | 0.00 KM |
Nearby Transport
| Name | NLC | TLC | Distance |
|---|---|---|---|
| Plymouth | 3580 | PLY | 1.83 KM |
| Devonport | 3579 | DPT | 4.78 KM |
| Dockyard (Devonport) | 3588 | DOC | 5.33 KM |
| Keyham | 3571 | KEY | 5.78 KM |
| St Budeaux Ferry Road | 3590 | SBF | 6.83 KM |
Nearby Listings
| Address | Price | Type | Score | Distance |
|---|---|---|---|---|
| Turret Grove, Plymouth, Devon | £ 280,000 | BUY | 7 / 10 | 0.00 KM |
| Turret Grove, Mutley, Plymouth | £ 230,000 | BUY | 6 / 10 | 0.00 KM |
| Turret Grove, Plymouth | £ 250,000 | BUY | 6 / 10 | 0.01 KM |
| Ivydale Road, Plymouth | £ 280,000 | BUY | 6 / 10 | 0.07 KM |
| Elm Road, Mannamead, Plymouth, Devon, PL4 | £ 220,000 | BUY | Unknown | 0.09 KM |
Nearby Properties
| Address | Price | Distance |
|---|---|---|
| 32 Turret Grove | £ 136,000 | 0.01 KM |
| 22 Turret Grove | £ 160,000 | 0.01 KM |
| 19 Turret Grove | £ 132,500 | 0.01 KM |
| 18 Turret Grove | £ 206,000 | 0.01 KM |
| 28 Turret Grove | £ 139,450 | 0.01 KM |