Longcroft Street, Golcar, HD7
By Home & Manor
£ 200,000
Reviews
3 out of 5 stars
Home & Manor says ..
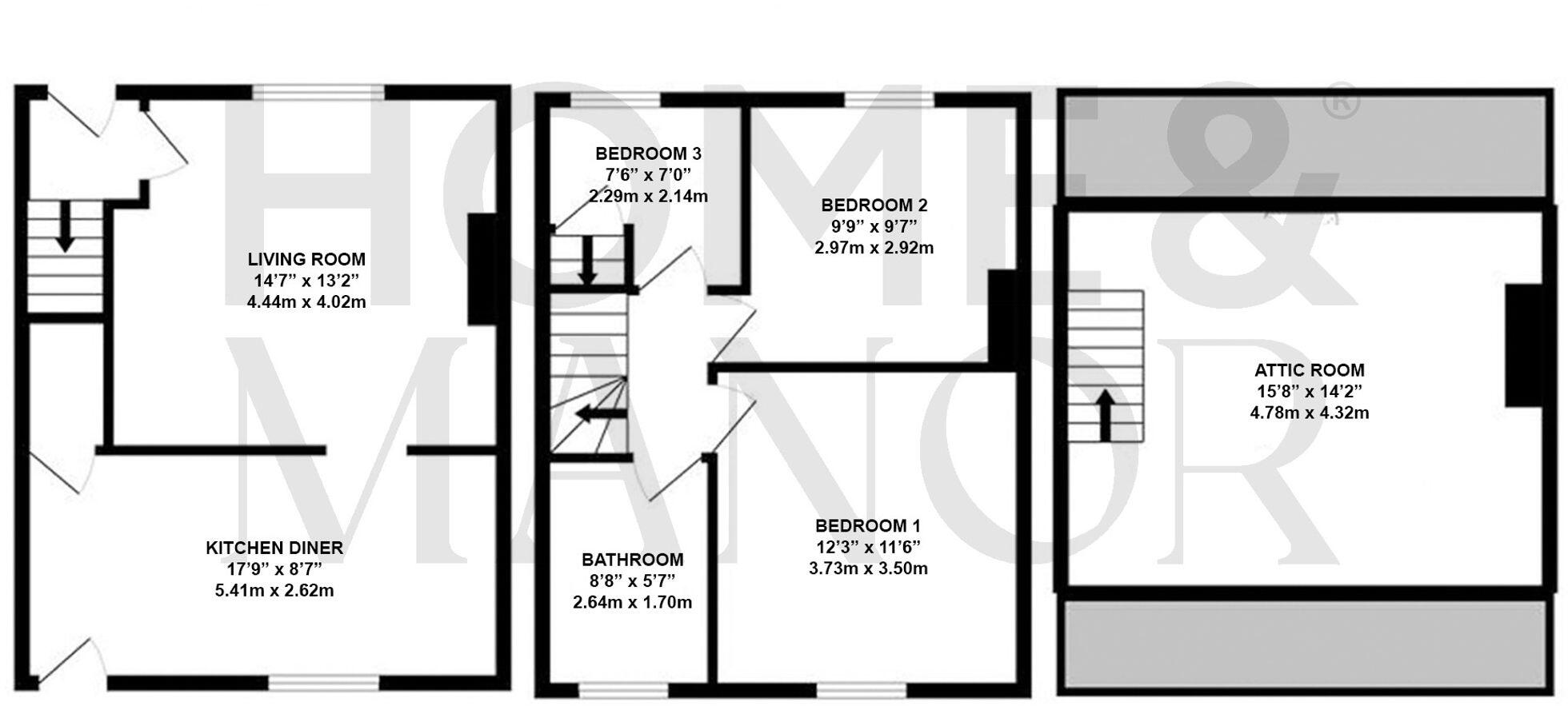
An attractively presented and tastefully appointed mature stone-built end-terrace home, boasting a driveway, a large detached single garage, and appealing gardens.
Property Oracle says ..
This is a three-bedroom terraced property located in the village of Golcar. The property benefits from a modern kitchen and bathroom, and a garden. The property is located close to local amenities and schools. The property is listed at £200,000, which is below the average price for the area. Overall, this property represents a good opportunity for buyers looking for a well-maintained home in a desirable location.
Therefore, we give this property 6 / 10. *Disclaimer: This is our option and does constitute a recommendation or financial advice. Do your own research. *
- Price
- 7
- Condition
- 7
- Location
- 7
- Land
- 6
- Bedrooms
- 3
- Bathrooms
- 1
- Sqft (est)
- 902.75
The heatmap indicates the level of crime in the area. The color of the heatmap indicates the crime severity and recency.
Metrics Year-on-Year
- Average area value
- 217,722.00 £Decreased by 2.66 %
- Est sale value
- 223,882.00 £Increased by 6.90 %
- Average area rental value
- 802.00 £/moIncreased by 8.82 %
- Est letting value
- 0.00 £/mo
- Est rental Yield
- 4.42 %Increased by 11.90 %
- Crime Rate
- 6.00 %Unchanged by 0.00 %
Agent Activity
Home & Manor created the listing.
Nearby Schools
| Name | Type | Ofsted | Distance |
|---|---|---|---|
| Golcar Junior Infant And Nursery School | Foundation School | Good | 0.71 KM |
| St John'S Church Of England Voluntary Aided Junior And Infant School | Voluntary Aided School | Good | 0.78 KM |
| Golcar, Cowlersley And Milnsbridge Children'S Centre | Children's Centre | 0.92 KM | |
| Wellhouse Junior And Infant School | Community School | Good | 1.03 KM |
| Linthwaite Ardron Cofe (Voluntary Aided) Junior And Infant School | Voluntary Aided School | Requires improvement | 1.25 KM |
Images
Nearby Streets
| Name | Average Price | Average Sqft | Distance |
|---|---|---|---|
| Myrtle Road | £ 0 | 0 | 0.00 KM |
| Kaye Lane | £ 0 | 0 | 0.00 KM |
| Chapel Lane | £ 0 | 0 | 0.00 KM |
| Birch Grove | £ 0 | 0 | 0.00 KM |
| Laburnum Grove | £ 0 | 0 | 0.00 KM |
Nearby Transport
| Name | NLC | TLC | Distance |
|---|---|---|---|
| Slaithwaite | 8450 | SWT | 3.95 KM |
| Lockwood | 8443 | LCK | 5.24 KM |
| Berry Brow | 8431 | BBW | 6.28 KM |
| Huddersfield | 8437 | HUD | 7.14 KM |
| Honley | 8436 | HOY | 8.06 KM |
Nearby Listings
| Address | Price | Type | Score | Distance |
|---|---|---|---|---|
| Longcroft Street, Golcar, HD7 | £ 230,000 | BUY | 6 / 10 | 0.00 KM |
| Longcroft Street, Golcar, HD7 | £ 200,000 | BUY | 6 / 10 | 0.00 KM |
| Longcroft Street, Golcar, Huddersfield, HD7 | £ 190,000 | BUY | 6 / 10 | 0.09 KM |
| SCARHOUSE LANE, HUDDERSFIELD, HD7 | £ 280,000 | BUY | 7 / 10 | 0.13 KM |
| Scarhouse Lane, Golcar, Huddersfield, West Yorkshire, HD7 | £ 375,000 | BUY | 6 / 10 | 0.13 KM |
Nearby Properties
| Address | Price | Distance |
|---|---|---|
| 2 Longcroft Yard | £ 115,000 | 0.07 KM |
| 1 Longcroft Yard | £ 170,000 | 0.07 KM |
| 7 Longcroft Street | £ 107,500 | 0.09 KM |
| 25 Longcroft Street | £ 170,000 | 0.09 KM |
| 49 Longcroft Street | £ 147,000 | 0.09 KM |