Poppyfields Way, Brackley, NN13
By Boughtons Family Run Estate Agents
£ 350,000
Reviews
4 out of 5 stars
Boughtons Family Run Estate Agents says ..
Impeccable 3-bed terraced house on modern estate with turn-key condition. Spacious driveway for 3 cars, garage, contemporary design, en-suite main bedroom, landscaped garden. Ideal family home.
Property Oracle says ..
This three-bedroom terraced house is located in Brackley, Northamptonshire, and is listed at £350,000. The property appears to be in excellent condition, with modern fixtures and fittings throughout. The images show a well-maintained interior and exterior, including a private garden. The location is convenient, with a primary school within close proximity (0.20 KM). While the exact square footage is not provided, the list price is in line with the average price for similar properties in the area. Considering the property’s condition, location, and apparent plot size, the list price appears reasonable.
Therefore, we give this property 8 / 10. *Disclaimer: This is our option and does constitute a recommendation or financial advice. Do your own research. *
- Price
- 8
- Condition
- 9
- Location
- 8
- Land
- 7
- Bedrooms
- 3
- Bathrooms
- 2
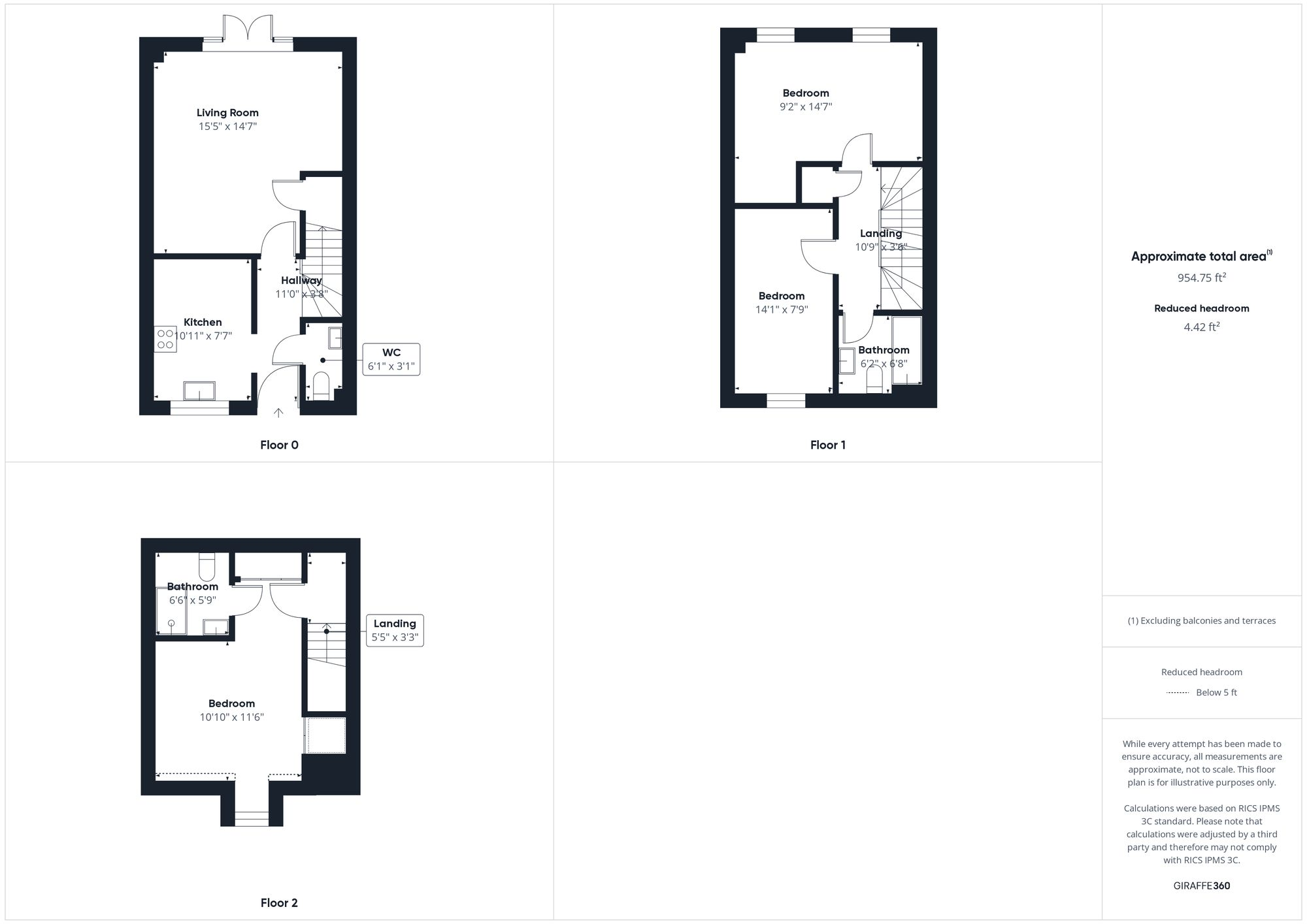
- Sqft (est)
- 954.75
The heatmap indicates the level of crime in the area. The color of the heatmap indicates the crime severity and recency.
Metrics Year-on-Year
- Average area value
- 276,028.00 £Decreased by 20.38 %
- Est sale value
- 340,845.75 £Increased by 5.62 %
- Average area rental value
- 1,316.00 £/moIncreased by 4.69 %
- Est letting value
- 954.75 £/moUnchanged by 0.00 %
- Est rental Yield
- 5.72 %Increased by 31.49 %
- Crime Rate
- 19.00 %Unchanged by 0.00 %
Agent Activity
Boughtons Family Run Estate Agents created the listing.
Nearby Schools
| Name | Type | Ofsted | Distance |
|---|---|---|---|
| The Radstone Primary School | Free Schools | 0.20 KM | |
| Bracken Leas Primary School | Academy Sponsor Led | Good | 0.82 KM |
| Brackley Church Of England Junior School | Voluntary Controlled School | Good | 1.26 KM |
| Winchester House School | Other Independent School | 1.45 KM | |
| Waynflete Infants' School | Academy Converter | 1.48 KM |
Images
Nearby Streets
| Name | Average Price | Average Sqft | Distance |
|---|---|---|---|
| Gold Avenue | £ 315,000 | 0 | 0.00 KM |
| Phoenix Way | £ 0 | 0 | 0.00 KM |
| Rosalind Way | £ 0 | 0 | 0.00 KM |
| Perseus Close | £ 0 | 0 | 0.00 KM |
| Ganymede Lane | £ 0 | 0 | 0.00 KM |
Nearby Listings
| Address | Price | Type | Score | Distance |
|---|---|---|---|---|
| Poppyfields Way, Brackley, NN13 | £ 350,000 | BUY | 8 / 10 | 0.00 KM |
| Poppyfields Way, Brackley, NN13 | £ 340,000 | BUY | 7 / 10 | 0.03 KM |
| Poppyfields Way, Brackley, Northamptonshire | £ 350,000 | BUY | 7 / 10 | 0.04 KM |
| Poppyfields Way, Brackley, Northamptonshire | £ 325,000 | BUY | Unknown | 0.05 KM |
| Poppyfields Way, Brackley, NN13 6GB | £ 385,000 | BUY | 7 / 10 | 0.05 KM |
Nearby Properties
| Address | Price | Distance |
|---|---|---|
| 75 Poppyfields Way | £ 325,000 | 0.03 KM |
| 85 Poppyfields Way | £ 430,000 | 0.03 KM |
| 87 Poppyfields Way | £ 210,000 | 0.03 KM |
| 119 Poppyfields Way | £ 290,000 | 0.03 KM |
| 108 Poppyfields Way | £ 227,500 | 0.07 KM |