Chancellors says ..
Well-Extended Three-Bedroom Semi-Detached Home with Driveway Parking in a Prime Location. Situated in a convenient and family-friendly area close to excellent schools and transport links
Property Oracle says ..
Therefore, we give this property 6 / 10. *Disclaimer: This is our option and does constitute a recommendation or financial advice. Do your own research. *
- Price
- 7
- Condition
- 6
- Location
- 7
- Land
- 7
- Bedrooms
- 3
- Bathrooms
- 2
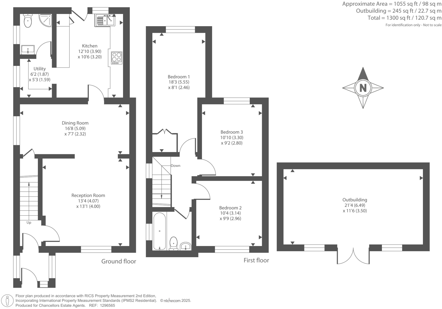
- Sqft (est)
- 1,055.00
The heatmap indicates the level of crime in the area. The color of the heatmap indicates the crime severity and recency.
Metrics Year-on-Year
- Average area value
- 266,250.00 £Decreased by 18.69 %
- Est sale value
- 296,455.00 £Increased by 0.36 %
- Average area rental value
- 1,013.00 £/moIncreased by 3.58 %
- Est letting value
- 1,055.00 £/mo
- Est rental Yield
- 4.57 %Increased by 27.65 %
- Crime Rate
- 7.00 %Unchanged by 0.00 %
from 327,468.00 £
from 295,400.00 £
from 978.00 £/mo
from 0.00 £/mo
from 3.58 %
from 7.00 %
Agent Activity
Chancellors created the listing.
Nearby Schools
| Name | Type | Ofsted | Distance |
|---|---|---|---|
| Penn Wood Primary And Nursery School | Community School | Good | 0.41 KM |
| Penn Road Children'S Centre | Children's Centre | 0.57 KM | |
| Phoenix Infant Academy | Academy Converter | Good | 0.59 KM |
| Baylis Court School | Academy Converter | 0.62 KM | |
| St Anthony'S Catholic Primary School | Academy Converter | Good | 0.68 KM |
Images
Nearby Streets
| Name | Average Price | Average Sqft | Distance |
|---|---|---|---|
| Waverley Road | £ 0 | 0 | 0.00 KM |
| Devon Avenue | £ 530,000 | 0 | 0.00 KM |
| Larch Close | £ 0 | 0 | 0.00 KM |
| Gloucester Avenue | £ 0 | 0 | 0.00 KM |
| Rectory Close | £ 0 | 0 | 0.00 KM |
Nearby Transport
| Name | NLC | TLC | Distance |
|---|---|---|---|
| Slough | 3172 | SLO | 2.99 KM |
| Burnham | 3176 | BNM | 3.78 KM |
| Windsor And Eton Riverside | 5672 | WNR | 4.85 KM |
| Windsor And Eton Central | 3175 | WNC | 5.07 KM |
| Datchet | 5668 | DAT | 6.27 KM |
Nearby Listings
| Address | Price | Type | Score | Distance |
|---|---|---|---|---|
| Slough, Berkshire, SL2 | £ 500,000 | BUY | 6 / 10 | 0.00 KM |
| Surrey Avenue, Slough, SL2 1DS | £ 475,000 | BUY | Unknown | 0.01 KM |
| Surrey Avenue, SLOUGH | £ 500,000 | BUY | 5 / 10 | 0.02 KM |
| Surrey Avenue, Slough, SL2 | £ 435,000 | BUY | 5 / 10 | 0.04 KM |
| Warwick Avenue, SLOUGH | £ 580,000 | BUY | Unknown | 0.07 KM |
Nearby Properties
| Address | Price | Distance |
|---|---|---|
| 35 Surrey Avenue | £ 335,000 | 0.02 KM |
| 19 Surrey Avenue | £ 358,000 | 0.02 KM |
| 57 Surrey Avenue | £ 185,000 | 0.02 KM |
| 21 Surrey Avenue | £ 257,000 | 0.02 KM |
| 55 Surrey Avenue | £ 375,000 | 0.02 KM |