Collier Gardens, Houghton Le Spring
By Robinsons
£ 309,995
Reviews
3 out of 5 stars
Robinsons says ..
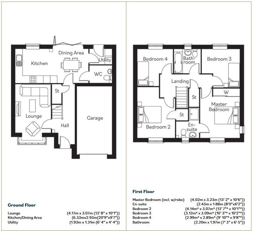
** PHASE 2 ** If interested, please quote plot 32. The Laurel is a stunning 4-bedroom home with plenty of room for the modern family. Downstairs, there’s a large open-plan kitchen/dining area with bi-fold doors to the rear garden. There is also a generous front-aspect lounge wit...
Property Oracle says ..
This is a detached property in Collier Gardens, Houghton Le Spring, featuring four bedrooms and three bathrooms. The house appears to be in excellent, modern condition, with a well-maintained interior and a garden. The location is near local amenities and well-regarded schools. The asking price of £309,995 seems reasonable given the property’s size (337.23 sqft) and the average price per square foot in the area (£246).
Therefore, we give this property 7 / 10. *Disclaimer: This is our option and does constitute a recommendation or financial advice. Do your own research. *
- Price
- 7
- Condition
- 9
- Location
- 7
- Land
- 6
- Bedrooms
- 4
- Bathrooms
- 3
- Sqft (est)
- 337.23
The heatmap indicates the level of crime in the area. The color of the heatmap indicates the crime severity and recency.
Metrics Year-on-Year
- Average area value
- 174,857.00 £Increased by 15.35 %
- Est sale value
- 82,958.58 £Increased by 67.35 %
- Average area rental value
- 906.00 £/moIncreased by 17.82 %
- Est letting value
- 337.23 £/mo
- Est rental Yield
- 6.22 %Increased by 2.13 %
- Crime Rate
- 0.00 %
Agent Activity
Robinsons created the listing.
Nearby Schools
| Name | Type | Ofsted | Distance |
|---|---|---|---|
| Newbottle Primary Academy | Academy Converter | Good | 1.07 KM |
| Shiney Row Primary School | Community School | Good | 1.25 KM |
| Barnwell Academy | Academy Converter | Good | 1.75 KM |
| Burnside Academy Inspires | Academy Converter | Good | 1.79 KM |
| Our Lady Queen Of Peace Catholic Primary School | Academy Converter | 2.08 KM |
Images
Nearby Streets
| Name | Average Price | Average Sqft | Distance |
|---|---|---|---|
| Peachleaf Lane | £ 0 | 0 | 0.00 KM |
| Connaught Close | £ 0 | 0 | 0.00 KM |
| Wetherby Close | £ 0 | 0 | 0.00 KM |
| Warren Close | £ 0 | 0 | 0.00 KM |
| Goodrich Close | £ 270,000 | 0 | 0.00 KM |
Nearby Listings
| Address | Price | Type | Score | Distance |
|---|---|---|---|---|
| Collier Gardens, Houghton Le Spring | £ 374,995 | BUY | Unknown | 0.00 KM |
| Collier Gardens, Houghton Le Spring | £ 309,995 | BUY | 7 / 10 | 0.00 KM |
| Collier Gardens, Philadelphia | £ 249,995 | BUY | 7 / 10 | 0.00 KM |
| Collier Gardens, Philadelphia | £ 249,995 | BUY | 7 / 10 | 0.00 KM |
| Collier Gardens, Philadelphia | £ 324,995 | BUY | Unknown | 0.00 KM |
Nearby Properties
| Address | Price | Distance |
|---|---|---|
| 21 Shop Row | £ 89,950 | 0.19 KM |
| 15 Shop Row | £ 45,000 | 0.19 KM |
| 4 Shop Row | £ 35,000 | 0.19 KM |
| 2 Shop Row | £ 98,000 | 0.19 KM |
| 10 Shop Row | £ 75,000 | 0.19 KM |