MO
Darwin Walk, Dereham, NR19
By Moneyproperties
£ 220,000
Reviews
3 out of 5 stars
Moneyproperties says ..
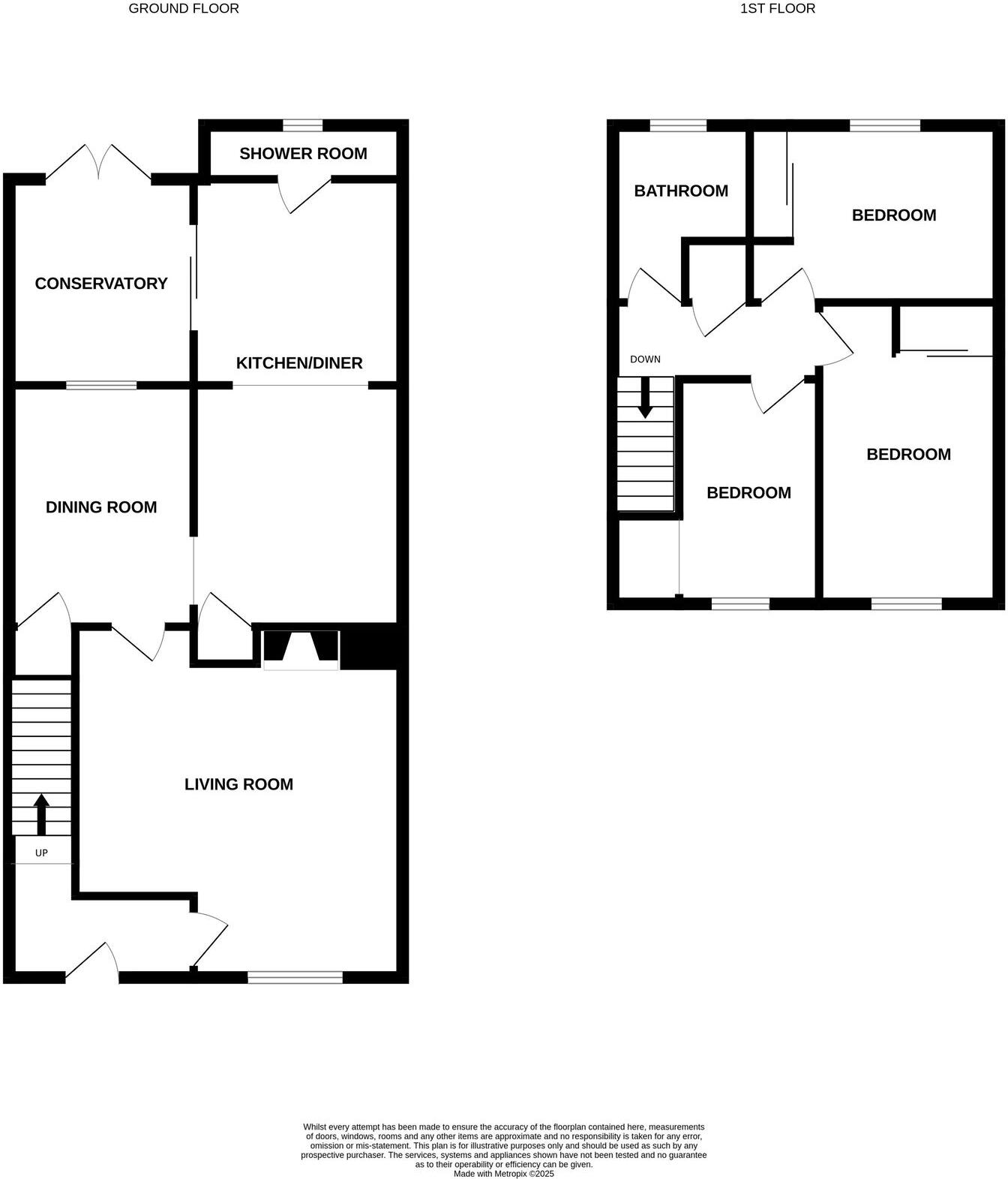
Moneyproperties bring to market this spacious three-bedroom end of terraced house that has been extended to create generous living accommodation throughout. Coming to market for the first time in over 30 years the property comprises of an entrance hall, 16ft living room with a separate dining ...
Property Oracle says ..
Therefore, we give this property 6 / 10. *Disclaimer: This is our option and does constitute a recommendation or financial advice. Do your own research. *
- Price
- 5
- Condition
- 6
- Location
- 7
- Land
- 6
- Bedrooms
- 3
- Bathrooms
- 1
- Sqft (est)
- 753.00
The heatmap indicates the level of crime in the area. The color of the heatmap indicates the crime severity and recency.
Metrics Year-on-Year
- Average area value
- 458,333.00 £Increased by 78.66 %
- Est sale value
- 144,576.00 £Decreased by 20.66 %
- Average area rental value
- 983.00 £/moDecreased by 3.34 %
- Est letting value
- 0.00 £/mo
- Est rental Yield
- 2.57 %Decreased by 46.01 %
- Crime Rate
- 7.00 %Unchanged by 0.00 %
from 256,541.00 £
from 182,226.00 £
from 1,017.00 £/mo
from 0.00 £/mo
from 4.76 %
from 7.00 %
Agent Activity
Moneyproperties created the listing.
Nearby Schools
| Name | Type | Ofsted | Distance |
|---|---|---|---|
| Grove House Infant And Nursery School | Academy Converter | Good | 0.14 KM |
| Dereham Church Of England Junior Academy | Academy Sponsor Led | Good | 0.26 KM |
| Dereham South Children'S Centre | Children's Centre | 0.53 KM | |
| Dereham Central Children'S Centre | Children's Centre | 0.53 KM | |
| Dereham Church Of England Infant & Nursery School | Voluntary Aided School | Good | 0.58 KM |
Images
Nearby Streets
| Name | Average Price | Average Sqft | Distance |
|---|---|---|---|
| Daphne Close | £ 0 | 0 | 0.00 KM |
| Howlett Close | £ 0 | 0 | 0.00 KM |
| London Road | £ 190,000 | 0 | 0.00 KM |
| Ted Ellis Walk | £ 450,000 | 0 | 0.00 KM |
| Cross Way | £ 0 | 0 | 0.00 KM |
Nearby Listings
| Address | Price | Type | Score | Distance |
|---|---|---|---|---|
| Darwin Walk, Dereham, NR19 | £ 220,000 | BUY | 6 / 10 | 0.00 KM |
| Darwin Walk, Dereham | £ 210,000 | BUY | Unknown | 0.02 KM |
| Darwin Walk, Dereham | £ 200,000 | BUY | 6 / 10 | 0.02 KM |
| Ashley Walk, Dereham | £ 190,000 | BUY | 6 / 10 | 0.03 KM |
| Sardis Way, Dereham | £ 250,000 | BUY | Unknown | 0.07 KM |
Nearby Properties
| Address | Price | Distance |
|---|---|---|
| 30 Darwin Walk | £ 122,000 | 0.01 KM |
| 28 Darwin Walk | £ 145,000 | 0.01 KM |
| 24 Darwin Walk | £ 122,000 | 0.01 KM |
| 18 Darwin Walk | £ 124,500 | 0.01 KM |
| 23 Darwin Walk | £ 135,200 | 0.01 KM |