Breakey & Co says ..
Rare opportunity to own a piece of history! Converted Victorian pub at 71 & 71a Lily Lane boasts character & charm. Ideal for residential or commercial use. Garage & workshops included. Contact .
Property Oracle says ..
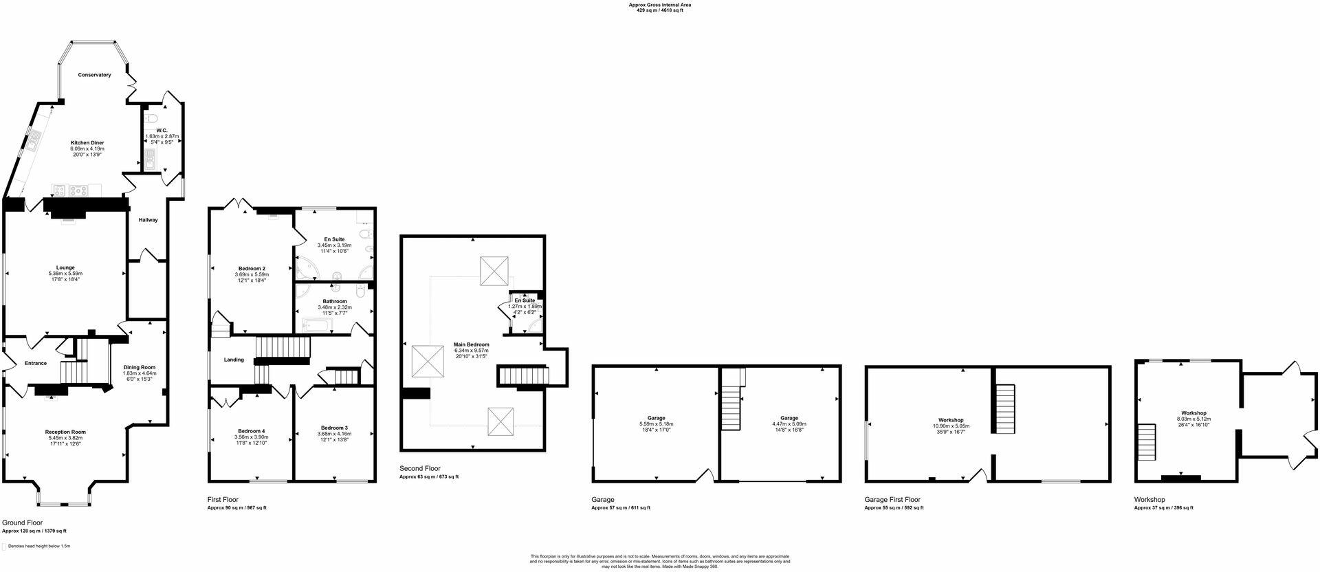
This property at Lily Lane, Bamfurlong, Wigan, WN2 5JW, is a substantial six-bedroom house with four bathrooms, presented as a converted Victorian pub. The property’s size is substantial, spanning 4,617.72 square feet. The photographs reveal a blend of features reflecting both its history and elements that appear to need modernisation. Many rooms showcase period features like high ceilings, fireplaces and large windows. However, several images suggest areas needing renovation or updating, including some bathrooms and the kitchen, which could influence a potential buyer’s valuation. The property includes several outbuildings, offering potential for additional living space or workshop facilities. The presence of a substantial garden space is evident, but its precise dimensions aren’t provided. The listing highlights the property’s proximity to transport links such as Ince and Wigan North Western railway stations, as well as several schools, including Platt Bridge Community School, which holds an “Outstanding” Ofsted rating. The location in Bamfurlong, Wigan, is a key factor for potential buyers, with the desirability of this location varying depending on individual priorities. The asking price of £520,000 is high, particularly given the absence of a defined plot size and the required modernisation. A comprehensive survey and valuation would be essential for a potential buyer to assess its true value and make an informed decision.
Therefore, we give this property 6 / 10. *Disclaimer: This is our option and does constitute a recommendation or financial advice. Do your own research. *
- Price
- 7
- Condition
- 6
- Location
- 7
- Land
- 4
- Bedrooms
- 6
- Bathrooms
- 4
- Sqft (est)
- 4,617.72
The heatmap indicates the level of crime in the area. The color of the heatmap indicates the crime severity and recency.
Metrics Year-on-Year
- Average area value
- 169,995.00 £Increased by 0.86 %
- Est sale value
- 942,014.88 £Increased by 23.64 %
- Average area rental value
- 909.00 £/moIncreased by 14.34 %
- Est letting value
- 4,617.72 £/mo
- Est rental Yield
- 6.42 %Increased by 13.43 %
- Crime Rate
- 0.00 %
Agent Activity
Breakey & Co created the listing.
Nearby Schools
| Name | Type | Ofsted | Distance |
|---|---|---|---|
| Abram Bryn Gates Primary School | Community School | Requires improvement | 0.50 KM |
| Holy Family Catholic Primary School Platt Bridge | Voluntary Aided School | Good | 0.95 KM |
| St John'S Church Of England Primary School, Abram | Academy Converter | Good | 1.43 KM |
| Platt Bridge Community School | Academy Converter | Outstanding | 1.73 KM |
| Platt Bridge Sure Start Children'S Centre | Children's Centre | 1.73 KM |
Images
Nearby Streets
| Name | Average Price | Average Sqft | Distance |
|---|---|---|---|
| Furlong Close | £ 215,000 | 0 | 0.00 KM |
| Bolton Road | £ 189,980 | 0 | 0.00 KM |
| Hodder Green Close | £ 0 | 0 | 0.00 KM |
| Gilpin Place | £ 0 | 0 | 0.00 KM |
| Collinge Street | £ 0 | 0 | 0.00 KM |
Nearby Transport
| Name | NLC | TLC | Distance |
|---|---|---|---|
| Ince (Manchester) | 2236 | INC | 3.31 KM |
| Bryn | 2222 | BYN | 4.77 KM |
| Wigan North Western | 2363 | WGN | 4.88 KM |
| Hindley | 2398 | HIN | 4.88 KM |
| Wigan Wallgate | 2406 | WGW | 4.97 KM |
Nearby Listings
| Address | Price | Type | Score | Distance |
|---|---|---|---|---|
| Lily Lane, Bamfurlong, WN2 | £ 520,000 | BUY | 6 / 10 | 0.00 KM |
| Lily Lane, Bamfurlong, WN2 | £ 175,000 | BUY | 6 / 10 | 0.04 KM |
| Lily Lane, Bamfurlong, Wigan, Greater Manchester, WN2 | £ 150,000 | BUY | 6 / 10 | 0.08 KM |
| Winstanley Road, Bamfurlong, Wigan, Greater Manchester, WN2 5JP | £ 130,000 | BUY | 6 / 10 | 0.18 KM |
| Lily Lane, Bamfurlong, WN2 | £ 75,000 | BUY | 4 / 10 | 0.20 KM |
Nearby Properties
| Address | Price | Distance |
|---|---|---|
| 83 Lily Lane | £ 95,600 | 0.08 KM |
| 79 Lily Lane | £ 67,000 | 0.08 KM |
| 113 Lily Lane | £ 78,700 | 0.09 KM |
| 105 Lily Lane | £ 50,000 | 0.09 KM |
| 85 Lily Lane | £ 137,000 | 0.09 KM |