Stortford Road, Clavering, Saffron Walden
By Cheffins Residential
£ 500,000
Reviews
3 out of 5 stars
Cheffins Residential says ..
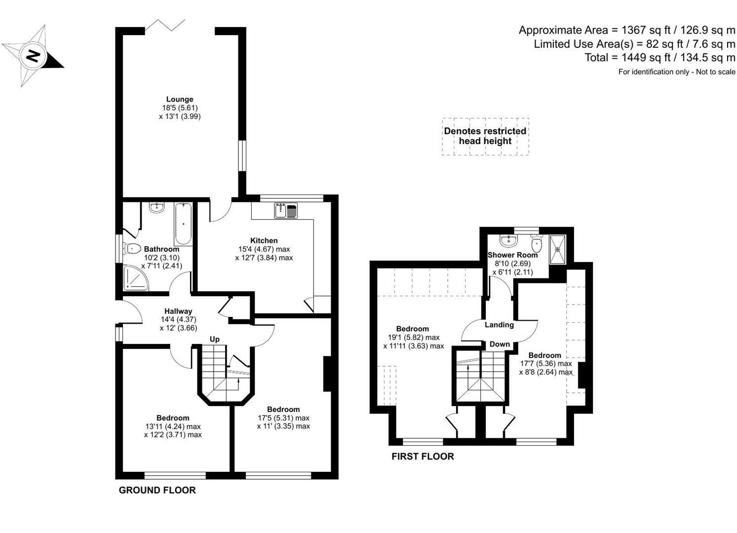
An extended four bedroom home situated in an elevated position within the village. The property offers bright and well proportioned accommodation, together with ample off-street parking and a west facing garden. Offered chain free.
Property Oracle says ..
The property is located in Clavering, Essex, and is a 4-bedroom, 2-bathroom house with a list price of £500,000. The property appears to be in good condition based on the provided photos, with a modern kitchen and updated bathrooms. It has a garden, which is a desirable feature in the UK housing market. The location is in a village setting with a nearby primary school rated as outstanding. Transport links may require a car, as the nearest train stations are a few kilometers away. The price seems reasonable compared to other properties in the area, although a definitive conclusion requires more detailed pricing data for comparable properties of similar size and condition.
Therefore, we give this property 7 / 10. *Disclaimer: This is our option and does constitute a recommendation or financial advice. Do your own research. *
- Price
- 7
- Condition
- 8
- Location
- 7
- Land
- 7
- Bedrooms
- 4
- Bathrooms
- 2
- Sqft (est)
- 1,312.36
- Lot (est)
- 1,449.00
The heatmap indicates the level of crime in the area. The color of the heatmap indicates the crime severity and recency.
Metrics Year-on-Year
- Average area value
- 310,833.00 £Decreased by 19.99 %
- Est sale value
- 586,624.92 £Decreased by 3.25 %
- Average area rental value
- 1,673.00 £/moIncreased by 30.50 %
- Est letting value
- 2,624.72 £/moIncreased by 100.00 %
- Est rental Yield
- 6.46 %Increased by 63.13 %
- Crime Rate
- 5.00 %Unchanged by 0.00 %
Agent Activity
Cheffins Residential created the listing.
Nearby Schools
| Name | Type | Ofsted | Distance |
|---|---|---|---|
| Clavering Primary School | Community School | Outstanding | 0.16 KM |
| Manuden Primary School | Community School | Outstanding | 5.74 KM |
| Rickling Church Of England Voluntary Aided Primary School | Voluntary Aided School | Good | 6.12 KM |
| Farnham Church Of England Primary School | Voluntary Aided School | Good | 6.79 KM |
| Newport Primary School | Community School | Good | 7.34 KM |
Images
Nearby Streets
| Name | Average Price | Average Sqft | Distance |
|---|---|---|---|
| Vassar's Field | £ 0 | 0 | 0.00 KM |
| Clements Close | £ 0 | 0 | 0.00 KM |
| Chapel Close | £ 0 | 0 | 0.00 KM |
| Elmstreet Lane | £ 1,500,000 | 0 | 0.00 KM |
Nearby Transport
| Name | NLC | TLC | Distance |
|---|---|---|---|
| Newport (Essex) | 7039 | NWE | 8.05 KM |
| Audley End | 7017 | AUD | 8.31 KM |
| Stansted Mountfitchet | 6833 | SST | 9.26 KM |
Nearby Listings
| Address | Price | Type | Score | Distance |
|---|---|---|---|---|
| Stortford Road, Clavering, Saffron Walden | £ 500,000 | BUY | 7 / 10 | 0.00 KM |
| The Hyde, Clavering, CB11 | £ 500,000 | BUY | Unknown | 0.09 KM |
| Stortford Road, Clavering, Saffron Walden | £ 945,000 | BUY | 6 / 10 | 0.11 KM |
| Stortford Road, Clavering, Saffron Walden, Essex, CB11 | £ 850,000 | BUY | 7 / 10 | 0.12 KM |
| Stortford Road, Clavering, Nr Saffron Walden, Essex, CB11 | £ 950,000 | BUY | 6 / 10 | 0.13 KM |
Nearby Properties
| Address | Price | Distance |
|---|---|---|
| 4 The Hyde | £ 277,000 | 0.04 KM |
| 5 The Hyde | £ 290,000 | 0.04 KM |
| 1 The Hyde | £ 247,500 | 0.04 KM |
| Jobest | £ 218,000 | 0.10 KM |
| Gateways | £ 315,000 | 0.10 KM |