Oxford Road, Macclesfield
By Gascoigne Halman
£ 218,000
Reviews
3 out of 5 stars
Gascoigne Halman says ..
A larger than average extended two double bedroom mid terrace house with a good size garden and a converted loft. Well presented throughout and enjoying permit parking and a great location close to the Town Centre.
Property Oracle says ..
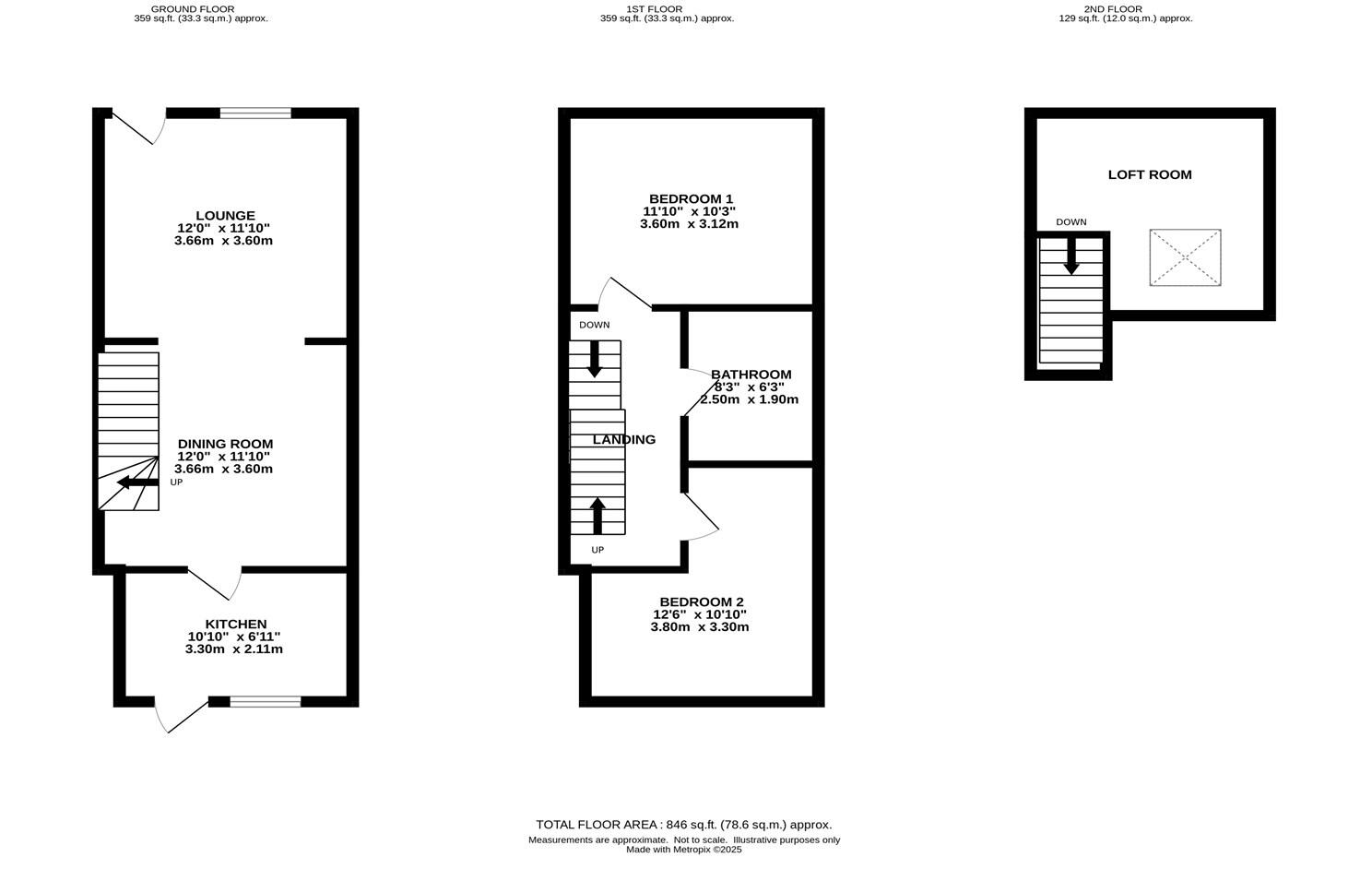
The property is a 2 bedroom terraced house on Oxford Road, Macclesfield, Cheshire. It is listed at £218,000. The property appears to be in good condition for its age. The interior is clean and well-maintained, although some rooms show signs of needing some updating. The kitchen and bathroom appear functional but could benefit from modernising. The property benefits from a small, manageable garden. The location is good, close to several well-regarded schools, including The Fermain Academy and All Hallows Catholic College, both rated as ‘Outstanding’ by Ofsted. Macclesfield train station is also within reasonable proximity, offering convenient access to other towns and cities. Considering the average price of similar properties in the area (£210,271) and the average price per square foot (£281), the list price of £218,000 for this 2,000 sqft property seems slightly above average. However, the property’s condition and proximity to excellent schools might justify the slightly higher price. More information on the property’s plot size would allow for a more precise analysis of the land value.
Therefore, we give this property 6 / 10. *Disclaimer: This is our option and does constitute a recommendation or financial advice. Do your own research. *
- Price
- 7
- Condition
- 7
- Location
- 8
- Land
- 4
- Bedrooms
- 2
- Bathrooms
- 1
- Sqft (est)
- 2,000.00
The heatmap indicates the level of crime in the area. The color of the heatmap indicates the crime severity and recency.
Metrics Year-on-Year
- Average area value
- 236,999.00 £Decreased by 1.19 %
- Est sale value
- 550,000.00 £Increased by 4.96 %
- Average area rental value
- 1,057.00 £/moIncreased by 6.66 %
- Est letting value
- 2,000.00 £/moUnchanged by 0.00 %
- Est rental Yield
- 5.35 %Increased by 7.86 %
- Crime Rate
- 8.00 %Unchanged by 0.00 %
Agent Activity
Gascoigne Halman created the listing.
Nearby Schools
| Name | Type | Ofsted | Distance |
|---|---|---|---|
| The Fermain Academy | Free Schools Alternative Provision | Outstanding | 0.24 KM |
| Parkroyal Community School | Academy Converter | Good | 0.45 KM |
| All Hallows Catholic College | Academy Converter | Outstanding | 0.49 KM |
| The Macclesfield Academy | Academy Sponsor Led | Requires improvement | 0.64 KM |
| Macclesfield College | Further Education | Good | 0.84 KM |
Images
Nearby Streets
| Name | Average Price | Average Sqft | Distance |
|---|---|---|---|
| Oxford Road | £ 0 | 0 | 0.00 KM |
| Holly Road | £ 0 | 0 | 0.00 KM |
| Highfield Road | £ 0 | 0 | 0.00 KM |
| Cumberland Street | £ 0 | 0 | 0.00 KM |
| Millers Croft | £ 0 | 0 | 0.00 KM |
Nearby Transport
| Name | NLC | TLC | Distance |
|---|---|---|---|
| Macclesfield | 2871 | MAC | 1.71 KM |
| Prestbury | 2875 | PRB | 4.00 KM |
| Adlington (Cheshire) | 2939 | ADC | 6.82 KM |
Nearby Listings
| Address | Price | Type | Score | Distance |
|---|---|---|---|---|
| Oxford Road, Macclesfield | £ 218,000 | BUY | 6 / 10 | 0.00 KM |
| Oxford Road, Macclesfield, Cheshire, SK11 | £ 150,000 | BUY | 6 / 10 | 0.01 KM |
| Oxford Road, Macclesfield | £ 139,950 | BUY | 7 / 10 | 0.04 KM |
| Beswick Street, Macclesfield, Cheshire, SK11 | £ 400,000 | BUY | Unknown | 0.06 KM |
| Oxford Road, Macclesfield | £ 560,000 | BUY | 7 / 10 | 0.06 KM |
Nearby Properties
| Address | Price | Distance |
|---|---|---|
| 59 Oxford Road | £ 125,000 | 0.01 KM |
| 70 Oxford Road | £ 242,500 | 0.01 KM |
| 66 Oxford Road | £ 150,000 | 0.01 KM |
| 63 Oxford Road | £ 244,950 | 0.01 KM |
| 57 Oxford Road | £ 145,000 | 0.01 KM |