High Street, Topsham
EA

High Street, Topsham

By East of Exe Ltd

£ 350,000

Reviews

3 out of 5 stars

East of Exe Ltd says ..

Welcome to your dream retreat in the charming town of Topsham! This beautifully designed 2-bedroom mid-terraced home seamlessly combines classic character with contemporary comforts. With major transport links just moments away, you´ll enjoy the perfect balance of convenience and tranquillit...

Property Oracle says ..

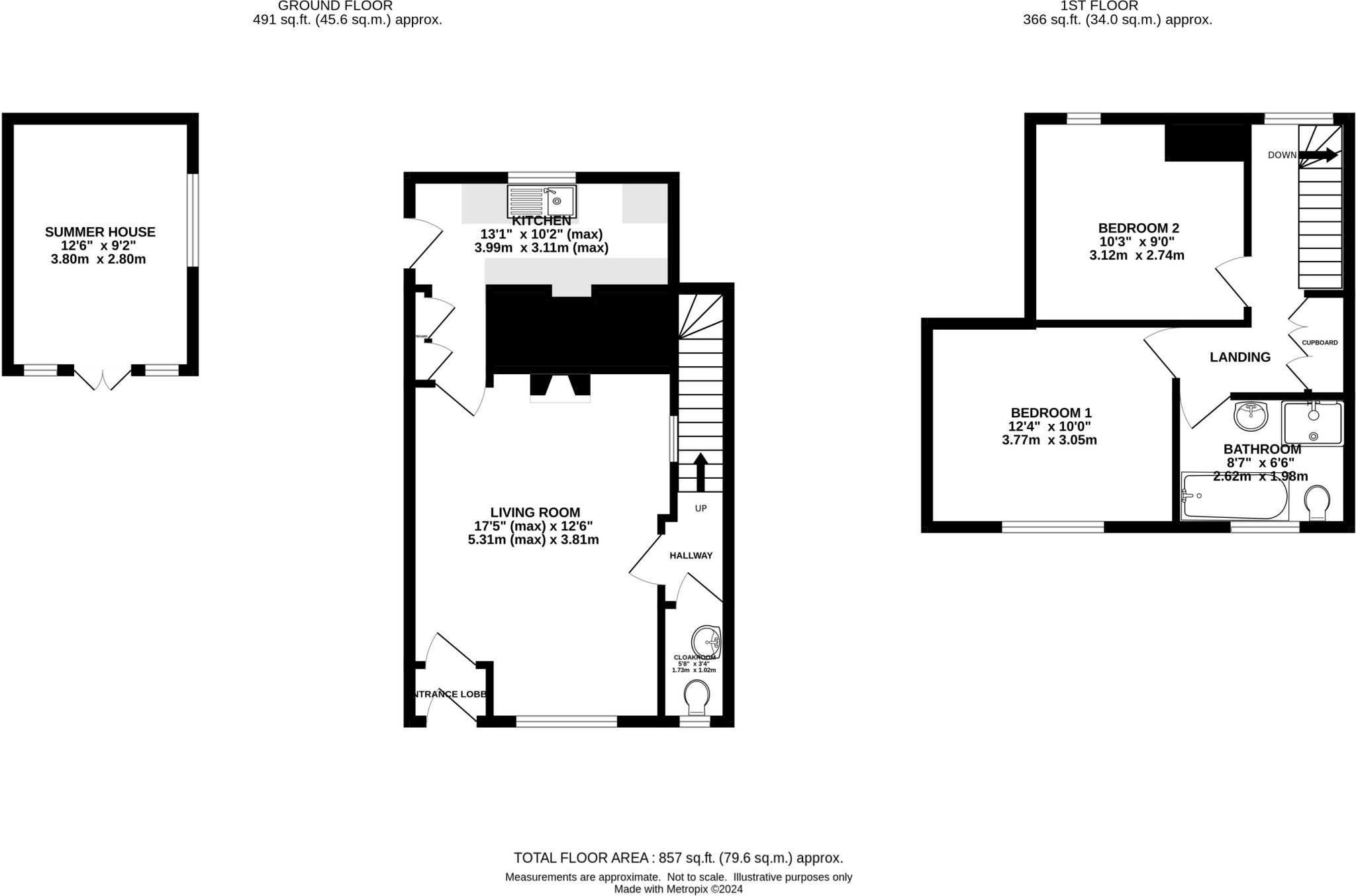
This 2-bedroom mid-terraced cottage in Topsham, Exeter, is situated in a highly desirable location on High Street. The property offers a charming and traditional feel, evident in both the external and internal photographs. The interior features period details, including exposed beams and characterful fireplaces. The living areas are well-proportioned and benefit from ample natural light. The garden provides a pleasant outdoor space that complements the property well. A garden shed provides some useful additional storage. Its location on High Street provides excellent convenience and accessibility to local amenities, including shops, restaurants, and transportation. The proximity to The Topsham School is advantageous for families. While specific square footage information for the property is missing, comparison to other nearby properties on High Street, suggests the list price might be in line with the market, though more detailed information on the property’s internal layout and features would allow for a more definitive assessment of value. The lack of plot size information also limits a full appraisal. Overall, the property represents a desirable and well-located home in a sought-after area.

Therefore, we give this property 7 / 10. *Disclaimer: This is our option and does constitute a recommendation or financial advice. Do your own research. *

Price
7
Condition
7
Location
9
Land
6
Bedrooms
2
Bathrooms
1
Sqft (est)
857.00

The heatmap indicates the level of crime in the area. The color of the heatmap indicates the crime severity and recency.

Metrics Year-on-Year

Average area value
528,231.00 £
Increased by 3.23 %
from 511,722.00 £
Est sale value
549,337.00 £
Increased by 28.71 %
from 426,786.00 £
Average area rental value
1,833.00 £/mo
Increased by 1.05 %
from 1,814.00 £/mo
Est letting value
1,714.00 £/mo
Increased by 100.00 %
from 857.00 £/mo
Est rental Yield
4.16 %
Decreased by 2.12 %
from 4.25 %
Crime Rate
22.00 %
Unchanged by 0.00 %
from 22.00 %

Agent Activity

  • East of Exe Ltd marked this listing as sold.

  • East of Exe Ltd created the listing.

Nearby Schools

NameTypeOfstedDistance
The Topsham SchoolCommunity SchoolGood0.19 KM
Trinity Church Of England Voluntary Aided Primary And Nursery SchoolVoluntary Aided School1.76 KM
Countess Wear ExeterChildren's Centre2.85 KM
Countess Wear Community SchoolCommunity SchoolRequires improvement2.96 KM
Clyst Vale Children'S CentreChildren's Centre2.97 KM

Images

56 High Street - ... 56 High Street - ... 56 High Street - ... 56 High Street - ... 56 High Street - ... 56 High Street - ... 56 High Street - ... 56 High Street - ... 56 High Street - ... 56 High Street - ... 56 High Street - ... 56 High Street - ... 56 High Street - ... 56 High Street - ... 56 High Street - ... 56 High Street - ... 56 High Street - ...

Nearby Streets

NameAverage PriceAverage SqftDistance
Swains Court £ 650,00000.00 KM
Hamilton Road £ 450,00000.00 KM
Riverside Road £ 000.00 KM
Coles Crescent £ 000.00 KM
Victoria Mead £ 637,50000.00 KM

Nearby Transport

NameNLCTLCDistance
Topsham5758TOP0.41 KM
Newcourt9589NCO2.11 KM
Digby And Sowton5753DIG3.10 KM
Exton5760EXN3.35 KM
Lympstone Commando5762LYC4.05 KM

Nearby Listings

AddressPriceTypeScoreDistance
High Street, Topsham £ 340,000BUY7 / 100.00 KM
High Street, Topsham £ 300,000BUYUnknown0.00 KM
High Street, Topsham £ 350,000BUY7 / 100.00 KM
Topsham, Devon £ 400,000BUY7 / 100.04 KM
High Street, Topsham, Exeter £ 950,000BUY7 / 100.06 KM

Nearby Properties

AddressPriceDistance
47 High Street £ 56,0000.01 KM
52 High Street £ 340,0000.01 KM
73 High Street £ 66,0000.01 KM
74 High Street £ 320,0000.01 KM
57 High Street £ 223,5000.01 KM