Cliff Road, Nottingham, NG1
By Tattershalls Ltd
£ 755,000
Reviews
2 out of 5 stars
Tattershalls Ltd says ..
NO CHAIN! A rare opportunity to acquire four, one-bedroom apartments in Nottingham City Centre, with access to the historic caves on Nottingham! A fantastic opportunity for investors!
Property Oracle says ..
This property is a newly renovated or newly built property located in the Castle area of Nottingham, NG1. The provided images showcase a modern interior with contemporary finishes and fixtures. The property boasts four bedrooms and four bathrooms, suggesting it could be suitable for a family or as a rental investment. The location in NG1 offers proximity to Nottingham city centre, providing easy access to amenities, employment opportunities, and transport links. The proximity to several schools, including Stone Soup Academy (rated Outstanding), adds to its family-friendly appeal. However, a significant drawback is the lack of outdoor space; the plot size is listed as 0.00 sqft, meaning there is virtually no garden or private outdoor area. The list price of £755,000 requires further investigation to determine its competitiveness within the market. A comparison with similar properties in the area, in terms of size, condition, and features, is necessary to accurately assess the value for money. The absence of detailed information on comparable properties makes a definitive judgment on the property’s price challenging. Overall, the property presents a modern, well-maintained living space in a convenient location, but the lack of outdoor space and the need for further price analysis are important considerations.
Therefore, we give this property 5 / 10. *Disclaimer: This is our option and does constitute a recommendation or financial advice. Do your own research. *
- Price
- 6
- Condition
- 9
- Location
- 7
- Land
- 1
- Bedrooms
- 4
- Bathrooms
- 4
- Sqft (est)
- 754.55
The heatmap indicates the level of crime in the area. The color of the heatmap indicates the crime severity and recency.
Metrics Year-on-Year
- Average area value
- 273,747.00 £Decreased by 7.23 %
- Est sale value
- 276,165.30 £Increased by 23.65 %
- Average area rental value
- 1,032.00 £/moDecreased by 0.77 %
- Est letting value
- 754.55 £/moUnchanged by 0.00 %
- Est rental Yield
- 4.52 %Increased by 6.86 %
- Crime Rate
- 10.00 %Unchanged by 0.00 %
Agent Activity
Tattershalls Ltd created the listing.
Nearby Schools
| Name | Type | Ofsted | Distance |
|---|---|---|---|
| Stone Soup Academy | Free Schools Alternative Provision | Outstanding | 0.27 KM |
| Nottingham College | Further Education | Requires improvement | 0.29 KM |
| Sutherland House School | Non-maintained Special School | Good | 0.66 KM |
| Meadows Sure Start Children'S Centre | Children's Centre | 1.04 KM | |
| Greenfields Community School | Community School | Good | 1.08 KM |
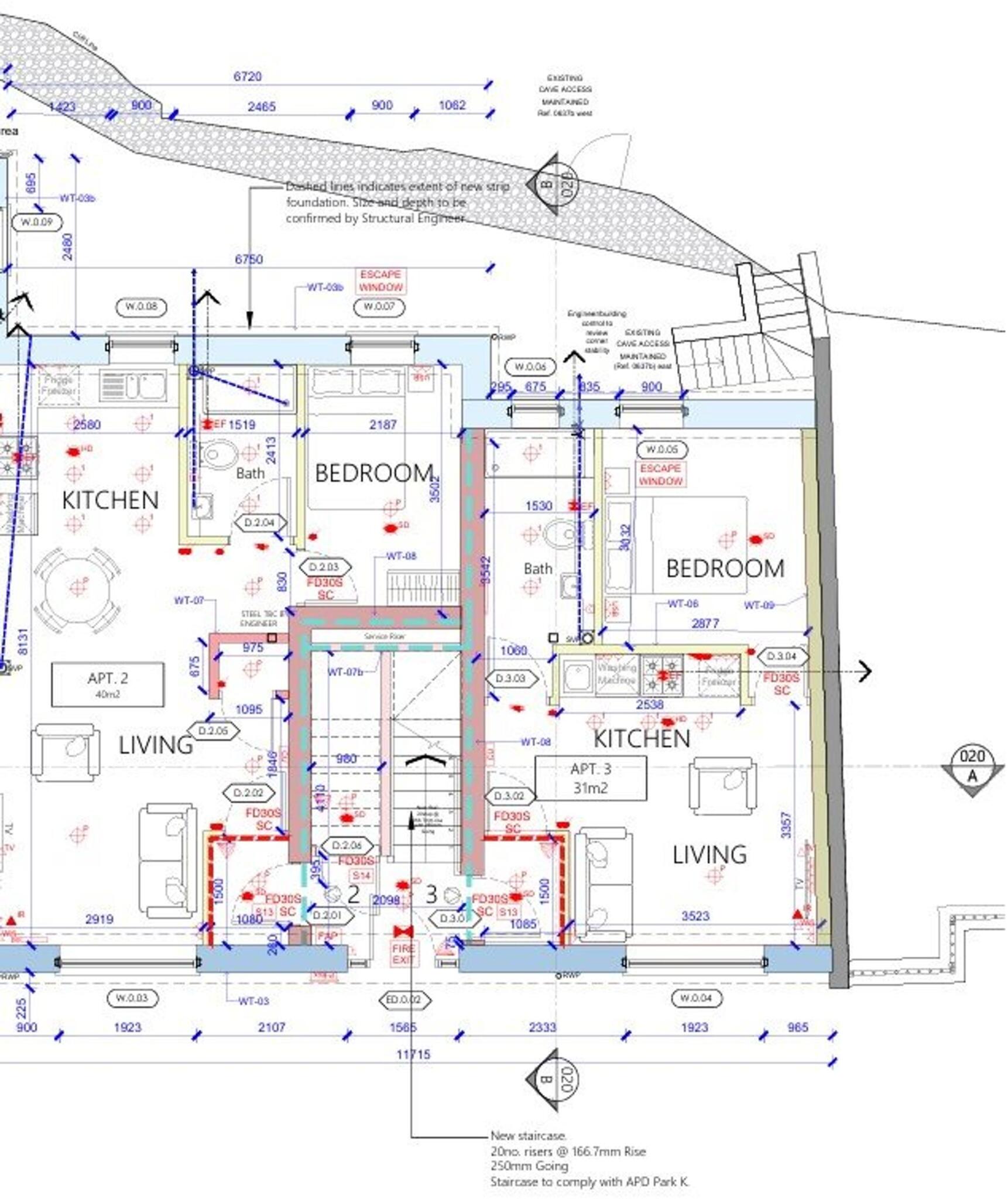
Images
Nearby Streets
| Name | Average Price | Average Sqft | Distance |
|---|---|---|---|
| Chardlace Walk | £ 0 | 0 | 0.00 KM |
| King's Place | £ 0 | 0 | 0.00 KM |
| Angel Alley | £ 0 | 0 | 0.00 KM |
| Heritage Mews | £ 0 | 0 | 0.00 KM |
| Brightmoor Court | £ 210,000 | 0 | 0.00 KM |
Nearby Transport
| Name | NLC | TLC | Distance |
|---|---|---|---|
| Nottingham | 1826 | NOT | 0.56 KM |
| Netherfield | 6241 | NET | 7.05 KM |
| Carlton | 6201 | CTO | 7.26 KM |
| Beeston | 1625 | BEE | 7.92 KM |
| Bulwell | 1865 | BLW | 8.07 KM |
Nearby Listings
| Address | Price | Type | Score | Distance |
|---|---|---|---|---|
| Cliff Road, Nottingham, NG1 | £ 755,000 | BUY | 5 / 10 | 0.00 KM |
| Commerce Square, Nottingham, NG1 | £ 235,000 | BUY | 6 / 10 | 0.01 KM |
| Kings Court, Commerce Square, Nottingham, Nottinghamshire, NG1 1HS | £ 215,000 | BUY | 5 / 10 | 0.02 KM |
| Commerce Square, Nottingham City Centre, Nottinghamshire | £ 200,000 | BUY | Unknown | 0.02 KM |
| Commerce Square, Nottingham, Nottinghamshire, NG1 | £ 170,000 | BUY | 6 / 10 | 0.02 KM |
Nearby Properties
| Address | Price | Distance |
|---|---|---|
| 79 Cliff Road | £ 106,000 | 0.04 KM |
| 115 Cliff Road | £ 118,000 | 0.04 KM |
| 77 Cliff Road | £ 127,000 | 0.04 KM |
| 83 Cliff Road | £ 200,000 | 0.05 KM |
| 105 Cliff Road | £ 114,000 | 0.05 KM |