Chancellors says ..
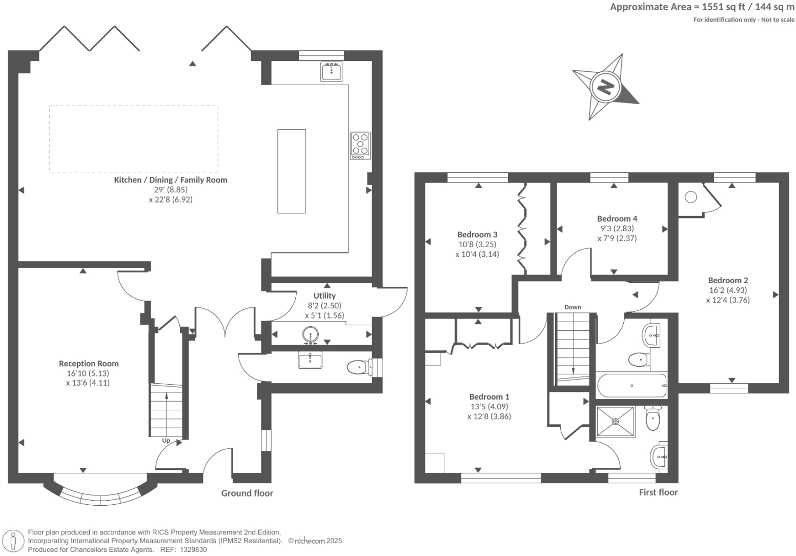
An exceptional opportunity to acquire a beautifully extended four-bedroom detached family home, featuring a stunning open-plan kitchen and reception room with bi-fold doors across the rear, offering an undeniable 'wow' factor. The property is situated within a mile of Lightwater village.
Property Oracle says ..
Therefore, we give this property 7 / 10. *Disclaimer: This is our option and does constitute a recommendation or financial advice. Do your own research. *
- Price
- 7
- Condition
- 8
- Location
- 8
- Land
- 7
- Bedrooms
- 4
- Bathrooms
- 2
- Sqft (est)
- 1,483.25
The heatmap indicates the level of crime in the area. The color of the heatmap indicates the crime severity and recency.
Metrics Year-on-Year
- Average area value
- 631,026.00 £Increased by 16.57 %
- Est sale value
- 735,692.00 £Increased by 37.40 %
- Average area rental value
- 1,918.00 £/moDecreased by 33.29 %
- Est letting value
- 1,483.25 £/moUnchanged by 0.00 %
- Est rental Yield
- 3.65 %Decreased by 42.70 %
- Crime Rate
- 10.00 %Unchanged by 0.00 %
from 541,348.00 £
from 535,453.25 £
from 2,875.00 £/mo
from 1,483.25 £/mo
from 6.37 %
from 10.00 %
Agent Activity
Chancellors created the listing.
Nearby Schools
| Name | Type | Ofsted | Distance |
|---|---|---|---|
| Gordon'S School | Academy Converter | Outstanding | 1.56 KM |
| Lightwater Village School | Academy Converter | 1.68 KM | |
| Hammond School | Academy Converter | Good | 2.22 KM |
| Fernways School | Other Independent Special School | 2.42 KM | |
| Woodcote House School | Other Independent School | 2.54 KM |
Images
Nearby Streets
| Name | Average Price | Average Sqft | Distance |
|---|---|---|---|
| Withy Close | £ 0 | 0 | 0.00 KM |
| Lightwater Bypass | £ 215,000 | 0 | 0.00 KM |
| Sundew Close | £ 1,000,000 | 0 | 0.00 KM |
| All Saints Road | £ 0 | 0 | 0.00 KM |
| Derwent Road | £ 0 | 0 | 0.00 KM |
Nearby Transport
| Name | NLC | TLC | Distance |
|---|---|---|---|
| Bagshot | 5681 | BAG | 3.64 KM |
| Sunningdale | 5671 | SNG | 5.45 KM |
| Brookwood | 5687 | BKO | 5.78 KM |
| Ascot (Berks) | 5666 | ACT | 6.51 KM |
| Longcross | 5674 | LNG | 8.11 KM |
Nearby Listings
| Address | Price | Type | Score | Distance |
|---|---|---|---|---|
| Lightwater, Surrey, GU18 | £ 750,000 | BUY | 7 / 10 | 0.00 KM |
| Lightwater, Surrey, GU18 | £ 525,000 | BUY | Unknown | 0.03 KM |
| Birchwood Drive, Lightwater, Surrey, GU18 | £ 750,000 | BUY | 7 / 10 | 0.15 KM |
| Riverside Avenue, Lightwater, Surrey, GU18 | £ 460,000 | BUY | 6 / 10 | 0.15 KM |
| Riverside Avenue, Lightwater, Surrey, GU18 | £ 425,000 | BUY | Unknown | 0.15 KM |
Nearby Properties
| Address | Price | Distance |
|---|---|---|
| 73 Birchwood Drive | £ 130,000 | 0.02 KM |
| 75 Birchwood Drive | £ 210,000 | 0.02 KM |
| 41 Birchwood Drive | £ 400,000 | 0.02 KM |
| 67 Birchwood Drive | £ 150,000 | 0.02 KM |
| 51 Birchwood Drive | £ 202,000 | 0.02 KM |