Penistone Road, Middlesbrough
By Progression Property
£ 475,000
Reviews
2 out of 5 stars
Progression Property says ..
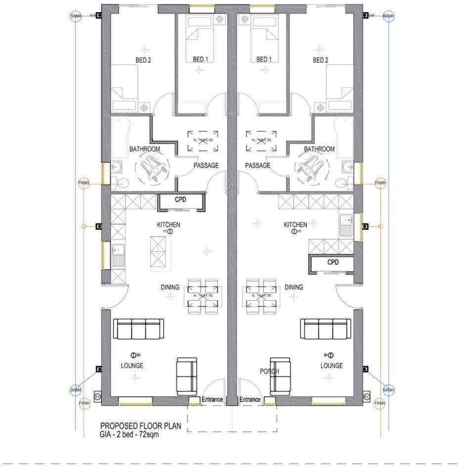
A DEVELOPMENT SITE LOCATED IN THE EAST OF MIDDLESBROUGH WITH PLANNING PASSED FOR A TOTAL OF 18 SINGLE STOREY SEMI DETACHED BUNGALOWS (WITH A GIA OF 72 SQM) TO BE BUILT ON THE FORMER 'PARK END PUB' SITE WITHIN MIDDLESBROUGH' PARK END AREA OF THE TS3 POSTCODE. THE SITE IS LOCATED CLOSE TO LADGATE ...
Property Oracle says ..
The property is a plot of land located on Penistone Road in Middlesbrough, North Yorkshire. The list price is £475,000 for a 775 sqft plot. This is significantly higher than the average price of properties in the area, which is £106,658. The average price per sqft in the area is £151, while this plot is listed at over £600 per sqft. Nearby properties on Penistone Road are selling for significantly less, ranging from £60,000 to £98,000. The area has good access to schools, including Park End Primary School (rated Good by Ofsted) and River Tees Primary Academy (also rated Good). Transportation links are also reasonably close, with several train stations within a few kilometers. However, the lack of any existing structure on the plot means there is no information available on the condition of the property itself. The plot size is not specified. Given the high list price compared to nearby properties, the value for money is questionable.
Therefore, we give this property 5 / 10. *Disclaimer: This is our option and does constitute a recommendation or financial advice. Do your own research. *
- Price
- 3
- Condition
- 0
- Location
- 7
- Land
- 0
- Bedrooms
- 0
- Bathrooms
- 0
- Sqft (est)
- 775.00
The heatmap indicates the level of crime in the area. The color of the heatmap indicates the crime severity and recency.
Metrics Year-on-Year
- Average area value
- 115,938.00 £Increased by 10.61 %
- Est sale value
- 189,875.00 £Increased by 91.41 %
- Average area rental value
- 665.00 £/moIncreased by 1.06 %
- Est letting value
- 775.00 £/mo
- Est rental Yield
- 6.88 %Decreased by 8.63 %
- Crime Rate
- 10.00 %Unchanged by 0.00 %
Agent Activity
Progression Property created the listing.
Nearby Schools
| Name | Type | Ofsted | Distance |
|---|---|---|---|
| Park End Primary School | Community School | Good | 0.25 KM |
| Park End Children'S Centre | Children's Centre | 0.25 KM | |
| Unity City Academy | Academy Sponsor Led | Requires improvement | 0.60 KM |
| River Tees Middle Academy | Academy Alternative Provision Converter | Good | 0.76 KM |
| River Tees Primary Academy | Academy Alternative Provision Converter | Good | 0.77 KM |
Images
Nearby Streets
| Name | Average Price | Average Sqft | Distance |
|---|---|---|---|
| Ipswich Wk. | £ 0 | 0 | 0.00 KM |
| Phyllis Mohan Court | £ 0 | 0 | 0.00 KM |
| Parkside | £ 295,000 | 0 | 0.00 KM |
| Cornforth Av. | £ 0 | 0 | 0.00 KM |
| Revesby ROad | £ 125,000 | 0 | 0.00 KM |
Nearby Transport
| Name | NLC | TLC | Distance |
|---|---|---|---|
| Marton | 7947 | MTO | 0.88 KM |
| James Cook University Hospital | 9507 | JCH | 1.47 KM |
| Gypsy Lane | 7930 | GYP | 2.72 KM |
| Nunthorpe | 7946 | NNT | 3.88 KM |
| South Bank | 7953 | SBK | 4.14 KM |
Nearby Listings
| Address | Price | Type | Score | Distance |
|---|---|---|---|---|
| Penistone Road, Middlesbrough | £ 475,000 | BUY | 5 / 10 | 0.00 KM |
| Sandringham Road, Middlesbrough | £ 100,000 | BUY | 6 / 10 | 0.19 KM |
| Penistone Road, Middlesbrough, TS3 0ED | £ 95,000 | BUY | 5 / 10 | 0.26 KM |
| Radnor Green, Park End | £ 117,500 | BUY | 7 / 10 | 0.30 KM |
| Roxby Avenue, Middlesbrough | £ 120,000 | BUY | 6 / 10 | 0.32 KM |
Nearby Properties
| Address | Price | Distance |
|---|---|---|
| 4 Penistone Road | £ 60,000 | 0.06 KM |
| 2 Penistone Road | £ 98,000 | 0.06 KM |
| 11 Penistone Road | £ 60,000 | 0.09 KM |
| 7 Penistone Road | £ 80,000 | 0.09 KM |
| 11 Kelsall Close | £ 70,000 | 0.10 KM |