Milestone Close, Waverton, Wigton
By David Britton Estates
£ 595,000
Reviews
3 out of 5 stars
David Britton Estates says ..
PLOT 2 – BRAND NEW BUILD FOUR BEDROOM DETACHED HOME WITH LUXURY, QUALITY FINISH & ATTENTION TO DETAIL BUILT BY LATTIMER HOMES! **Viewings strictly by appointment only**
Property Oracle says ..
This property is a new-build, four-bedroom detached house located in Milestone Close, Waverton, near Wigton, Cumbria. The artist’s impressions present a modern and appealing property with a potentially high-quality finish. The location offers a balance between rural tranquility and access to amenities and transport links in Wigton, with further attractions such as the Solway Coast AONB and Lake District National Park within reasonable reach. However, specific details on the plot size, internal features, and the extent of included garden space are not available; impacting the complete analysis of the property. The asking price of £595,000 aligns with comparable properties in the region, suggesting reasonable value; but further concrete details need to be confirmed for this to be stated definitively. The available images highlight a modern construction style and the new-build nature of the property. Buyers should make further detailed investigations to determine this property’s suitability given the missing data in the provided information.
Therefore, we give this property 6 / 10. *Disclaimer: This is our option and does constitute a recommendation or financial advice. Do your own research. *
- Price
- 7
- Condition
- 8
- Location
- 7
- Land
- 4
- Bedrooms
- 4
- Bathrooms
- 2
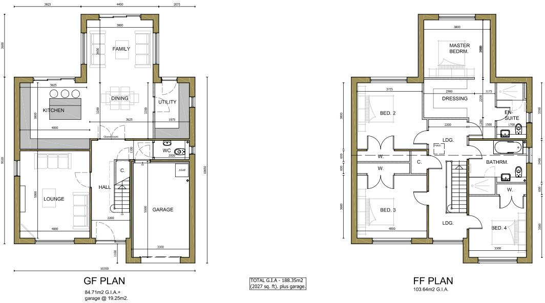
- Sqft (est)
- 2,027.38
The heatmap indicates the level of crime in the area. The color of the heatmap indicates the crime severity and recency.
Metrics Year-on-Year
- Average area value
- 801,167.00 £Decreased by 16.35 %
- Est sale value
- 1,228,592.28 £Increased by 23.17 %
- Average area rental value
- 1,142.00 £/moDecreased by 67.83 %
- Est letting value
- 0.00 £/moDecreased by 100.00 %
- Est rental Yield
- 1.71 %Decreased by 61.57 %
- Crime Rate
- 9.00 %Unchanged by 0.00 %
Agent Activity
David Britton Estates created the listing.
Nearby Schools
| Name | Type | Ofsted | Distance |
|---|---|---|---|
| North Allerdale Surestart Children'S Centre | Children's Centre | 3.90 KM | |
| Boltons Cofe School | Voluntary Controlled School | Good | 3.95 KM |
| Wigton Infant School | Community School | Requires improvement | 5.35 KM |
| Thomlinson Junior School | Community School | Good | 5.52 KM |
| The Nelson Thomlinson School | Voluntary Controlled School | Outstanding | 6.01 KM |
Images
Nearby Transport
| Name | NLC | TLC | Distance |
|---|---|---|---|
| Wigton | 2098 | WGT | 5.24 KM |
Nearby Listings
| Address | Price | Type | Score | Distance |
|---|---|---|---|---|
| Milestone Close, Waverton, Wigton | £ 595,000 | BUY | 6 / 10 | 0.00 KM |
| Waverton, CA7 | £ 400,000 | BUY | 6 / 10 | 0.03 KM |
| Milestone House, Waverton, CA7 0AE | £ 285,000 | BUY | 6 / 10 | 0.04 KM |
| Fern Lea, Waverton | £ 595,000 | BUY | 8 / 10 | 0.08 KM |
| Milestone Close, Waverton, Wigton | £ 595,000 | BUY | Unknown | 0.17 KM |
Nearby Properties
| Address | Price | Distance |
|---|---|---|
| 9 Inglewood | £ 105,000 | 0.20 KM |