Thick Hollins Drive, Meltham, Holmfirth, HD9
By WM. Sykes & Son
£ 395,000
Reviews
3 out of 5 stars
WM. Sykes & Son says ..
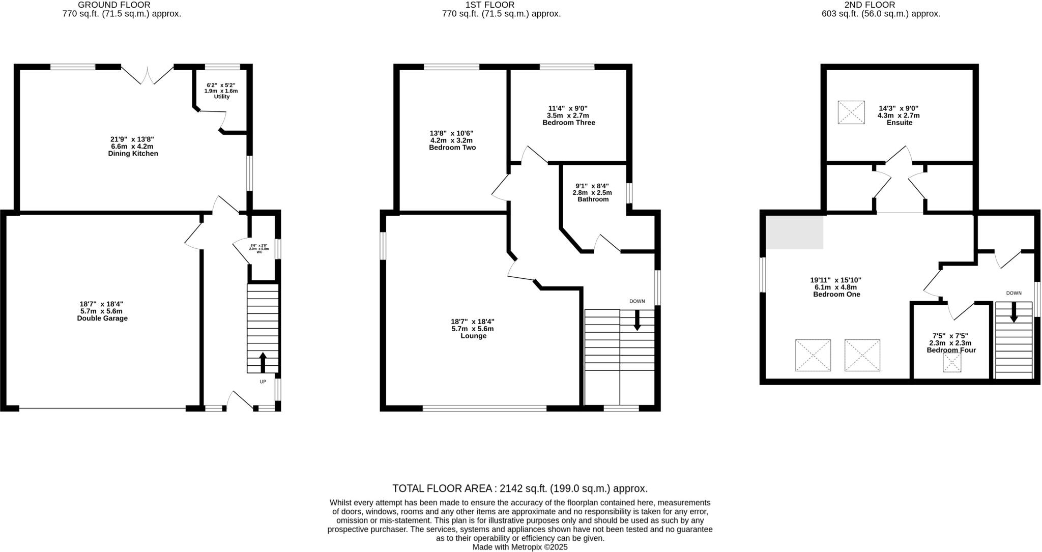
Deceptively spacious four-bedroom detached family home with accommodation set over three floors. Located in the popular village of Meltham with local amenities nearby, much admired school catchment area and Meltham playground and park just across the road. The accommodation briefly comprises: ent...
Property Oracle says ..
This is a well-presented detached property in a sought-after location. The house benefits from modern interiors, off-street parking, and a garage. While the garden is relatively small and mainly paved, the property is well-maintained and offers good living space. The proximity to good schools and transport links further enhances its appeal. The price is in line with similar properties in the area, making it a potentially attractive purchase.
Therefore, we give this property 6 / 10. *Disclaimer: This is our option and does constitute a recommendation or financial advice. Do your own research. *
- Price
- 7
- Condition
- 8
- Location
- 7
- Land
- 5
- Bedrooms
- 4
- Bathrooms
- 2
- Sqft (est)
- 1,837.00
The heatmap indicates the level of crime in the area. The color of the heatmap indicates the crime severity and recency.
Metrics Year-on-Year
- Average area value
- 398,889.00 £Increased by 13.84 %
- Est sale value
- 264,528.00 £Decreased by 46.86 %
- Average area rental value
- 2,250.00 £/moIncreased by 153.09 %
- Est letting value
- 0.00 £/mo
- Est rental Yield
- 6.77 %Increased by 122.70 %
- Crime Rate
- 4.00 %Unchanged by 0.00 %
Agent Activity
WM. Sykes & Son created the listing.
Nearby Schools
| Name | Type | Ofsted | Distance |
|---|---|---|---|
| Meltham Cofe (Vc) Primary School | Voluntary Controlled School | Good | 0.86 KM |
| Helme Church Of England Academy | Academy Sponsor Led | 1.95 KM | |
| Holme Valley North Children'S Centre | Children's Centre Linked Site | 2.58 KM | |
| Meltham Moor Primary School | Academy Converter | 2.68 KM | |
| Colne Valley High School | Academy Sponsor Led | Good | 3.75 KM |
Images
Nearby Streets
| Name | Average Price | Average Sqft | Distance |
|---|---|---|---|
| The Grove | £ 0 | 0 | 0.00 KM |
| Harrison Lane | £ 650,000 | 0 | 0.00 KM |
| Meltham Way | £ 895,000 | 0 | 0.00 KM |
| Helme Fold | £ 0 | 0 | 0.00 KM |
| Moorhead Close | £ 175,000 | 0 | 0.00 KM |
Nearby Transport
| Name | NLC | TLC | Distance |
|---|---|---|---|
| Berry Brow | 8431 | BBW | 5.96 KM |
| Slaithwaite | 8450 | SWT | 5.98 KM |
| Lockwood | 8443 | LCK | 6.36 KM |
| Honley | 8436 | HOY | 6.61 KM |
| Brockholes | 8429 | BHS | 7.62 KM |
Nearby Listings
| Address | Price | Type | Score | Distance |
|---|---|---|---|---|
| Thick Hollins Drive, Meltham, Holmfirth, HD9 | £ 395,000 | BUY | 6 / 10 | 0.00 KM |
| Harrington Court, Meltham | £ 295,000 | BUY | 7 / 10 | 0.10 KM |
| Harrington Court, Meltham | £ 235,000 | BUY | 7 / 10 | 0.10 KM |
| Cleveland Avenue, Meltham, Holmfirth, HD9 | £ 345,000 | BUY | 7 / 10 | 0.10 KM |
| Mill Bank Road, Meltham, HD9 | £ 365,000 | BUY | 7 / 10 | 0.17 KM |
Nearby Properties
| Address | Price | Distance |
|---|---|---|
| 2 Harrington Court | £ 165,000 | 0.11 KM |
| 8 Harrington Court | £ 167,500 | 0.11 KM |
| 9 Harrington Court | £ 208,000 | 0.11 KM |
| 24 Meltham Mills Road | £ 110,000 | 0.11 KM |
| 26 Meltham Mills Road | £ 185,000 | 0.11 KM |