Gascoigne Halman says ..
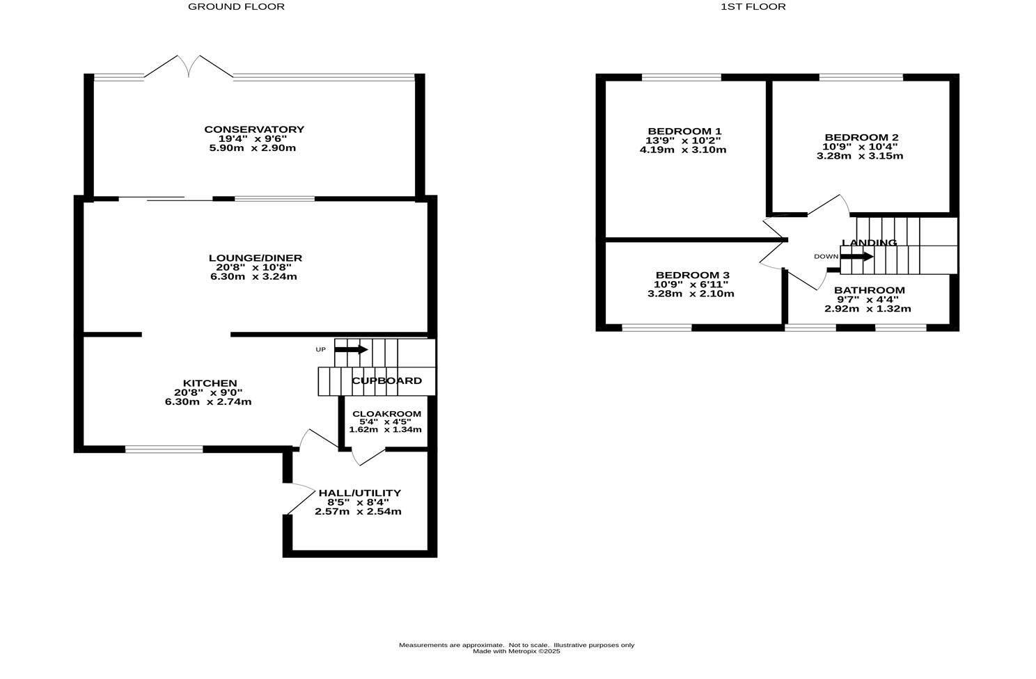
A three double bedroom mews family home offering stunning accommodation throughout with a large conservatory and a south facing garden. This house needs to be viewed to appreciate how well presented it is.
Property Oracle says ..
The property is located in Salop Walk, Macclesfield, Cheshire East, England. The area benefits from being within proximity to several highly-rated schools, including The Fallibroome Academy (Outstanding Ofsted rating) and Upton Priory School (Good Ofsted rating), both within a short distance. Several train stations are also conveniently located nearby, providing good transport links. The presence of these amenities contributes positively to the desirability of the location.
Based on the provided images, the property appears to be well-maintained and in good condition. The kitchen and bathroom have been recently updated, and the property benefits from a modern extension. There is no evidence to suggest the property is in need of significant repair or renovation. The interior is presented in a clean and contemporary style.
The property includes a well-landscaped garden featuring a decked area, artificial grass, and raised planting beds. The garden is relatively small but is well-designed and provides a pleasant outdoor space.
Considering the list price of £207,500, the average price in the area of £366,094, and the average price per square foot of £346, this property appears to be priced competitively. While the average price per square foot is higher than the property’s implied price per square foot (£197), the lower price may be justified by the smaller plot size compared to the average for the area. The property’s modern updates and good condition also contribute to its value. Nearby comparable properties support the pricing, with several similar properties listed at similar price points.
Therefore, we give this property 7 / 10. *Disclaimer: This is our option and does constitute a recommendation or financial advice. Do your own research. *
- Price
- 7
- Condition
- 9
- Location
- 8
- Land
- 6
- Bedrooms
- 3
- Bathrooms
- 1
- Sqft (est)
- 1,051.26
The heatmap indicates the level of crime in the area. The color of the heatmap indicates the crime severity and recency.
Metrics Year-on-Year
- Average area value
- 326,658.00 £Decreased by 2.34 %
- Est sale value
- 405,786.36 £Increased by 11.24 %
- Average area rental value
- 975.00 £/moDecreased by 11.04 %
- Est letting value
- 1,051.26 £/moUnchanged by 0.00 %
- Est rental Yield
- 3.58 %Decreased by 8.91 %
- Crime Rate
- 30.00 %Unchanged by 0.00 %
Agent Activity
Gascoigne Halman created the listing.
Nearby Schools
| Name | Type | Ofsted | Distance |
|---|---|---|---|
| Upton Priory School | Academy Converter | Good | 0.32 KM |
| The Fallibroome Academy | Academy Converter | Outstanding | 0.41 KM |
| St Alban'S Catholic Primary School, A Voluntary Academy | Academy Converter | 0.65 KM | |
| The King'S School In Macclesfield | Other Independent School | 1.14 KM | |
| Broken Cross Children'S Centre | Children's Centre | 1.57 KM |
Images
Nearby Streets
| Name | Average Price | Average Sqft | Distance |
|---|---|---|---|
| Suffolk Close | £ 0 | 0 | 0.00 KM |
| Somerset Close | £ 0 | 0 | 0.00 KM |
| Severn Close | £ 0 | 0 | 0.00 KM |
| St. Ives Close | £ 279,995 | 0 | 0.00 KM |
| Bracken Close | £ 499,950 | 0 | 0.00 KM |
Nearby Transport
| Name | NLC | TLC | Distance |
|---|---|---|---|
| Prestbury | 2875 | PRB | 2.84 KM |
| Macclesfield | 2871 | MAC | 4.22 KM |
| Adlington (Cheshire) | 2939 | ADC | 6.03 KM |
| Poynton | 2874 | PYT | 9.20 KM |
| Alderley Edge | 2760 | ALD | 9.42 KM |
Nearby Listings
| Address | Price | Type | Score | Distance |
|---|---|---|---|---|
| Salop Walk, Macclesfield | £ 207,500 | BUY | 7 / 10 | 0.00 KM |
| Wiltshire Close, Macclesfield, SK10 | £ 190,000 | BUY | 7 / 10 | 0.04 KM |
| Salop Walk, Macclesfield, Cheshire, SK10 | £ 210,000 | BUY | 6 / 10 | 0.04 KM |
| Salop Walk, Macclesfield | £ 204,000 | BUY | Unknown | 0.07 KM |
| Salop Walk, Macclesfield | £ 206,000 | BUY | 7 / 10 | 0.07 KM |
Nearby Properties
| Address | Price | Distance |
|---|---|---|
| 8 Salop Walk | £ 99,000 | 0.04 KM |
| 3 Salop Walk | £ 98,000 | 0.04 KM |
| 10 Salop Walk | £ 200,000 | 0.04 KM |
| 4 Salop Walk | £ 138,000 | 0.04 KM |
| 5 Salop Walk | £ 135,000 | 0.04 KM |