Howards says ..
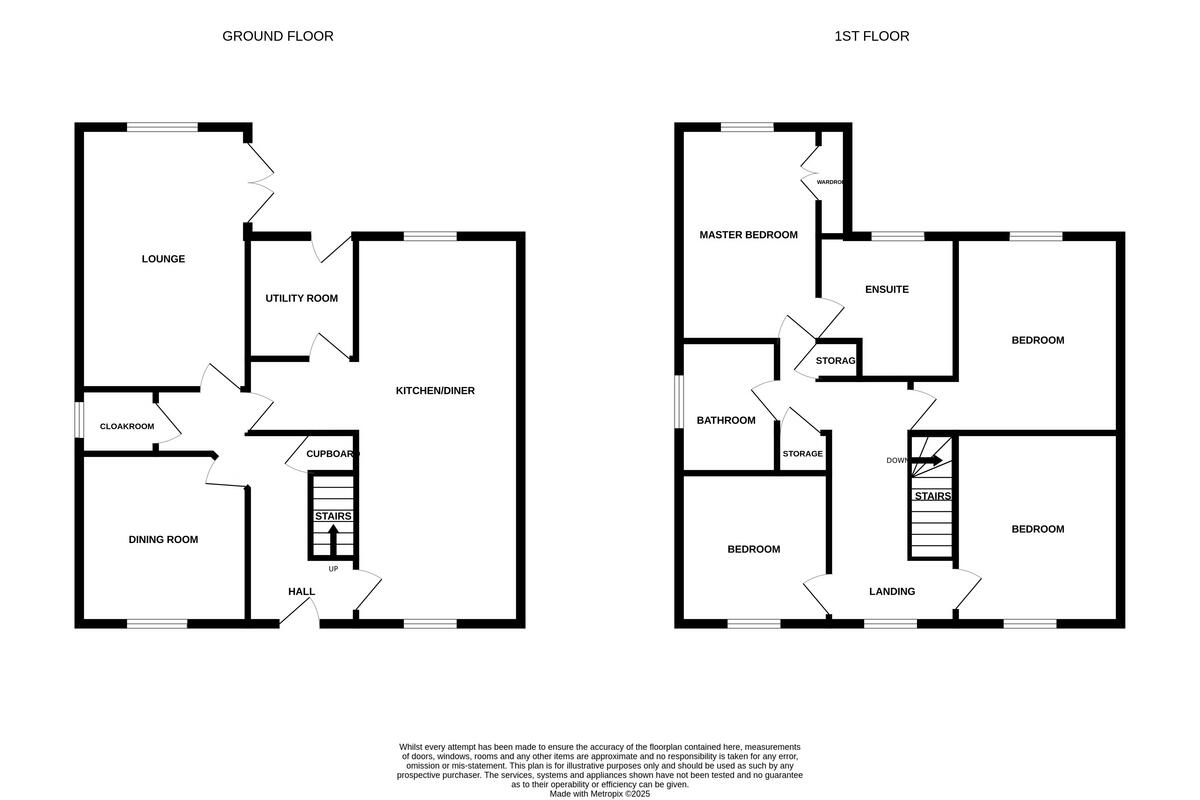
Guide Price: £375,000 - £400,000. This beautifully presented property features a spacious kitchen/diner, cosy living room, versatile ground floor space, low maintenance garden, garage and driveway. Perfectly located near fields, schools, and amenities. Don’t miss out!
Property Oracle says ..
The property is located in Caister-on-Sea, Norfolk, close to schools and transport links. It appears to be in excellent condition and includes a garden. The list price is higher than the average for the area, but this may be justified by the property’s condition and features. Further analysis of comparable properties would be needed to determine the accuracy of the pricing.
Therefore, we give this property 7 / 10. *Disclaimer: This is our option and does constitute a recommendation or financial advice. Do your own research. *
- Price
- 6
- Condition
- 9
- Location
- 7
- Land
- 7
- Bedrooms
- 5
- Bathrooms
- 2
- Sqft (est)
- 1,050.00
The heatmap indicates the level of crime in the area. The color of the heatmap indicates the crime severity and recency.
Metrics Year-on-Year
- Average area value
- 230,000.00 £Decreased by 13.85 %
- Est sale value
- 309,750.00 £Increased by 29.39 %
- Average area rental value
- 850.00 £/moDecreased by 22.73 %
- Est letting value
- 1,050.00 £/mo
- Est rental Yield
- 4.43 %Decreased by 10.32 %
- Crime Rate
- 30.00 %Unchanged by 0.00 %
Agent Activity
Howards created the listing.
Nearby Schools
| Name | Type | Ofsted | Distance |
|---|---|---|---|
| Caister Children'S Centre | Children's Centre | 0.61 KM | |
| Caister Junior School | Community School | Good | 0.64 KM |
| Caister Infant, Nursery School And Children'S Centre | Community School | Good | 0.64 KM |
| Caister Academy | Academy Sponsor Led | Good | 1.07 KM |
| John Grant School, Caister-On-Sea | Foundation Special School | Outstanding | 1.53 KM |
Images
Nearby Streets
| Name | Average Price | Average Sqft | Distance |
|---|---|---|---|
| Cooper Close | £ 0 | 0 | 0.00 KM |
| School Lane | £ 0 | 0 | 0.00 KM |
| Jubilee Terrace | £ 190,000 | 0 | 0.00 KM |
| Byron Way | £ 427,000 | 0 | 0.00 KM |
| Weston Rise | £ 0 | 0 | 0.00 KM |
Nearby Transport
| Name | NLC | TLC | Distance |
|---|---|---|---|
| Great Yarmouth | 7328 | GYM | 3.68 KM |
Nearby Listings
| Address | Price | Type | Score | Distance |
|---|---|---|---|---|
| Tamarisk Drive, Caister-on-Sea | £ 375,000 | BUY | 7 / 10 | 0.00 KM |
| Tamarisk Drive, Caister-On-Sea | £ 210,000 | BUY | 7 / 10 | 0.03 KM |
| Tamarisk Drive, Caister-on-sea | £ 215,000 | BUY | 7 / 10 | 0.04 KM |
| Tamarisk Drive, Caister-on-Sea | £ 230,000 | BUY | 6 / 10 | 0.05 KM |
| Purslane Drive, Caister-On-Sea, Norfolk | £ 375,000 | BUY | 7 / 10 | 0.05 KM |
Nearby Properties
| Address | Price | Distance |
|---|---|---|
| 41 Tamarisk Drive | £ 104,000 | 0.04 KM |
| 19 Tamarisk Drive | £ 195,000 | 0.04 KM |
| 33 Tamarisk Drive | £ 285,000 | 0.04 KM |
| 53 Tamarisk Drive | £ 130,000 | 0.04 KM |
| 16 Tamarisk Drive | £ 180,000 | 0.04 KM |